Atrakcyjny budynek biurowo-usługowy 302 m² z dużym parkingiem Kraków, Prądnik Biały, Górka Narodowa - 302,6m2
POWIERZCHNIA
302,60 m2
PRZEZNACZENIE
biuro
PIĘTRO
-
Szczegóły oferty DNX-BS-30456-1 Data dodania: dzisiaj
- Kategoria Lokale użytkowe na sprzedaż
- Lokalizacja małopolskie, Kraków, Prądnik Biały, Górka Narodowa
- Powierzchnia całkowita302,60 m2
-
Cena
2 490 000 zł
- Cena za m2 8 228,68 zł/m2
- Liczba pięter w budynku 2
- Forma własności Własność
- Przeznaczenie biuro, usługi
- Informacje dodatkowe:
- ogrzewanie
Lokalizacja
Opis oferty
Budynek biurowo-usługowy na sprzedaż - Prądnik Biały, Kraków
Do sprzedaży budynek biurowo-usługowy o całkowitej powierzchni 302,6 m² (użytkowej 270,3 m² ), położony na działce 6,97 ara w atrakcyjnej lokalizacji na Prądniku Białym, w pobliżu wjazdu na obwodnicę północną Krakowa .
Budynek oddany do użytkowania w 2002 roku , ostatnia renowacja przeprowadzona w 2013 roku . Obecnie wymaga odświeżenia, co pozwala na dowolną aranżację wnętrz pod własne potrzeby.
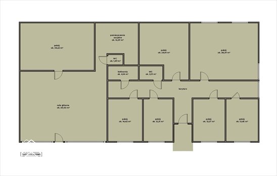
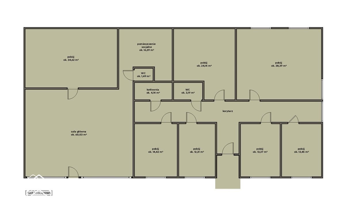
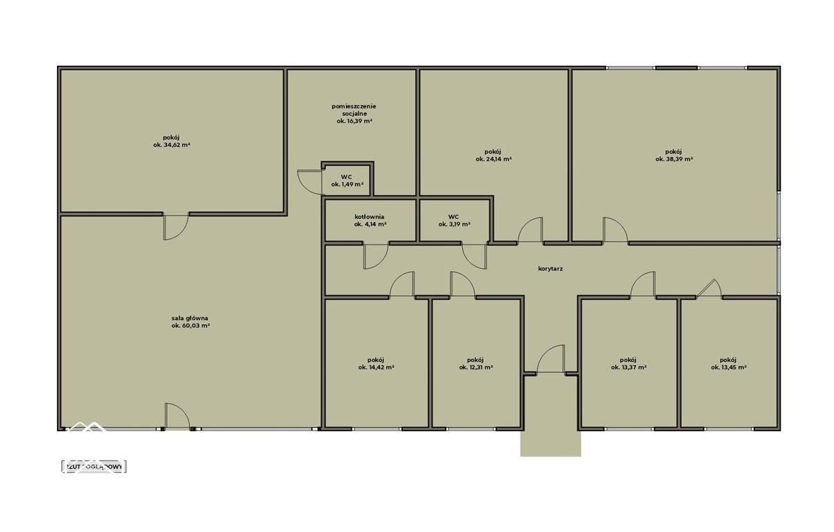
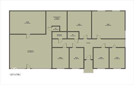
Układ pomieszczeń
Parter:
Sala główna - 60,03 m²
7 pokoi biurowych - 34,62 m², 24,14 m², 38,39 m², 14,42 m², 12,31 m², 13,37 m², 13,45 m²
Pomieszczenie socjalne - 16,39 m²
Kotłownia - 4,14 m²
Dwie toalety - 1,49 m² i 3,19 m²
Poddasze:
Open space do dowolnej adaptacji, wysokość do kalenicy 3 m, skosy. powierzchnia podłogi ok 300m2
Działka i parking
Powierzchnia działki: 6,97 ara , dodatkowo udział 1/3 w działce sąsiedniej o powierzchni 1,44 ara
Możliwość parkowania 15-20 samochodów , w tym wjazdu samochodów ciężarowych
Parking na całym terenie funkcjonuje w oparciu o nieformalną umowę z sąsiednim budynkiem
Wyposażenie i instalacje
Instalacje: wodna, gazowa, elektryczna, kanalizacyjna, alarmowa
Budynek przystosowany pod hurtownię i biura , możliwość dalszej adaptacji pod różne funkcje usługowe
Atuty nieruchomości
Doskonała lokalizacja z szybkim dojazdem do obwodnicy Krakowa
Duży teren pod parking i wjazd samochodów ciężarowych
Możliwość dowolnej adaptacji poddasza
Budynek w zabudowie bliźniaczej z własną działką i udziałem w działce sąsiedniej
Podsumowanie
Nieruchomość idealnie sprawdzi się jako siedziba firmy, biura z magazynem, hurtownia lub inna działalność usługowa wymagająca dużej powierzchni i dogodnego dojazdu.
Cena: 2490000zł netto (+23% VAT)
Zapraszamy na prezentację!
To wyjątkowa okazja, aby obejrzeć nieruchomość, która łączy funkcjonalność, przestrzeń i świetną lokalizację. Skontaktuj się z nami i przekonaj się osobiście, jak dobrze może służyć Twojej firmie.
::DODATKOWE INFORMACJE
Rodzaj budynku: biurowo-usługowy
Dozór budynku: alarm
Prąd: jest
Gaz: jest
Woda: jest
Dojazd: asfalt
Otoczenie: zabudowa mieszana
Ogrzewanie: C.O. GAZOWE
Kanalizacja: miejska
Sąsiedztwo: działki zabudowane
Możliwość parkowania: tak
Podłogi: panele
Stan lokalu: do odświeżenia
Okna: PCV
Instalacje: nowe
Powierzchnia użytkowa [m2]: 300
Rok budowy: 2002
::KONTAKT DO AGENTA
Stanisław Godłowski
502pokaż telefon
staszskontaktuj się
Pośrednik odpowiedzialny zawodowo za wykonanie umowy pośrednictwa: Bartłomiej Krosta (licencja nr: 6585)
--------------------------
Od 1993 r. pośredniczymy w transakcjach na krakowskim rynku nieruchomości.
Pomożemy Ci jak przyjacielowi.
Numer oferty: DNX-BS-30456-1
Statystyki ogłoszenia:
Podobne nieruchomości