Lokal użytkowy na wynajem Warszawa, Śródmieście - 1642,0m2
129 000
zł
78,56 zł/m2
POWIERZCHNIA
1642,00 m2
PRZEZNACZENIE
biuro
PIĘTRO
-
Szczegóły oferty BW-14393 Data dodania: 29 dni temu
- Kategoria Lokale użytkowe na wynajem
- Lokalizacja mazowieckie, Warszawa, Śródmieście
- Powierzchnia całkowita1 642 m2
-
Cena
129 000 zł
- Cena za m2 78,56 zł/m2
- Przeznaczenie biuro
Lokalizacja
Opis oferty
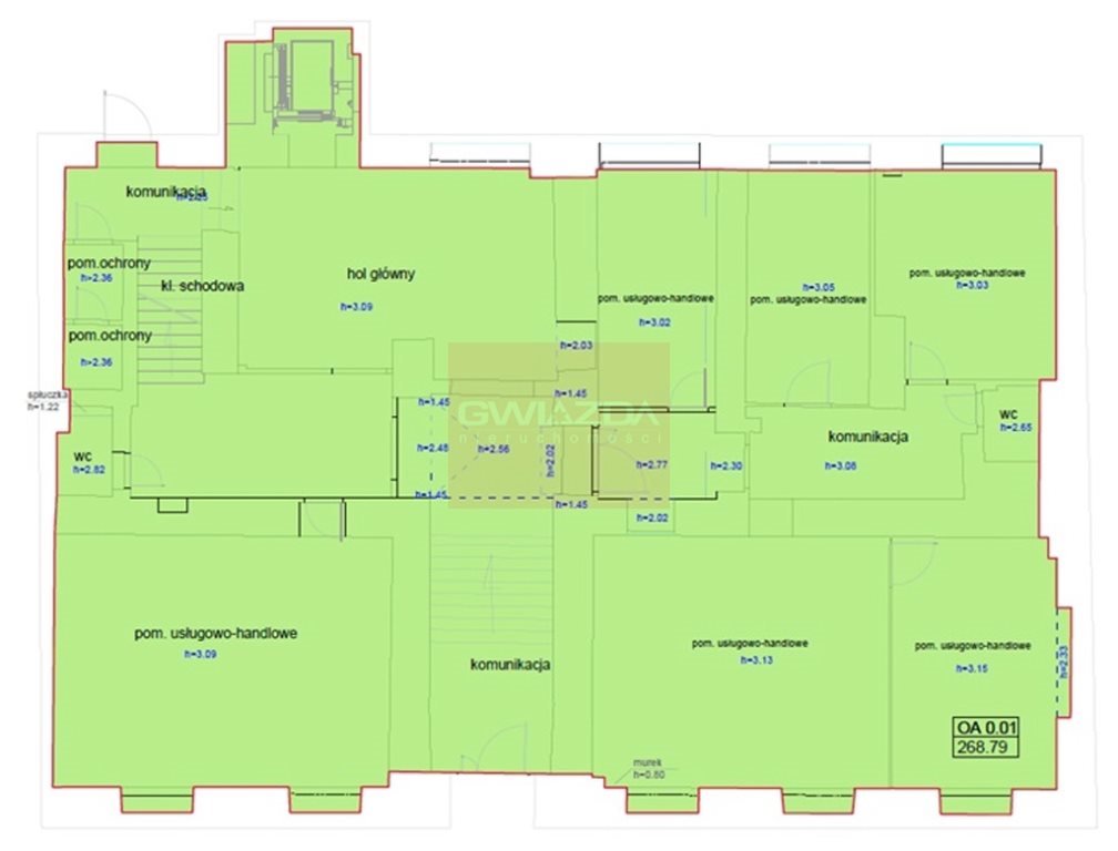
Warszawa, Śródmieście, samodzielny budynek biurowy do wynajęcia.
Powierzchnia budynku 1642 mkw., w tym piwnica, parter i cztery piętra.
Powierzchnia kondygnacji około 270 mkw.
Budynek murowany ze stropami Kleina na belkach stalowych.
Cała działka ma 474 mkw. a samo podwórko 106 mkw.
W budynku jest wentylacja grawitacyjna, nie ma klimatyzacji, natomiast może być dołożona.
Jest sieć teletechniczna rozprowadzona.
Nie ma miejsc parkingowych.
Budynek znajduje się w lokalizacji nie objętej miejscowym planem zagospodarowania.
Budynek będzie wolny od 16.11.2026.
Koszt najmu 30700 Euro/miesięcznie plus koszty eksploatacji, zarządzania i media.
Do tego dochodzą media (energia elektryczna, woda, ogrzewanie, wywóz śmieci) oraz ochrona (jeśli jest potrzebna).
::LINK DO STRONY
http://www.gwiazda.info/oferta.aspx?id=14411
Oferta wysłana z systemu Galactica Virgo
Numer oferty: BW-14393
Numer oferty: BW-14393
Statystyki ogłoszenia:
Podobne nieruchomości