Lokal usługowy z wejściem od ulicy, kawalerka lub biuro Poznań, Wilda, ul. 28 Czerwca 1956 r. - 19,89m2
186 000
zł
9 351,43 zł/m2
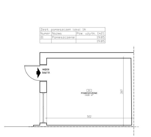
POWIERZCHNIA
19,89 m2
PRZEZNACZENIE
biuro
PIĘTRO
parter
Szczegóły
- Kategoria Lokale użytkowe na sprzedaż
- Lokalizacja wielkopolskie, Poznań, Wilda, ul. 28 Czerwca 1956 r.
- Powierzchnia całkowita19,89 m2
-
Cena
186 000 zł
- Cena za m2 9 351,43 zł/m2
- Liczba pomieszczeń 1
- Piętro Parter
- Przeznaczenie biuro, usługi, gabinet, warsztat, inne
Lokalizacja
Opis oferty
Zachęcam do zapoznania się z ofertą sprzedaży lokalu usługowego w kamienicy, lokalizacja: Poznań, ul. 28 Czerwca 1956r./271.
Lokal obecnie wynajmowany pełniąc funkcję kawalerki. To idealna propozycja zarówno dla inwestora, jak i dla osób poszukujących lokalu do zamieszkania.
Posiada wejście bezpośrednio od ulicy – idealny pod działalność usługową, biuro, małą pracownię lub po adaptacji może pełnić funkcję przytulnej kawalerki / studia pod wynajem.
W układ lokalu wchodzi pomieszczenie z aneksem kuchennym o pow. ok. 18 m2 oraz łazienka o pow. ok. 2 m2
Informacje techniczne:
Ogrzewanie: wspólna instalacja grzewcza w kamienicyBudynek murowany, oparty na zewnętrznych i wewnętrznych ścianach konstrukcyjnychŚciany nośne: cegła ceramiczna na zaprawie wapienno-piaskowejGrubość ścian: zewnętrzne 30–60 cm, wewnętrzne z cegły pełnej
Instalacje:
wodno-kanalizacyjnaelektrycznacentralnego ogrzewaniatelekomunikacyjna
Dodatkowe informacje:
Lokal sprzedawany jako pełne prawo własnościSpokojna i dobrze skomunikowana okolica PoznaniaW pobliżu: sklepy, przystanki komunikacji miejskiej, szkoła i tereny rekreacyjne
Zachęcamy również do zapoznania się z pozostałymi ofertami mieszkań na sprzedaż w tej kamienicy oraz z ofertą sprzedaży całego budynku.
Zainteresowanych proszę o kontakt:
Dagmara Żak tel. 5.7.1.0.2.3.6.3.3
Statystyki ogłoszenia:
Podobne nieruchomości