• Kategoria Mieszkania na sprzedaż
  • Lokalizacja łódzkie, Łódź, Zygmunta 140
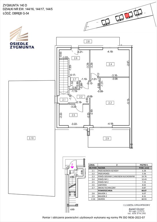
  • Powierzchnia całkowita60,07 m2
  • Cena

    570 665 zł

    Reklama ico Sprawdź ratę Sprawdź ratę RSSO 6,71%
    na dz. 24.11.25
    trade ico trade ico trade
  • Cena za m2 9 500 zł/m2
  • Cennik na stronie dewelopera Zobacz ceny >>
  • Liczba pokoi 3
  • Piętro 1
  • Rok budowy 2025
  • Materiał beton
  • Kanalizacjamiejska
  • Ogrzewanieelektryczne
Informacje dodatkowe:
miejsce naziemne, teren zamknięty, przyłącze telefoniczne, przyłącze internetowe, fotowoltaika, pompa ciepła, przyłącze telewizyjne
Okolica:
park / las, centrum handlowe, sklep spożywczy, autobus

Lokalizacja

Łódź, Zygmunta 140

Opis oferty

Szukasz miejsca, które łączy w sobie nowoczesność, komfort oraz bliskość natury?  “Osiedle Zygmunta” w Łodzi to odpowiedź na wszystkie te potrzeby. Ta kameralna inwestycja przewiduje budowę 4 budynków w zabudowie bliźniaczej, po 4 mieszkania w każdym. Właściciele będą mieć zapewnioną prywatność i bezpieczeństwo, dzięki osobnym wejściom, ogrodzeniu i monitoringowi. Dodatkowo dla wygody mieszkańców powstanie strefa relaksu, w której znajdziemy plac zabaw czy altankę. Z myślą zarówno o singlach, parach jak i rodzinach zaprojektowaliśmy funkcjonalne mieszkania o powierzchni 53 m2 oraz 60 m2 w rozkładzie 3 pokojowym.  Szczególnym udogodnieniem będą balkony, tarasy oraz ogródki z zielenią. Duże okna zapewnią doskonałe doświetlenie pomieszczeń. Do każdego z mieszkań przewidujemy po 1 miejscu postojowym.
Numer oferty: M9

Statystyki ogłoszenia:

oko

Inne mieszkania dostępne w tej inwestycji

Filtruj oferty x Resetuj filtry
-
-
-
Rzut
Nr ref.
Piętro
Pokoje
Powierzchnia Pow.
Cena
M10 0 3 53,20 m2 505 400 zł Osiedle Zygmunta - M10 - Łódź, Zygmunta 140, 53.2m2
M11 0 3 53,39 m2 507 205 zł Osiedle Zygmunta - M11 - Łódź, Zygmunta 140, 53.39m2
M12 1 3 60,15 m2 553 380 zł Osiedle Zygmunta - M12 - Łódź, Zygmunta 140, 60.15m2
M16 1 3 60,13 m2 553 196 zł Osiedle Zygmunta - M16 - Łódź, Zygmunta 140, 60.13m2
M3 0 3 53,31 m2 506 445 zł Osiedle Zygmunta - M3 - Łódź, Zygmunta 140, 53.31m2
M4 1 3 60,07 m2 570 665 zł Osiedle Zygmunta - M4 - Łódź, Zygmunta 140, 60.07m2
M5 1 3 60,13 m2 571 235 zł Osiedle Zygmunta - M5 - Łódź, Zygmunta 140, 60.13m2
M6 0 3 53,38 m2 507 110 zł Osiedle Zygmunta - M6 - Łódź, Zygmunta 140, 53.38m2
M7 0 3 53,30 m2 506 350 zł Osiedle Zygmunta - M7 - Łódź, Zygmunta 140, 53.3m2
M8 1 3 60,14 m2 553 288 zł Osiedle Zygmunta - M8 - Łódź, Zygmunta 140, 60.14m2

Podobne nieruchomości