Nowy Targ, nowoczesny lokal biurowy 30,4 m2 z klimatyzacją Nowy Targ, Szaflarska - 30,4m2
Oferta na wyłączność
1 300 zł 42,76 zł/m2POWIERZCHNIA
30,40 m2
PRZEZNACZENIE
biuro
PIĘTRO
2
Szczegóły oferty 488/2680/OLW
- Kategoria Lokale użytkowe na wynajem
- Lokalizacja małopolskie, Nowy Targ, Szaflarska
- Powierzchnia całkowita30,40 m2
-
Cena
1 300 zł
- Cena za m2 42,76 zł/m2
- Piętro 2
- Przeznaczenie biuro
- Informacje dodatkowe:
- klimatyzacja
Lokalizacja
Opis oferty
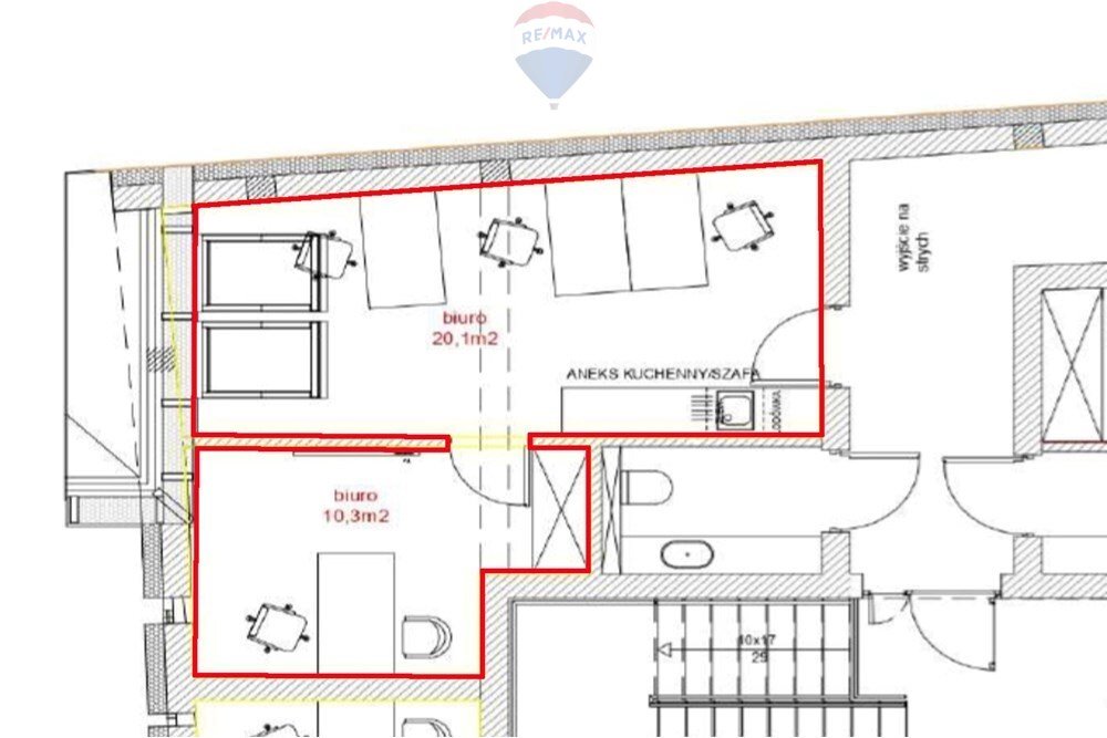
LOKAL BIUROWY – NOWY TARG | UL. SZAFLARSKA 13 | 30,4 m²
NOWOCZESNA PRZESTRZEŃ BIUROWA W PRESTIŻOWEJ LOKALIZACJI – GOTOWA DO WPROWADZENIA
Do wynajęcia lokal biurowy o powierzchni 30,4 m², położony na II piętrze budynku przy ul. Szaflarskiej 13 w Nowym Targu.
To idealna propozycja dla osób prowadzących działalność usługową, takich jak:
✔ notariusz
✔ radca prawny
✔ geodeta
✔ architekt
✔ komornik
✔ architekt wnętrz
✔ doradca ubezpieczeniowy
NAJWAŻNIEJSZE PARAMETRY NIERUCHOMOŚCI
✔ powierzchnia: 30,4 m²
✔ piętro: II
✔ lokal gotowy do wejścia
CHARAKTERYSTYKA LOKALU
✔ nowoczesna przestrzeń biurowa
✔ możliwość aranżacji według potrzeb najemcy
✔ klimatyzacja
✔ wysoki standard wykończenia
ATUTY BUDYNKU
✔ doskonała, rozpoznawalna lokalizacja
✔ budynek widoczny z ul. Szaflarskiej oraz ul. Ogrodowej
✔ dostęp do sali konferencyjnej
✔ monitoring
✔ system kontroli dostępu (karty)
Na parterze i I piętrze budynku znajdują się biura oraz zaplecze administracyjne RE/MAX DUO, co tworzy profesjonalne środowisko biznesowe.
DODATKOWE INFORMACJE
✔ możliwość wynajmu miejsca postojowego – 300 zł/mc netto
✔ w cenie czynszu: woda
✔ dodatkowo płatne: prąd, ogrzewanie (gazowe, podłogowe), śmieci
WIRTUALNY SPACER
✔ obejrzyj lokal online:
https://rem.ax/Szaflarska13_lokale
LOKALIZACJA – NOWY TARG
✔ centralna i bardzo dobrze skomunikowana część miasta
✔ łatwy dostęp dla klientów
✔ prestiżowy adres dla działalności usługowej
ATUTY NIERUCHOMOŚCI
✔ ŚWIETNA LOKALIZACJA
✔ NOWOCZESNY STANDARD
✔ KLIMATYZACJA
✔ MONITORING I KONTROLA DOSTĘPU
✔ DOSTĘP DO SALI KONFERENCYJNEJ
✔ GOTOWY DO WEJŚCIA
PODSUMOWANIE
Lokal idealny dla wymagających najemców, którzy szukają funkcjonalnej i reprezentacyjnej przestrzeni biurowej w Nowym Targu.
INFORMACJA DODATKOWA
✔ wynagrodzenie biura pokrywa właściciel nieruchomości
Zapraszam do kontaktu oraz na prezentację nieruchomości!
Joanna Górecka
joanna.gorskontaktuj się
tel. +48 6pokaż telefon
Biuro Nieruchomości REMAX DUO
Ul.Szaflarska 13 , Nowy Targ
tel. 781pokaż telefon
W przypadku tej oferty wynagrodzenie naszego biura pokrywa właściciel nieruchomości.
Opis oferty zawarty na stronie internetowej sporządzany jest na podstawie oględzin nieruchomości oraz informacji uzyskanych od właściciela, może podlegać aktualizacji i nie stanowi oferty określonej w art. 66 i następnych K.C.
Oferta wysłana z programu dla biur nieruchomości ASARI CRM (asaricrm.com)
Numer oferty: 488/2680/OLW
Nr licencji zawodowej: 13883
Statystyki ogłoszenia:
Podobne nieruchomości