Mieszkanie trzypokojowe na sprzedaż Rzeszów, al. Niepodległości - 50,0m2
529 000
zł
10 580 zł/m2
POWIERZCHNIA
50,00 m2
PIĘTRO
1 / 4
LICZBA POKOI
3
PARKING
miejsce parkingowe
Szczegóły oferty 5361/14016/OMS Data dodania: 22 dni temu
- Kategoria Mieszkania na sprzedaż
- Lokalizacja podkarpackie, Rzeszów, al. Niepodległości
- Powierzchnia całkowita50 m2
-
Cena
529 000 zł
-
Czynsz administracyjny
500 zł
- Cena za m2 10 580 zł/m2
- Liczba pokoi 3
- Piętro 1
- Liczba pięter w budynku 4
- Dostępne od1.12.2025r.
- Typ budynkublok
- Rok budowy 1973
- Forma własności spółdzielcze własnościowe z kw
- Materiał inny
- Informacje dodatkowe:
- ogrzewanie miejskie, balkon, miejsce parkingowe
Lokalizacja
Opis oferty
ATUTY:
• Cicha, zielona okolica – przystanek autobusowy tuż obok bloku
• Do CH Millenium Hall oraz Uniwersytetu Rzeszowskiego zaledwie 10 minut spacerem
• Szybki dojazd do autostrady – tylko 3 km
• Mieszkanie dwustronne, słoneczne
• Łazienka po remoncie
• Balkon oraz piwnica w cenie
• Stan do odświeżenia – idealne do własnej aranżacji
• Odrębna własność z księgą wieczystą
OPIS:
Mieszkanie jest dwustronne i bardzo dobrze doświetlone, co zapewnia komfort i przytulny klimat wnętrza. Łazienka została niedawno wyremontowana, natomiast pozostała część mieszkania pozostaje w stanie do odświeżenia, dzięki czemu nowy właściciel może zaaranżować przestrzeń według własnych potrzeb i gustu.
Do lokalu przynależy balkon oraz piwnica – idealne miejsce na przechowywanie. Budynek jest zadbany, otoczony zielenią, z dogodnym dostępem do miejsc parkingowych.
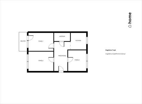
UKŁAD POMIESZCZEŃ:
To idealna propozycja zarówno dla rodziny, jak i inwestora pod wynajem – doskonała lokalizacja i funkcjonalny układ pomieszczeń gwarantują duży potencjał tej nieruchomości.
OKOLICA:
Lokalizacja zapewnia połączenie spokoju z bliskością centrum. W najbliższym otoczeniu znajdują się sklepy spożywcze, punkty usługowe, szkoły, przedszkola oraz przystanki komunikacji miejskiej. Spacerem można dojść do centrum handlowego Millenium Hall, Uniwersytetu Rzeszowskiego czy terenów rekreacyjnych nad Wisłokiem.
Dodatkowym atutem jest szybki dojazd do autostrady A4 i obwodnicy miasta, co gwarantuje wygodne połączenie z innymi częściami Rzeszowa i regionu.
Marzenia o nowym mieszkaniu zaczynają się od spotkania.
Chętnie oprowadzę i odpowiem na każde pytanie – a nasz zespół kredytowy pomoże sprawić, że zakup będzie prostszy, niż się wydaje.
Doradca ds. Nieruchomości
Magdalena Trojak
Tel.: 572pokaż telefon
E-mail: magdalena.skontaktuj się
Oferta wysłana z programu dla biur nieruchomości ASARI CRM (asaricrm.com)
Numer oferty: 5361/14016/OMS
• Cicha, zielona okolica – przystanek autobusowy tuż obok bloku
• Do CH Millenium Hall oraz Uniwersytetu Rzeszowskiego zaledwie 10 minut spacerem
• Szybki dojazd do autostrady – tylko 3 km
• Mieszkanie dwustronne, słoneczne
• Łazienka po remoncie
• Balkon oraz piwnica w cenie
• Stan do odświeżenia – idealne do własnej aranżacji
• Odrębna własność z księgą wieczystą
OPIS:
Mieszkanie jest dwustronne i bardzo dobrze doświetlone, co zapewnia komfort i przytulny klimat wnętrza. Łazienka została niedawno wyremontowana, natomiast pozostała część mieszkania pozostaje w stanie do odświeżenia, dzięki czemu nowy właściciel może zaaranżować przestrzeń według własnych potrzeb i gustu.
Do lokalu przynależy balkon oraz piwnica – idealne miejsce na przechowywanie. Budynek jest zadbany, otoczony zielenią, z dogodnym dostępem do miejsc parkingowych.
UKŁAD POMIESZCZEŃ:
- Salon z wyjściem na balkon
- Dwie sypialnie
- Oddzielna kuchnia
- Łazienka
- Przedpokój
To idealna propozycja zarówno dla rodziny, jak i inwestora pod wynajem – doskonała lokalizacja i funkcjonalny układ pomieszczeń gwarantują duży potencjał tej nieruchomości.
OKOLICA:
Lokalizacja zapewnia połączenie spokoju z bliskością centrum. W najbliższym otoczeniu znajdują się sklepy spożywcze, punkty usługowe, szkoły, przedszkola oraz przystanki komunikacji miejskiej. Spacerem można dojść do centrum handlowego Millenium Hall, Uniwersytetu Rzeszowskiego czy terenów rekreacyjnych nad Wisłokiem.
Dodatkowym atutem jest szybki dojazd do autostrady A4 i obwodnicy miasta, co gwarantuje wygodne połączenie z innymi częściami Rzeszowa i regionu.
Marzenia o nowym mieszkaniu zaczynają się od spotkania.
Chętnie oprowadzę i odpowiem na każde pytanie – a nasz zespół kredytowy pomoże sprawić, że zakup będzie prostszy, niż się wydaje.
Doradca ds. Nieruchomości
Magdalena Trojak
Tel.: 572pokaż telefon
E-mail: magdalena.skontaktuj się
Oferta wysłana z programu dla biur nieruchomości ASARI CRM (asaricrm.com)
Numer oferty: 5361/14016/OMS
Statystyki ogłoszenia:
Podobne nieruchomości