To ogłoszenie jest już nieaktualne

To ogłoszenie jest już nieaktualne.

Ogłoszenia archiwalne prezentujemy w celu budowania wartościowej bazy średnich cen nieruchomości.

Zobacz aktualne ogłoszenia z lokalizacji: Rudka, Chełm, chełmski, lubelskie

Dom na sprzedaż Rudka, Cicha

94,43 m2
949 000 PLN 10 050 zł/m2
Opis
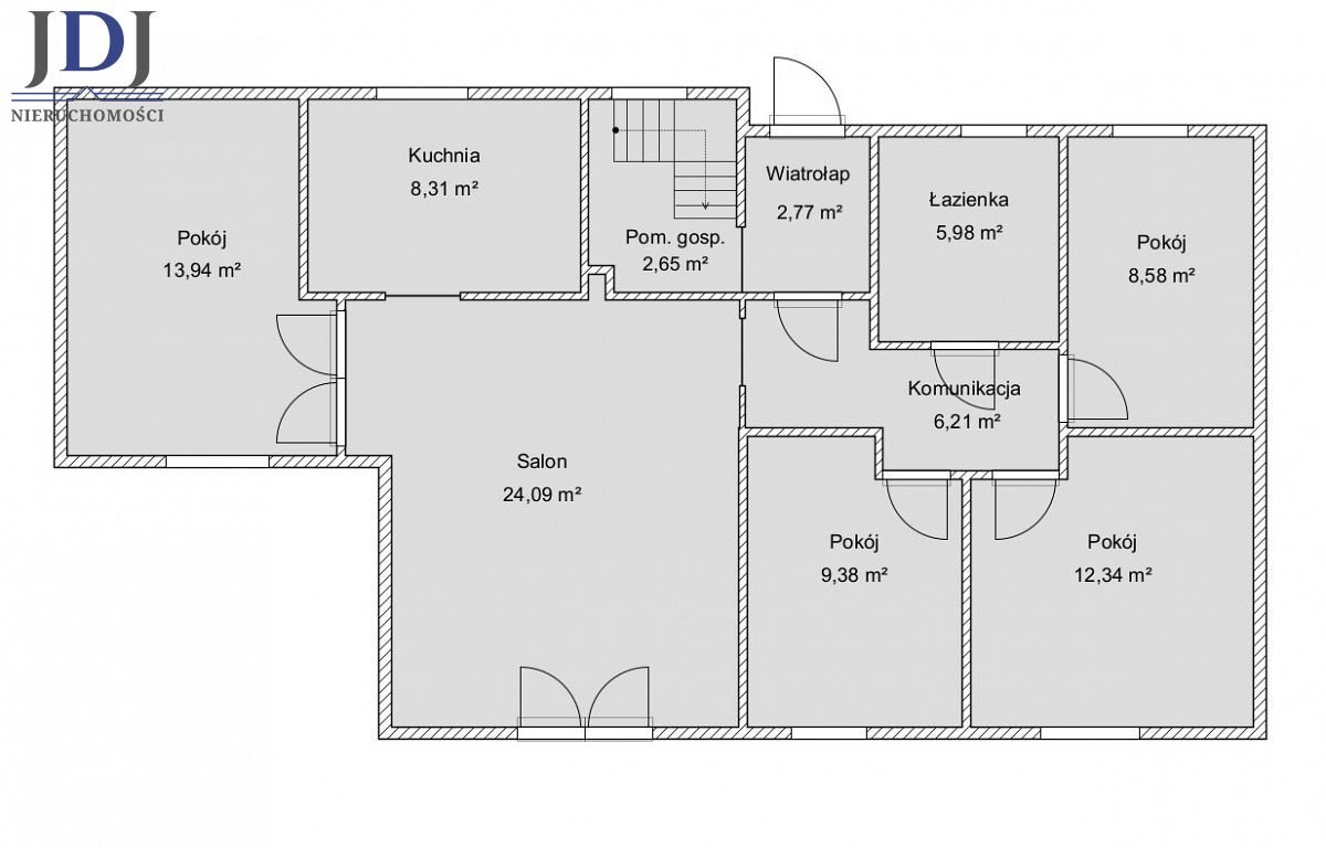
Przedstawiamy Państwu wyjątkową ofertę sprzedaży parterowego, murowanego domu jednorodzinnego o powierzchni użytkowej 94,43 m2, usytuowanego na przestronnej działce o powierzchni 2685 m2 w malowniczej miejscowości Rudka, gmina Chełm, pow. chełmski, woj. lubelskie. Rozkład pomieszczeń: Wiatrołap Przestronny przedpokój 4 komfortowe sypialnie Salon z bezpośrednim wyjściem na taras Pomieszczenie gospodarcze z dostępem do piwnicy, gdzie znajduje się piec C.O. Funkcjonalna kuchnia Łazienka z WC Dom wyposażony jest w piec węglowo-drzewny oraz solary do podgrzewania wody, co zapewnia niskie koszty eksploatacji oraz komfort przez cały rok. Działka w pełni ogrodzona, zapewnia prywatność i bezpieczeństwo. Na terenie posesji znajduje się wolnostojący garaż oraz wiata garażowa. Sercem ogrodu jest urokliwy staw, przy którym można zorganizować ognisko. W tylnej części działki znajduje się ogrodzone miejsce, które obecnie idealnie sprawdza się jako przestrzeń dla gęsi. Rudka to oaza ciszy i spokoju z doskonałym dojazdem do miasta - w ciągu 10 minut drogi autem można znaleźć się w centrum Chełma. Dodatkowe atuty: Przed domem znajduje się estetyczny podjazd wyłożony kostką brukową, który dodaje całości uroku i funkcjonalności. Bliskość natury i sąsiedztwo z przyrodą zapewniają wyjątkowy klimat tego miejsca. Dom jest gotowy do zamieszkania bez dodatkowego nakładu finansowego. Istnieje możliwość podłączenia gazu ziemnego. To doskonała propozycja dla osób szukających spokoju i komfortu w otoczeniu natury, a zarazem dogodnego dostępu do miasta. Zapraszam do kontaktu - umów się na prezentację i poczuj wyjątkową atmosferę tego domu na żywo! DROGI KLIENCIE ! Oferujemy kompleksową obsługę: Pomoc w uzyskaniu kredytu - współpracujemy z wieloma bankami, byś miał wybór i najlepsze warunki. Skuteczna sprzedaż nieruchomości - od wyceny po finalizację transakcji. Świadectwa charakterystyki energetycznej - szybka realizacja zgodna z obowiązującymi przepisami. Profesjonalne doradztwo i wsparcie na każdym etapie - bo wiemy, że decyzje o sprzedaży czy zakupie nieruchomości to ważne momenty w życiu. Skontaktuj się - zadbamy o wszystko Justyna: 885-598-884 ::oferta eksportowana z programu mediaRent::
Więcej
Dom:
na sprzedaż
Liczba pokoi:
5
Powierzchnia całkowita:
94,43 m2
Lokalizacja:
województwo: lubelskie powiat: chełmski gmina: Chełm miejscowość: Rudka ulica: Cicha