• Kategoria Mieszkania na sprzedaż
  • Lokalizacja łódzkie, Łódź, Polesie, Nowe Sady 85
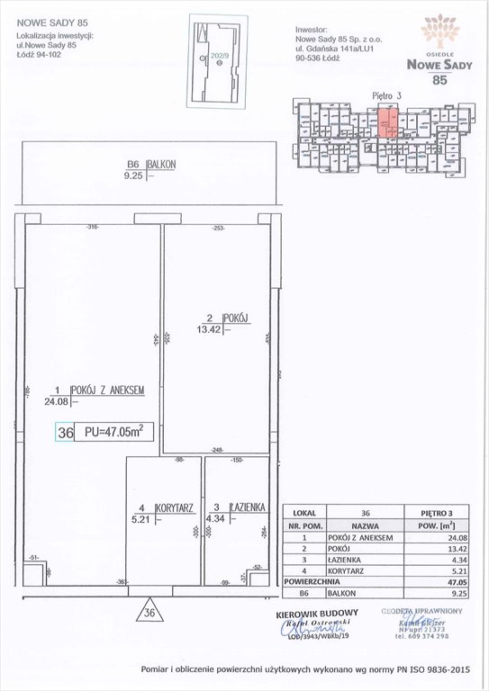
  • Powierzchnia całkowita47,05 m2
  • Cena

    451 680 zł

    Reklama ico Sprawdź ratę Sprawdź ratę RSSO 6,71%
    na dz. 24.11.25
    trade ico trade ico trade
  • Cena za m2 9 600 zł/m2
  • Cennik na stronie dewelopera Zobacz ceny >>
  • Liczba pokoi 2
  • Piętro 3
  • Rok budowy 2024
  • Materiał beton
  • Kanalizacjamiejska
  • Ogrzewaniemiejskie
Informacje dodatkowe:
teren zamknięty, stacja ładowania pojazdów, winda, przyłącze internetowe, przyłącze telewizyjne, usługi w budynku, garaż
Okolica:
szkoła, park / las, przychodnia / szpital, poczta, sklep spożywczy, przedszkole, autobus

Lokalizacja

Łódź, Polesie, Nowe Sady 85

Opis oferty

Osiedle Nowe Sady 85 to idealne rozwiązanie dla tych, którzy cenią sobie spokojną okolicę, jednocześnie nie rezygnując z dostępu do ważnych punktów w mieście. Zlokalizowane w niewielkiej odległości od centrum, osiedle zapewnia łatwy dostęp do wszystkich ważnych punktów w mieście, takich jak szkoły, uczelnie, sklepy, centra rozrywki i kulturalne oraz miejsca pracy. W sąsiedztwie osiedla znajduje się wiele obszarów zielonych, parków oraz terenów rekreacyjnych, co pozwala mieszkańcom na relaks i wypoczynek na łonie natury, z dala od miejskiego zgiełku. Ponadto, w pobliżu osiedla dostępne są także place zabaw, stanowiące idealne miejsce rozrywki dla najmłodszych.
Numer oferty: M36

Statystyki ogłoszenia:

oko

Inne mieszkania dostępne w tej inwestycji

Filtruj oferty x Resetuj filtry
-
-
-
Rzut
Nr ref.
Piętro
Pokoje
Powierzchnia Pow.
Cena
M19 2 2 47,62 m2 457 152 zł Nowe Sady 85 - M19 - Łódź, Polesie, Nowe Sady 85, 47.62m2
M23 2 3 66,60 m2 592 740 zł Nowe Sady 85 - M23 - Łódź, Polesie, Nowe Sady 85, 66.6m2
M24 2 4 75,99 m2 676 311 zł Nowe Sady 85 - M24 - Łódź, Polesie, Nowe Sady 85, 75.99m2
M25 2 4 76,25 m2 678 625 zł Nowe Sady 85 - M25 - Łódź, Polesie, Nowe Sady 85, 76.25m2
M26 2 2 43,17 m2 418 749 zł Nowe Sady 85 - M26 - Łódź, Polesie, Nowe Sady 85, 43.17m2
M33 3 2 47,68 m2 457 728 zł Nowe Sady 85 - M33 - Łódź, Polesie, Nowe Sady 85, 47.68m2
M37 3 3 66,62 m2 592 918 zł Nowe Sady 85 - M37 - Łódź, Polesie, Nowe Sady 85, 66.62m2
M38 3 4 75,96 m2 676 044 zł Nowe Sady 85 - M38 - Łódź, Polesie, Nowe Sady 85, 75.96m2
M47 4 2 47,71 m2 458 016 zł Nowe Sady 85 - M47 - Łódź, Polesie, Nowe Sady 85, 47.71m2
M51 4 3 66,53 m2 592 117 zł Nowe Sady 85 - M51 - Łódź, Polesie, Nowe Sady 85, 66.53m2
M52 4 3 76,21 m2 678 269 zł Nowe Sady 85 - M52 - Łódź, Polesie, Nowe Sady 85, 76.21m2
M59 5 2 46,85 m2 454 445 zł Nowe Sady 85 - M59 - Łódź, Polesie, Nowe Sady 85, 46.85m2
M61 5 2 47,68 m2 457 728 zł Nowe Sady 85 - M61 - Łódź, Polesie, Nowe Sady 85, 47.68m2
M65 5 3 66,42 m2 591 138 zł Nowe Sady 85 - M65 - Łódź, Polesie, Nowe Sady 85, 66.42m2

Podobne nieruchomości