Szczegóły oferty MC_I_B_3_1 Sprawdź wszystkie oferty w tej inwestycji >>>

Informacje dodatkowe:
plac zabaw, stacja ładowania pojazdów, winda, stojaki rowerowe, przyłącze internetowe, fotowoltaika, garaż
Okolica:
szkoła, park / las, metro, przedszkole, plac zabaw, żłobek

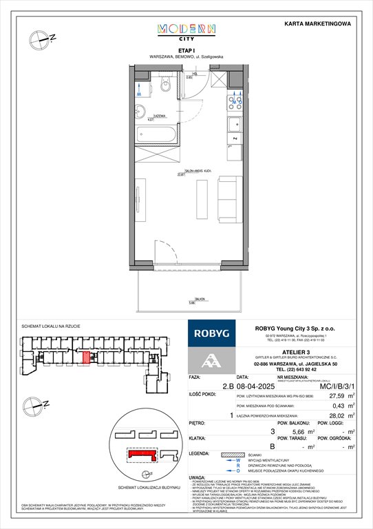
Lokalizacja

Warszawa, Bemowo, Szeligowska

Opis oferty

Bemowo to innowacyjna, dynamicznie rozwijająca się dzielnica, chętnie wybierana na miejsce do życia. Ludzi przyciąga tu bogata oferta usług społecznych i kulturalnych, piękna zieleń, nowoczesne rozwiązania oraz doskonałe połączenia komunikacyjne. Właśnie dlatego od lat tworzymy tu nowoczesne, przyjazne mieszkańcom osiedla. W okolicy ulic Batalionów Chłopskich i Szeligowskiej wybudowaliśmy już 1500 mieszkań i byliśmy pionierem zagospodarowania tej części dzielnicy. Obecnie realizujemy projekt Modern City, w ramach którego powstanie łącznie ok. 800 funkcjonalnych apartamentów i mieszkań na sprzedaż. Do mieszkań przynależeć będą duże balkony, loggie lub ogródki. Cechą charakterystyczną osiedla jest ciekawa, modernistyczna architektura, eleganckie białe elewacje z elementami klinkieru, części wspólne indywidualnie zaprojektowane z materiałów wysokiej jakości. Wewnątrz osiedla powstanie rozległy park z elementami małej architektury, ścieżką rowerową, placem zabaw, strefą relaksu i siłownią plenerową wyposażoną w urządzenia do street workoutu. Każde mieszkanie, bez dodatkowych opłat, zostanie wyposażone w system Smart House - inteligentny dom. Inwestycja posiada doskonałą lokalizację - tylko 200 m od budowanej stacji metra.
Numer oferty: MC_I_B_3_1

Statystyki ogłoszenia:

oko

Inne mieszkania dostępne w tej inwestycji

Filtruj oferty x Resetuj filtry
-
-
-
Rzut
Nr ref.
Piętro
Pokoje
Powierzchnia Pow.
Cena
MC_F_A_0_14 0 2 37,42 m2 Zapytaj o cenę Modern City - MC_F_A_0_14 - Warszawa, Bemowo, Szeligowska, 37.42m2
MC_F_A_2_1 2 3 55,93 m2 Zapytaj o cenę Modern City - MC_F_A_2_1 - Warszawa, Bemowo, Szeligowska, 55.93m2
MC_F_A_2_2 2 3 52,15 m2 Zapytaj o cenę Modern City - MC_F_A_2_2 - Warszawa, Bemowo, Szeligowska, 52.15m2
MC_F_A_2_3 2 3 65,61 m2 Zapytaj o cenę Modern City - MC_F_A_2_3 - Warszawa, Bemowo, Szeligowska, 65.61m2
MC_G_A_0_2 0 2 41,78 m2 Zapytaj o cenę Modern City - MC_G_A_0_2 - Warszawa, Bemowo, Szeligowska, 41.78m2
MC_G_A_0_3 0 2 41,78 m2 Zapytaj o cenę Modern City - MC_G_A_0_3 - Warszawa, Bemowo, Szeligowska, 41.78m2
MC_G_A_0_4 0 2 41,11 m2 Zapytaj o cenę Modern City - MC_G_A_0_4 - Warszawa, Bemowo, Szeligowska, 41.11m2
MC_G_A_0_8 0 1 30,21 m2 Zapytaj o cenę Modern City - MC_G_A_0_8 - Warszawa, Bemowo, Szeligowska, 30.21m2
MC_G_A_1_1 1 3 63,08 m2 Zapytaj o cenę Modern City - MC_G_A_1_1 - Warszawa, Bemowo, Szeligowska, 63.08m2
MC_G_A_1_12 1 3 53,96 m2 Zapytaj o cenę Modern City - MC_G_A_1_12 - Warszawa, Bemowo, Szeligowska, 53.96m2
MC_G_A_1_2 1 2 41,78 m2 Zapytaj o cenę Modern City - MC_G_A_1_2 - Warszawa, Bemowo, Szeligowska, 41.78m2
MC_G_A_1_3 1 2 41,78 m2 Zapytaj o cenę Modern City - MC_G_A_1_3 - Warszawa, Bemowo, Szeligowska, 41.78m2
MC_G_A_1_4 1 2 41,11 m2 Zapytaj o cenę Modern City - MC_G_A_1_4 - Warszawa, Bemowo, Szeligowska, 41.11m2
MC_G_A_1_6 1 1 33,11 m2 Zapytaj o cenę Modern City - MC_G_A_1_6 - Warszawa, Bemowo, Szeligowska, 33.11m2
MC_G_A_2_1 2 3 63,08 m2 Zapytaj o cenę Modern City - MC_G_A_2_1 - Warszawa, Bemowo, Szeligowska, 63.08m2
MC_G_A_2_10 2 2 37,48 m2 Zapytaj o cenę Modern City - MC_G_A_2_10 - Warszawa, Bemowo, Szeligowska, 37.48m2
MC_G_A_2_2 2 2 41,78 m2 Zapytaj o cenę Modern City - MC_G_A_2_2 - Warszawa, Bemowo, Szeligowska, 41.78m2
MC_G_A_2_4 2 2 41,11 m2 Zapytaj o cenę Modern City - MC_G_A_2_4 - Warszawa, Bemowo, Szeligowska, 41.11m2
MC_G_A_2_6 2 1 33,11 m2 Zapytaj o cenę Modern City - MC_G_A_2_6 - Warszawa, Bemowo, Szeligowska, 33.11m2
MC_G_A_3_1 3 3 63,08 m2 Zapytaj o cenę Modern City - MC_G_A_3_1 - Warszawa, Bemowo, Szeligowska, 63.08m2
MC_G_A_3_4 3 2 41,11 m2 Zapytaj o cenę Modern City - MC_G_A_3_4 - Warszawa, Bemowo, Szeligowska, 41.11m2
MC_G_A_3_6 3 1 33,11 m2 Zapytaj o cenę Modern City - MC_G_A_3_6 - Warszawa, Bemowo, Szeligowska, 33.11m2
MC_G_A_4_2 4 2 41,11 m2 Zapytaj o cenę Modern City - MC_G_A_4_2 - Warszawa, Bemowo, Szeligowska, 41.11m2
MC_G_B_0_6 0 3 57,94 m2 Zapytaj o cenę Modern City - MC_G_B_0_6 - Warszawa, Bemowo, Szeligowska, 57.94m2
MC_G_B_0_7 0 2 43,91 m2 Zapytaj o cenę Modern City - MC_G_B_0_7 - Warszawa, Bemowo, Szeligowska, 43.91m2
MC_G_B_1_2 1 2 38,90 m2 Zapytaj o cenę Modern City - MC_G_B_1_2 - Warszawa, Bemowo, Szeligowska, 38.9m2
MC_G_B_1_3 1 3 57,65 m2 Zapytaj o cenę Modern City - MC_G_B_1_3 - Warszawa, Bemowo, Szeligowska, 57.65m2
MC_G_B_1_6 1 3 64,60 m2 Zapytaj o cenę Modern City - MC_G_B_1_6 - Warszawa, Bemowo, Szeligowska, 64.6m2
MC_G_B_1_8 1 2 43,91 m2 Zapytaj o cenę Modern City - MC_G_B_1_8 - Warszawa, Bemowo, Szeligowska, 43.91m2
MC_G_B_2_2 2 2 38,90 m2 Zapytaj o cenę Modern City - MC_G_B_2_2 - Warszawa, Bemowo, Szeligowska, 38.9m2
MC_G_B_2_8 2 2 43,91 m2 Zapytaj o cenę Modern City - MC_G_B_2_8 - Warszawa, Bemowo, Szeligowska, 43.91m2
MC_G_B_3_3 3 3 57,65 m2 Zapytaj o cenę Modern City - MC_G_B_3_3 - Warszawa, Bemowo, Szeligowska, 57.65m2
MC_G_B_3_8 3 2 43,91 m2 Zapytaj o cenę Modern City - MC_G_B_3_8 - Warszawa, Bemowo, Szeligowska, 43.91m2
MC_H_A_0_1 0 3 56,24 m2 Zapytaj o cenę Modern City - MC_H_A_0_1 - Warszawa, Bemowo, Szeligowska, 56.24m2
MC_H_A_0_11 0 2 41,36 m2 Zapytaj o cenę Modern City - MC_H_A_0_11 - Warszawa, Bemowo, Szeligowska, 41.36m2
MC_H_A_0_16 0 2 37,22 m2 Zapytaj o cenę Modern City - MC_H_A_0_16 - Warszawa, Bemowo, Szeligowska, 37.22m2
MC_H_A_0_2 0 3 51,17 m2 Zapytaj o cenę Modern City - MC_H_A_0_2 - Warszawa, Bemowo, Szeligowska, 51.17m2
MC_H_A_0_3 0 2 38,72 m2 Zapytaj o cenę Modern City - MC_H_A_0_3 - Warszawa, Bemowo, Szeligowska, 38.72m2
MC_H_A_0_4 0 3 68 m2 Zapytaj o cenę Modern City - MC_H_A_0_4 - Warszawa, Bemowo, Szeligowska, 68m2
MC_H_A_0_8 0 2 39,27 m2 Zapytaj o cenę Modern City - MC_H_A_0_8 - Warszawa, Bemowo, Szeligowska, 39.27m2
MC_H_A_1_1 1 3 56,26 m2 Zapytaj o cenę Modern City - MC_H_A_1_1 - Warszawa, Bemowo, Szeligowska, 56.26m2
MC_H_A_1_13 1 3 64,83 m2 Zapytaj o cenę Modern City - MC_H_A_1_13 - Warszawa, Bemowo, Szeligowska, 64.83m2
MC_H_A_1_17 1 2 43,81 m2 Zapytaj o cenę Modern City - MC_H_A_1_17 - Warszawa, Bemowo, Szeligowska, 43.81m2
MC_H_A_1_3 1 3 66,50 m2 Zapytaj o cenę Modern City - MC_H_A_1_3 - Warszawa, Bemowo, Szeligowska, 66.5m2
MC_H_A_1_4 1 3 68 m2 Zapytaj o cenę Modern City - MC_H_A_1_4 - Warszawa, Bemowo, Szeligowska, 68m2
MC_H_A_1_6 1 2 38,15 m2 Zapytaj o cenę Modern City - MC_H_A_1_6 - Warszawa, Bemowo, Szeligowska, 38.15m2
MC_H_A_1_9 1 2 41,29 m2 Zapytaj o cenę Modern City - MC_H_A_1_9 - Warszawa, Bemowo, Szeligowska, 41.29m2
MC_H_A_2_1 2 3 56,26 m2 Zapytaj o cenę Modern City - MC_H_A_2_1 - Warszawa, Bemowo, Szeligowska, 56.26m2
MC_H_A_2_3 2 3 66,50 m2 Zapytaj o cenę Modern City - MC_H_A_2_3 - Warszawa, Bemowo, Szeligowska, 66.5m2
MC_H_A_3_1 3 3 56,26 m2 Zapytaj o cenę Modern City - MC_H_A_3_1 - Warszawa, Bemowo, Szeligowska, 56.26m2
MC_H_A_3_17 3 2 43,81 m2 Zapytaj o cenę Modern City - MC_H_A_3_17 - Warszawa, Bemowo, Szeligowska, 43.81m2
MC_H_A_3_3 3 3 66,50 m2 Zapytaj o cenę Modern City - MC_H_A_3_3 - Warszawa, Bemowo, Szeligowska, 66.5m2
MC_H_A_3_7 3 2 38,35 m2 Zapytaj o cenę Modern City - MC_H_A_3_7 - Warszawa, Bemowo, Szeligowska, 38.35m2
MC_I_A_0_10 0 2 41,26 m2 Zapytaj o cenę Modern City - MC_I_A_0_10 - Warszawa, Bemowo, Szeligowska, 41.26m2
MC_I_A_0_4 0 1 33,48 m2 Zapytaj o cenę Modern City - MC_I_A_0_4 - Warszawa, Bemowo, Szeligowska, 33.48m2
MC_I_A_0_8 0 2 41,37 m2 Zapytaj o cenę Modern City - MC_I_A_0_8 - Warszawa, Bemowo, Szeligowska, 41.37m2
MC_I_A_0_9 0 2 39,10 m2 Zapytaj o cenę Modern City - MC_I_A_0_9 - Warszawa, Bemowo, Szeligowska, 39.1m2
MC_I_A_1_10 1 2 41,26 m2 Zapytaj o cenę Modern City - MC_I_A_1_10 - Warszawa, Bemowo, Szeligowska, 41.26m2
MC_I_A_1_4 1 1 33,48 m2 Zapytaj o cenę Modern City - MC_I_A_1_4 - Warszawa, Bemowo, Szeligowska, 33.48m2
MC_I_A_1_8 1 2 44,38 m2 Zapytaj o cenę Modern City - MC_I_A_1_8 - Warszawa, Bemowo, Szeligowska, 44.38m2
MC_I_A_1_9 1 2 39,10 m2 Zapytaj o cenę Modern City - MC_I_A_1_9 - Warszawa, Bemowo, Szeligowska, 39.1m2
MC_I_A_2_10 2 2 41,26 m2 Zapytaj o cenę Modern City - MC_I_A_2_10 - Warszawa, Bemowo, Szeligowska, 41.26m2
MC_I_A_2_9 2 2 39,10 m2 Zapytaj o cenę Modern City - MC_I_A_2_9 - Warszawa, Bemowo, Szeligowska, 39.1m2
MC_I_A_3_10 3 2 41,26 m2 Zapytaj o cenę Modern City - MC_I_A_3_10 - Warszawa, Bemowo, Szeligowska, 41.26m2
MC_I_A_3_4 3 1 33,48 m2 Zapytaj o cenę Modern City - MC_I_A_3_4 - Warszawa, Bemowo, Szeligowska, 33.48m2
MC_I_A_3_9 3 2 39,10 m2 Zapytaj o cenę Modern City - MC_I_A_3_9 - Warszawa, Bemowo, Szeligowska, 39.1m2
MC_I_A_4_10 4 2 41,26 m2 Zapytaj o cenę Modern City - MC_I_A_4_10 - Warszawa, Bemowo, Szeligowska, 41.26m2
MC_I_B_0_1 0 1 27,49 m2 Zapytaj o cenę Modern City - MC_I_B_0_1 - Warszawa, Bemowo, Szeligowska, 27.49m2
MC_I_B_0_2 0 2 42,81 m2 Zapytaj o cenę Modern City - MC_I_B_0_2 - Warszawa, Bemowo, Szeligowska, 42.81m2
MC_I_B_0_6 0 2 37,22 m2 Zapytaj o cenę Modern City - MC_I_B_0_6 - Warszawa, Bemowo, Szeligowska, 37.22m2
MC_I_B_0_8 0 2 42,57 m2 Zapytaj o cenę Modern City - MC_I_B_0_8 - Warszawa, Bemowo, Szeligowska, 42.57m2
MC_I_B_0_9 0 2 42 m2 Zapytaj o cenę Modern City - MC_I_B_0_9 - Warszawa, Bemowo, Szeligowska, 42m2
MC_I_B_1_1 1 1 27,59 m2 Zapytaj o cenę Modern City - MC_I_B_1_1 - Warszawa, Bemowo, Szeligowska, 27.59m2
MC_I_B_1_2 1 2 44,35 m2 Zapytaj o cenę Modern City - MC_I_B_1_2 - Warszawa, Bemowo, Szeligowska, 44.35m2
MC_I_B_1_4 1 2 41,82 m2 Zapytaj o cenę Modern City - MC_I_B_1_4 - Warszawa, Bemowo, Szeligowska, 41.82m2
MC_I_B_1_8 1 2 44,08 m2 Zapytaj o cenę Modern City - MC_I_B_1_8 - Warszawa, Bemowo, Szeligowska, 44.08m2
MC_I_B_1_9 1 2 42 m2 Zapytaj o cenę Modern City - MC_I_B_1_9 - Warszawa, Bemowo, Szeligowska, 42m2
MC_I_B_2_2 2 2 44,35 m2 Zapytaj o cenę Modern City - MC_I_B_2_2 - Warszawa, Bemowo, Szeligowska, 44.35m2
MC_I_B_2_8 2 2 44,08 m2 Zapytaj o cenę Modern City - MC_I_B_2_8 - Warszawa, Bemowo, Szeligowska, 44.08m2
MC_I_B_2_9 2 2 42 m2 Zapytaj o cenę Modern City - MC_I_B_2_9 - Warszawa, Bemowo, Szeligowska, 42m2
MC_I_B_3_2 3 2 44,35 m2 Zapytaj o cenę Modern City - MC_I_B_3_2 - Warszawa, Bemowo, Szeligowska, 44.35m2
MC_I_B_3_4 3 2 41,82 m2 Zapytaj o cenę Modern City - MC_I_B_3_4 - Warszawa, Bemowo, Szeligowska, 41.82m2
MC_I_B_3_8 3 2 44,08 m2 Zapytaj o cenę Modern City - MC_I_B_3_8 - Warszawa, Bemowo, Szeligowska, 44.08m2
MC_I_B_3_9 3 2 42 m2 Zapytaj o cenę Modern City - MC_I_B_3_9 - Warszawa, Bemowo, Szeligowska, 42m2
MC_I_B_4_1 4 1 27,59 m2 Zapytaj o cenę Modern City - MC_I_B_4_1 - Warszawa, Bemowo, Szeligowska, 27.59m2
MC_I_B_4_2 4 2 44,35 m2 Zapytaj o cenę Modern City - MC_I_B_4_2 - Warszawa, Bemowo, Szeligowska, 44.35m2
MC_I_B_4_8 4 2 44,08 m2 Zapytaj o cenę Modern City - MC_I_B_4_8 - Warszawa, Bemowo, Szeligowska, 44.08m2
MC_I_C_0_2 0 2 38,58 m2 Zapytaj o cenę Modern City - MC_I_C_0_2 - Warszawa, Bemowo, Szeligowska, 38.58m2
MC_I_C_0_3 0 2 41,25 m2 Zapytaj o cenę Modern City - MC_I_C_0_3 - Warszawa, Bemowo, Szeligowska, 41.25m2
MC_I_C_0_8 0 3 59,63 m2 Zapytaj o cenę Modern City - MC_I_C_0_8 - Warszawa, Bemowo, Szeligowska, 59.63m2
MC_I_C_0_9 0 2 44,20 m2 Zapytaj o cenę Modern City - MC_I_C_0_9 - Warszawa, Bemowo, Szeligowska, 44.2m2
MC_I_C_1_10 1 2 44,20 m2 Zapytaj o cenę Modern City - MC_I_C_1_10 - Warszawa, Bemowo, Szeligowska, 44.2m2
MC_I_C_1_3 1 2 41,25 m2 Zapytaj o cenę Modern City - MC_I_C_1_3 - Warszawa, Bemowo, Szeligowska, 41.25m2
MC_I_C_1_8 1 3 64,43 m2 Zapytaj o cenę Modern City - MC_I_C_1_8 - Warszawa, Bemowo, Szeligowska, 64.43m2
MC_I_C_1_9 1 3 69,53 m2 Zapytaj o cenę Modern City - MC_I_C_1_9 - Warszawa, Bemowo, Szeligowska, 69.53m2
MC_I_C_2_10 2 2 44,20 m2 Zapytaj o cenę Modern City - MC_I_C_2_10 - Warszawa, Bemowo, Szeligowska, 44.2m2
MC_I_C_2_2 2 2 38,58 m2 Zapytaj o cenę Modern City - MC_I_C_2_2 - Warszawa, Bemowo, Szeligowska, 38.58m2
MC_I_C_2_3 2 2 41,25 m2 Zapytaj o cenę Modern City - MC_I_C_2_3 - Warszawa, Bemowo, Szeligowska, 41.25m2
MC_I_C_2_8 2 3 64,43 m2 Zapytaj o cenę Modern City - MC_I_C_2_8 - Warszawa, Bemowo, Szeligowska, 64.43m2
MC_I_C_3_10 3 2 44,20 m2 Zapytaj o cenę Modern City - MC_I_C_3_10 - Warszawa, Bemowo, Szeligowska, 44.2m2
MC_I_C_3_2 3 2 38,58 m2 Zapytaj o cenę Modern City - MC_I_C_3_2 - Warszawa, Bemowo, Szeligowska, 38.58m2
MC_I_C_3_3 3 2 41,25 m2 Zapytaj o cenę Modern City - MC_I_C_3_3 - Warszawa, Bemowo, Szeligowska, 41.25m2
MC_I_C_4_10 4 2 44,20 m2 Zapytaj o cenę Modern City - MC_I_C_4_10 - Warszawa, Bemowo, Szeligowska, 44.2m2
MC_I_C_4_2 4 2 38,58 m2 Zapytaj o cenę Modern City - MC_I_C_4_2 - Warszawa, Bemowo, Szeligowska, 38.58m2
MC_I_C_4_3 4 2 41,25 m2 Zapytaj o cenę Modern City - MC_I_C_4_3 - Warszawa, Bemowo, Szeligowska, 41.25m2
MC_J_A_1_11 1 2 43,14 m2 Zapytaj o cenę Modern City - MC_J_A_1_11 - Warszawa, Bemowo, Szeligowska, 43.14m2
MC_J_A_2_11 2 2 43,14 m2 Zapytaj o cenę Modern City - MC_J_A_2_11 - Warszawa, Bemowo, Szeligowska, 43.14m2
MC_J_A_3_11 3 2 43,14 m2 Zapytaj o cenę Modern City - MC_J_A_3_11 - Warszawa, Bemowo, Szeligowska, 43.14m2
MC_J_B_0_2 0 2 48,44 m2 Zapytaj o cenę Modern City - MC_J_B_0_2 - Warszawa, Bemowo, Szeligowska, 48.44m2
MC_J_B_0_3 0 3 57,29 m2 Zapytaj o cenę Modern City - MC_J_B_0_3 - Warszawa, Bemowo, Szeligowska, 57.29m2
MC_J_B_0_5 0 2 39,46 m2 Zapytaj o cenę Modern City - MC_J_B_0_5 - Warszawa, Bemowo, Szeligowska, 39.46m2
MC_J_B_0_9 0 2 40,43 m2 Zapytaj o cenę Modern City - MC_J_B_0_9 - Warszawa, Bemowo, Szeligowska, 40.43m2
MC_J_B_1_8 1 2 49,82 m2 Zapytaj o cenę Modern City - MC_J_B_1_8 - Warszawa, Bemowo, Szeligowska, 49.82m2
MC_J_B_1_9 1 2 40,46 m2 Zapytaj o cenę Modern City - MC_J_B_1_9 - Warszawa, Bemowo, Szeligowska, 40.46m2
MC_J_B_2_2 2 3 66,70 m2 Zapytaj o cenę Modern City - MC_J_B_2_2 - Warszawa, Bemowo, Szeligowska, 66.7m2
MC_J_B_2_9 2 2 40,46 m2 Zapytaj o cenę Modern City - MC_J_B_2_9 - Warszawa, Bemowo, Szeligowska, 40.46m2
MC_J_B_3_9 3 2 40,46 m2 Zapytaj o cenę Modern City - MC_J_B_3_9 - Warszawa, Bemowo, Szeligowska, 40.46m2

Podobne nieruchomości