• Kategoria Mieszkania na sprzedaż
  • Lokalizacja łódzkie, Łódź, Retkinia, Maratońska 49C
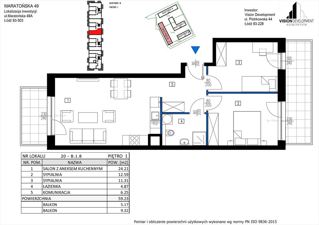
  • Powierzchnia całkowita59,23 m2
  • Cena

    562 685 zł

    Reklama ico Sprawdź ratę Sprawdź ratę RSSO 6,71%
    na dz. 24.11.25
    trade ico trade ico trade
  • Cena za m2 9 500 zł/m2
  • Liczba pokoi 3
  • Piętro 1
  • Rok budowy 2024
  • Materiał pustak
  • Kanalizacjamiejska
  • Ogrzewaniemiejskie
Informacje dodatkowe:
plac zabaw, miejsce naziemne, wózkarnia, teren zamknięty, stacja ładowania pojazdów, winda, przyłącze telefoniczne, stojaki rowerowe, przyłącze internetowe, ochrona, przyłącze telewizyjne, usługi w budynku, garaż
Okolica:
szkoła, park / las, tramwaj, przychodnia / szpital, centrum handlowe, poczta, sklep spożywczy, przedszkole, autobus, plac zabaw, apteka

Lokalizacja

Łódź, Retkinia, Maratońska 49C

Opis oferty

Maratońska 49 to nowoczesne osiedle mieszkaniowe w sercu Retkini w Łodzi, stworzone z myślą o komforcie i wygodzie życia. Inwestycja składa się z czterech eleganckich budynków otoczonych zielenią, oferujących gotowe do odbioru mieszkania o powierzchni od 27 m2 do 90 m2, z balkonami lub ogródkami. Na terenie osiedla znajdują się hale garażowe, rowerownie, plac zabaw, stacje ładowania aut elektrycznych oraz prywatne przedszkole. Deweloper oferuje również wykończenie mieszkań „pod klucz” oraz wsparcie w uzyskaniu finansowania. To idealne miejsce dla osób, które chcą zamieszkać w spokojnej, zielonej okolicy z pełną infrastrukturą i wygodnym dojazdem do centrum Łodzi.
Numer oferty: B.1.8

Statystyki ogłoszenia:

oko

Inne mieszkania dostępne w tej inwestycji

Filtruj oferty x Resetuj filtry
-
-
-
Rzut
Nr ref.
Piętro
Pokoje
Powierzchnia Pow.
Cena
A.1.4 1 1 29,18 m2 291 800 zł Maratońska 49 Nowa Retkinia  - A.1.4 - Łódź, Retkinia, Maratońska 49C, 29.18m2
A.1.5 1 3 62,76 m2 602 496 zł Maratońska 49 Nowa Retkinia  - A.1.5 - Łódź, Retkinia, Maratońska 49C, 62.76m2
A.1.6 1 3 62,90 m2 603 840 zł Maratońska 49 Nowa Retkinia  - A.1.6 - Łódź, Retkinia, Maratońska 49C, 62.9m2
A.1.8 1 1 29,04 m2 290 400 zł Maratońska 49 Nowa Retkinia  - A.1.8 - Łódź, Retkinia, Maratońska 49C, 29.04m2
A.1.9 1 4 73,67 m2 699 865 zł Maratońska 49 Nowa Retkinia  - A.1.9 - Łódź, Retkinia, Maratońska 49C, 73.67m2
A.10.10 10 3 56,59 m2 588 536 zł Maratońska 49 Nowa Retkinia  - A.10.10 - Łódź, Retkinia, Maratońska 49C, 56.59m2
A.10.12 10 1 27,36 m2 298 224 zł Maratońska 49 Nowa Retkinia  - A.10.12 - Łódź, Retkinia, Maratońska 49C, 27.36m2
A.10.4 10 1 29,39 m2 320 351 zł Maratońska 49 Nowa Retkinia  - A.10.4 - Łódź, Retkinia, Maratońska 49C, 29.39m2
A.10.5 10 3 57,62 m2 599 248 zł Maratońska 49 Nowa Retkinia  - A.10.5 - Łódź, Retkinia, Maratońska 49C, 57.62m2
A.10.6 10 3 57,81 m2 601 224 zł Maratońska 49 Nowa Retkinia  - A.10.6 - Łódź, Retkinia, Maratońska 49C, 57.81m2
A.10.8 10 1 29,35 m2 319 915 zł Maratońska 49 Nowa Retkinia  - A.10.8 - Łódź, Retkinia, Maratońska 49C, 29.35m2
A.2.4 2 1 29,32 m2 293 200 zł Maratońska 49 Nowa Retkinia  - A.2.4 - Łódź, Retkinia, Maratońska 49C, 29.32m2
A.3.10 3 3 62,28 m2 604 116 zł Maratońska 49 Nowa Retkinia  - A.3.10 - Łódź, Retkinia, Maratońska 49C, 62.28m2
A.3.4 3 1 29,36 m2 293 600 zł Maratońska 49 Nowa Retkinia  - A.3.4 - Łódź, Retkinia, Maratońska 49C, 29.36m2
A.4.4 4 1 29,42 m2 294 200 zł Maratońska 49 Nowa Retkinia  - A.4.4 - Łódź, Retkinia, Maratońska 49C, 29.42m2
A.5.4 5 1 29,35 m2 296 435 zł Maratońska 49 Nowa Retkinia  - A.5.4 - Łódź, Retkinia, Maratońska 49C, 29.35m2
A.6.4 6 1 29,34 m2 299 268 zł Maratońska 49 Nowa Retkinia  - A.6.4 - Łódź, Retkinia, Maratońska 49C, 29.34m2
A.7.4 7 1 29,36 m2 302 408 zł Maratońska 49 Nowa Retkinia  - A.7.4 - Łódź, Retkinia, Maratońska 49C, 29.36m2
A.8.4 8 1 29,34 m2 305 136 zł Maratońska 49 Nowa Retkinia  - A.8.4 - Łódź, Retkinia, Maratońska 49C, 29.34m2
A.8.6 8 3 57,79 m2 577 900 zł Maratońska 49 Nowa Retkinia  - A.8.6 - Łódź, Retkinia, Maratońska 49C, 57.79m2
A.8.8 8 1 29,41 m2 305 864 zł Maratońska 49 Nowa Retkinia  - A.8.8 - Łódź, Retkinia, Maratońska 49C, 29.41m2
A.8.9 8 4 67,20 m2 685 440 zł Maratońska 49 Nowa Retkinia  - A.8.9 - Łódź, Retkinia, Maratońska 49C, 67.2m2
A.9.12 9 1 27,33 m2 286 965 zł Maratońska 49 Nowa Retkinia  - A.9.12 - Łódź, Retkinia, Maratońska 49C, 27.33m2
A.9.4 9 1 29,31 m2 307 755 zł Maratońska 49 Nowa Retkinia  - A.9.4 - Łódź, Retkinia, Maratońska 49C, 29.31m2
A.9.5 9 3 57,61 m2 587 622 zł Maratońska 49 Nowa Retkinia  - A.9.5 - Łódź, Retkinia, Maratońska 49C, 57.61m2
A.9.6 9 3 57,78 m2 589 356 zł Maratońska 49 Nowa Retkinia  - A.9.6 - Łódź, Retkinia, Maratońska 49C, 57.78m2
A.9.8 9 1 29,29 m2 307 545 zł Maratońska 49 Nowa Retkinia  - A.9.8 - Łódź, Retkinia, Maratońska 49C, 29.29m2
B.0.4 4 89,56 m2 850 820 zł Maratońska 49 Nowa Retkinia  - B.0.4 - Łódź, Retkinia, Maratońska 49C, 89.56m2
B.0.6 2 47,56 m2 470 844 zł Maratońska 49 Nowa Retkinia  - B.0.6 - Łódź, Retkinia, Maratońska 49C, 47.56m2
B.1.10 1 1 29,17 m2 285 866 zł Maratońska 49 Nowa Retkinia  - B.1.10 - Łódź, Retkinia, Maratońska 49C, 29.17m2
B.1.14 1 1 27,67 m2 271 166 zł Maratońska 49 Nowa Retkinia  - B.1.14 - Łódź, Retkinia, Maratońska 49C, 27.67m2
B.1.2 1 1 29,87 m2 292 726 zł Maratońska 49 Nowa Retkinia  - B.1.2 - Łódź, Retkinia, Maratońska 49C, 29.87m2
B.1.4 1 3 58,63 m2 556 985 zł Maratońska 49 Nowa Retkinia  - B.1.4 - Łódź, Retkinia, Maratońska 49C, 58.63m2
B.1.7 1 1 27,85 m2 272 930 zł Maratońska 49 Nowa Retkinia  - B.1.7 - Łódź, Retkinia, Maratońska 49C, 27.85m2
B.1.9 1 3 65,04 m2 611 376 zł Maratońska 49 Nowa Retkinia  - B.1.9 - Łódź, Retkinia, Maratońska 49C, 65.04m2
B.2.10 2 1 29,21 m2 286 258 zł Maratońska 49 Nowa Retkinia  - B.2.10 - Łódź, Retkinia, Maratońska 49C, 29.21m2
B.2.14 2 1 27,60 m2 262 000 zł Maratońska 49 Nowa Retkinia  - B.2.14 - Łódź, Retkinia, Maratońska 49C, 27.6m2
B.2.2 2 1 29,87 m2 292 726 zł Maratońska 49 Nowa Retkinia  - B.2.2 - Łódź, Retkinia, Maratońska 49C, 29.87m2
B.2.7 2 1 27,75 m2 271 950 zł Maratońska 49 Nowa Retkinia  - B.2.7 - Łódź, Retkinia, Maratońska 49C, 27.75m2
B.3.10 3 1 29,20 m2 286 160 zł Maratońska 49 Nowa Retkinia  - B.3.10 - Łódź, Retkinia, Maratońska 49C, 29.2m2
B.3.2 3 1 29,93 m2 293 314 zł Maratońska 49 Nowa Retkinia  - B.3.2 - Łódź, Retkinia, Maratońska 49C, 29.93m2
B.3.7 3 1 27,73 m2 271 754 zł Maratońska 49 Nowa Retkinia  - B.3.7 - Łódź, Retkinia, Maratońska 49C, 27.73m2
B.4.10 4 1 29,85 m2 295 515 zł Maratońska 49 Nowa Retkinia  - B.4.10 - Łódź, Retkinia, Maratońska 49C, 29.85m2
B.4.14 4 1 28,36 m2 280 764 zł Maratońska 49 Nowa Retkinia  - B.4.14 - Łódź, Retkinia, Maratońska 49C, 28.36m2
B.4.2 4 1 30,59 m2 302 841 zł Maratońska 49 Nowa Retkinia  - B.4.2 - Łódź, Retkinia, Maratońska 49C, 30.59m2
B.4.7 4 1 28,53 m2 282 447 zł Maratońska 49 Nowa Retkinia  - B.4.7 - Łódź, Retkinia, Maratońska 49C, 28.53m2
C.0.5 2 48,16 m2 476 784 zł Maratońska 49 Nowa Retkinia  - C.0.5 - Łódź, Retkinia, Maratońska 49C, 48.16m2
C.1.10 1 4 74,98 m2 697 314 zł Maratońska 49 Nowa Retkinia  - C.1.10 - Łódź, Retkinia, Maratońska 49C, 74.98m2
C.1.11 1 3 59,56 m2 565 820 zł Maratońska 49 Nowa Retkinia  - C.1.11 - Łódź, Retkinia, Maratońska 49C, 59.56m2
C.1.12 1 1 29,09 m2 285 082 zł Maratońska 49 Nowa Retkinia  - C.1.12 - Łódź, Retkinia, Maratońska 49C, 29.09m2
C.1.13 1 1 29,34 m2 290 466 zł Maratońska 49 Nowa Retkinia  - C.1.13 - Łódź, Retkinia, Maratońska 49C, 29.34m2
C.1.14 1 3 58,49 m2 555 655 zł Maratońska 49 Nowa Retkinia  - C.1.14 - Łódź, Retkinia, Maratońska 49C, 58.49m2
C.1.4 1 3 59,31 m2 563 445 zł Maratońska 49 Nowa Retkinia  - C.1.4 - Łódź, Retkinia, Maratońska 49C, 59.31m2
C.1.5 1 3 73,10 m2 643 280 zł Maratońska 49 Nowa Retkinia  - C.1.5 - Łódź, Retkinia, Maratońska 49C, 73.1m2
C.1.6 1 2 58,16 m2 511 808 zł Maratońska 49 Nowa Retkinia  - C.1.6 - Łódź, Retkinia, Maratońska 49C, 58.16m2
C.1.8 1 1 28,92 m2 286 308 zł Maratońska 49 Nowa Retkinia  - C.1.8 - Łódź, Retkinia, Maratońska 49C, 28.92m2
C.1.9 1 1 29,51 m2 292 149 zł Maratońska 49 Nowa Retkinia  - C.1.9 - Łódź, Retkinia, Maratońska 49C, 29.51m2
C.2.1 2 3 58,17 m2 552 615 zł Maratońska 49 Nowa Retkinia  - C.2.1 - Łódź, Retkinia, Maratońska 49C, 58.17m2
C.2.11 2 3 59,59 m2 566 105 zł Maratońska 49 Nowa Retkinia  - C.2.11 - Łódź, Retkinia, Maratońska 49C, 59.59m2
C.2.12 2 1 29,37 m2 287 826 zł Maratońska 49 Nowa Retkinia  - C.2.12 - Łódź, Retkinia, Maratońska 49C, 29.37m2
C.2.13 2 1 29,48 m2 291 852 zł Maratońska 49 Nowa Retkinia  - C.2.13 - Łódź, Retkinia, Maratońska 49C, 29.48m2
C.2.4 2 3 59,30 m2 563 350 zł Maratońska 49 Nowa Retkinia  - C.2.4 - Łódź, Retkinia, Maratońska 49C, 59.3m2
C.2.5 2 3 73,12 m2 643 456 zł Maratońska 49 Nowa Retkinia  - C.2.5 - Łódź, Retkinia, Maratońska 49C, 73.12m2
C.3.12 3 1 29,45 m2 288 610 zł Maratońska 49 Nowa Retkinia  - C.3.12 - Łódź, Retkinia, Maratońska 49C, 29.45m2
C.3.13 3 1 29,37 m2 290 763 zł Maratońska 49 Nowa Retkinia  - C.3.13 - Łódź, Retkinia, Maratońska 49C, 29.37m2
C.3.5 3 3 73,20 m2 644 160 zł Maratońska 49 Nowa Retkinia  - C.3.5 - Łódź, Retkinia, Maratońska 49C, 73.2m2
C.3.6 3 2 57,97 m2 510 136 zł Maratońska 49 Nowa Retkinia  - C.3.6 - Łódź, Retkinia, Maratońska 49C, 57.97m2
C.3.9 3 1 29,52 m2 292 248 zł Maratońska 49 Nowa Retkinia  - C.3.9 - Łódź, Retkinia, Maratońska 49C, 29.52m2
C.4.11 4 3 60,42 m2 580 032 zł Maratońska 49 Nowa Retkinia  - C.4.11 - Łódź, Retkinia, Maratońska 49C, 60.42m2
C.4.12 4 1 30,01 m2 297 099 zł Maratońska 49 Nowa Retkinia  - C.4.12 - Łódź, Retkinia, Maratońska 49C, 30.01m2
C.4.13 4 1 30,06 m2 300 600 zł Maratońska 49 Nowa Retkinia  - C.4.13 - Łódź, Retkinia, Maratońska 49C, 30.06m2
C.4.6 4 2 59,04 m2 525 465 zł Maratońska 49 Nowa Retkinia  - C.4.6 - Łódź, Retkinia, Maratońska 49C, 59.04m2
C.4.8 4 1 29,54 m2 295 400 zł Maratońska 49 Nowa Retkinia  - C.4.8 - Łódź, Retkinia, Maratońska 49C, 29.54m2
C.4.9 4 1 30,14 m2 301 400 zł Maratońska 49 Nowa Retkinia  - C.4.9 - Łódź, Retkinia, Maratońska 49C, 30.14m2
D.0.1 3 56,70 m2 549 990 zł Maratońska 49 Nowa Retkinia  - D.0.1 - Łódź, Retkinia, Maratońska 49C, 56.7m2
D.0.4 3 61,66 m2 604 268 zł Maratońska 49 Nowa Retkinia  - D.0.4 - Łódź, Retkinia, Maratońska 49C, 61.66m2
D.1.4 1 1 29,48 m2 398 000 zł Maratońska 49 Nowa Retkinia  - D.1.4 - Łódź, Retkinia, Maratońska 49C, 29.48m2
D.1.5 1 3 64,88 m2 603 384 zł Maratońska 49 Nowa Retkinia  - D.1.5 - Łódź, Retkinia, Maratońska 49C, 64.88m2
D.1.6 1 3 62,51 m2 581 343 zł Maratońska 49 Nowa Retkinia  - D.1.6 - Łódź, Retkinia, Maratońska 49C, 62.51m2
D.1.7 1 1 29,36 m2 290 664 zł Maratońska 49 Nowa Retkinia  - D.1.7 - Łódź, Retkinia, Maratońska 49C, 29.36m2
D.1.8 1 1 28,69 m2 281 162 zł Maratońska 49 Nowa Retkinia  - D.1.8 - Łódź, Retkinia, Maratońska 49C, 28.69m2
D.2.3 2 1 28,92 m2 283 416 zł Maratońska 49 Nowa Retkinia  - D.2.3 - Łódź, Retkinia, Maratońska 49C, 28.92m2
D.2.4 2 1 29,48 m2 291 852 zł Maratońska 49 Nowa Retkinia  - D.2.4 - Łódź, Retkinia, Maratońska 49C, 29.48m2
D.2.5 2 3 65,05 m2 604 965 zł Maratońska 49 Nowa Retkinia  - D.2.5 - Łódź, Retkinia, Maratońska 49C, 65.05m2
D.2.6 2 3 62,52 m2 581 436 zł Maratońska 49 Nowa Retkinia  - D.2.6 - Łódź, Retkinia, Maratońska 49C, 62.52m2
D.2.8 2 1 28,69 m2 281 162 zł Maratońska 49 Nowa Retkinia  - D.2.8 - Łódź, Retkinia, Maratońska 49C, 28.69m2
D.3.3 3 1 28,92 m2 283 416 zł Maratońska 49 Nowa Retkinia  - D.3.3 - Łódź, Retkinia, Maratońska 49C, 28.92m2
D.3.5 3 3 65,02 m2 604 686 zł Maratońska 49 Nowa Retkinia  - D.3.5 - Łódź, Retkinia, Maratońska 49C, 65.02m2
D.3.6 3 3 62,44 m2 580 692 zł Maratońska 49 Nowa Retkinia  - D.3.6 - Łódź, Retkinia, Maratońska 49C, 62.44m2
D.3.8 3 1 28,69 m2 281 162 zł Maratońska 49 Nowa Retkinia  - D.3.8 - Łódź, Retkinia, Maratońska 49C, 28.69m2
D.4.3 4 1 29,67 m2 293 733 zł Maratońska 49 Nowa Retkinia  - D.4.3 - Łódź, Retkinia, Maratońska 49C, 29.67m2
D.4.4 4 1 30,15 m2 301 500 zł Maratońska 49 Nowa Retkinia  - D.4.4 - Łódź, Retkinia, Maratońska 49C, 30.15m2
D.4.5 4 3 65,91 m2 619 554 zł Maratońska 49 Nowa Retkinia  - D.4.5 - Łódź, Retkinia, Maratońska 49C, 65.91m2
D.4.6 4 3 63,43 m2 596 242 zł Maratońska 49 Nowa Retkinia  - D.4.6 - Łódź, Retkinia, Maratońska 49C, 63.43m2
D.4.7 4 1 30,05 m2 300 500 zł Maratońska 49 Nowa Retkinia  - D.4.7 - Łódź, Retkinia, Maratońska 49C, 30.05m2
D.4.8 4 1 29,46 m2 291 654 zł Maratońska 49 Nowa Retkinia  - D.4.8 - Łódź, Retkinia, Maratońska 49C, 29.46m2

Podobne nieruchomości