Sprawdź wszystkie oferty w tej inwestycji >>>

Szczegóły oferty M27 Data dodania: dzisiaj

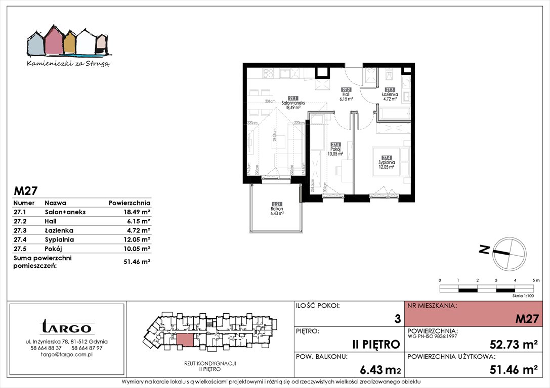
  • Kategoria Mieszkania na sprzedaż
  • Lokalizacja pomorskie, Rumia, Kosynierów 9
  • Powierzchnia całkowita51,46 m2
  • Cena

    517 173 zł

    Reklama ico Sprawdź ratę Sprawdź ratę RSSO 6,71%
    na dz. 24.11.25
    trade ico trade ico trade
  • Cena za m2 10 050 zł/m2
  • Liczba pokoi 3
  • Rok budowy 2027
  • Materiał cegła
  • Kanalizacjamiejska
  • Ogrzewaniemiejskie
Informacje dodatkowe:
wózkarnia, stojaki rowerowe, przyłącze internetowe, fotowoltaika, przyłącze telewizyjne, usługi w budynku
Okolica:
szkoła, park / las, przychodnia / szpital, centrum handlowe, sklep spożywczy, dworzec kolejowy, przedszkole, autobus, plac zabaw, apteka, niska zabudowa, żłobek

Lokalizacja

Rumia, Kosynierów 9

Opis oferty

Kamieniczki za Strugą — Twój spokojny azyl w sercu Rumi „Kamieniczki za Strugą” to kameralna, nowoczesna inwestycja mieszkaniowa położona przy ul. Kosynierów 9 w Rumi. Projekt stworzono z myślą o osobach, które pragną cieszyć się komfortem codziennego życia w otoczeniu zieleni, nie rezygnując przy tym z bliskości miejskich udogodnień. To idealne miejsce zarówno dla rodzin, jak i osób szukających spokojnej przystani lub bezpiecznej inwestycji na lata. Charakter inwestycji: Kameralna zabudowa – tylko 2 piętra Nowoczesna, elegancka architektura nawiązująca do klimatu nadmorskich kamieniczek Starannie zaprojektowane części wspólne i przestronne układy mieszkań Wysokość pomieszczeń: 2,7 m (parter i I piętro), do 3 m na II piętrze z nastrojowymi skosami Hala garażowa i komórki lokatorskie dostępne dla każdego mieszkania Mieszkania z ogródkami, balkonami lub tarasami Szeroki wybór metraży – od funkcjonalnych 2-pokojowych po przestronne 4-pokojowe apartamenty Lokalizacja: Rumia, ul. Kosynierów 9 Położenie inwestycji gwarantuje idealną równowagę między spokojem a wygodą. W najbliższym otoczeniu znajdują się sklepy, szkoły, przedszkola, punkty usługowe i przystanki komunikacji miejskiej. Zaledwie kilka minut dzieli mieszkańców od centrum Rumi, a doskonałe połączenie z Gdynią i całym Trójmiastem czyni tę lokalizację wyjątkowo atrakcyjną. Bliskość parków i terenów rekreacyjnych sprawia, że to miejsce sprzyja aktywnemu i rodzinnemu stylowi życia. Dlaczego warto wybrać Kamieniczki za Strugą: - Kameralna, przyjazna społeczność - Wysoka jakość wykonania i dbałość o każdy detal - Funkcjonalne i dobrze doświetlone wnętrza - Spokojna, zielona okolica - Doskonała komunikacja i rozwinięta infrastruktura - Inwestycja o rosnącej wartości – idealna również pod wynajem Kamieniczki za Strugą to wyjątkowe połączenie nowoczesnego stylu, komfortu i natury. To miejsce, w którym można naprawdę odpocząć – a jednocześnie mieć wszystko, co potrzebne, w zasięgu spaceru.
Numer oferty: M27

Statystyki ogłoszenia:

oko

Inne mieszkania dostępne w tej inwestycji

Filtruj oferty x Resetuj filtry
-
-
Rzut
Nr ref.
Piętro
Pokoje
Powierzchnia Pow.
Cena
L1 1 56,35 m2 667 748 zł Kamieniczki za Strugą - L1 - Rumia, Kosynierów 9, 56.35m2
L2 1 53,34 m2 573 405 zł Kamieniczki za Strugą - L2 - Rumia, Kosynierów 9, 53.34m2
L3 1 55,56 m2 597 270 zł Kamieniczki za Strugą - L3 - Rumia, Kosynierów 9, 55.56m2
M1 4 71,99 m2 676 706 zł Kamieniczki za Strugą - M1 - Rumia, Kosynierów 9, 71.99m2
M10 3 53,62 m2 502 956 zł Kamieniczki za Strugą - M10 - Rumia, Kosynierów 9, 53.62m2
M11 2 40,03 m2 382 687 zł Kamieniczki za Strugą - M11 - Rumia, Kosynierów 9, 40.03m2
M12 4 71,99 m2 691 104 zł Kamieniczki za Strugą - M12 - Rumia, Kosynierów 9, 71.99m2
M13 2 35,86 m2 355 731 zł Kamieniczki za Strugą - M13 - Rumia, Kosynierów 9, 35.86m2
M14 3 53,64 m2 519 772 zł Kamieniczki za Strugą - M14 - Rumia, Kosynierów 9, 53.64m2
M15 2 38,87 m2 384 036 zł Kamieniczki za Strugą - M15 - Rumia, Kosynierów 9, 38.87m2
M16 3 54,13 m2 523 978 zł Kamieniczki za Strugą - M16 - Rumia, Kosynierów 9, 54.13m2
M17 2 39,43 m2 389 568 zł Kamieniczki za Strugą - M17 - Rumia, Kosynierów 9, 39.43m2
M18 3 50,73 m2 492 081 zł Kamieniczki za Strugą - M18 - Rumia, Kosynierów 9, 50.73m2
M19 3 54,45 m2 535 788 zł Kamieniczki za Strugą - M19 - Rumia, Kosynierów 9, 54.45m2
M21 3 53,62 m2 519 578 zł Kamieniczki za Strugą - M21 - Rumia, Kosynierów 9, 53.62m2
M22 3 60,73 m2 579 972 zł Kamieniczki za Strugą - M22 - Rumia, Kosynierów 9, 60.73m2
M23 4 91,79 m2 854 565 zł Kamieniczki za Strugą - M23 - Rumia, Kosynierów 9, 91.79m2
M24 4 71,34 m2 670 596 zł Kamieniczki za Strugą - M24 - Rumia, Kosynierów 9, 71.34m2
M25 4 71,99 m2 714 141 zł Kamieniczki za Strugą - M25 - Rumia, Kosynierów 9, 71.99m2
M26 2 35,87 m2 380 222 zł Kamieniczki za Strugą - M26 - Rumia, Kosynierów 9, 35.87m2
M28 2 36,75 m2 385 875 zł Kamieniczki za Strugą - M28 - Rumia, Kosynierów 9, 36.75m2
M29 3 54,13 m2 546 713 zł Kamieniczki za Strugą - M29 - Rumia, Kosynierów 9, 54.13m2
M3 3 53,64 m2 508 507 zł Kamieniczki za Strugą - M3 - Rumia, Kosynierów 9, 53.64m2
M30 4 86,10 m2 813 645 zł Kamieniczki za Strugą - M30 - Rumia, Kosynierów 9, 86.1m2
M33 3 51,44 m2 516 972 zł Kamieniczki za Strugą - M33 - Rumia, Kosynierów 9, 51.44m2
M34 3 58,02 m2 579 040 zł Kamieniczki za Strugą - M34 - Rumia, Kosynierów 9, 58.02m2
M35 2 36,38 m2 378 352 zł Kamieniczki za Strugą - M35 - Rumia, Kosynierów 9, 36.38m2
M36 3 51,20 m2 514 560 zł Kamieniczki za Strugą - M36 - Rumia, Kosynierów 9, 51.2m2
M37 4 71,44 m2 701 541 zł Kamieniczki za Strugą - M37 - Rumia, Kosynierów 9, 71.44m2
M4 2 38,87 m2 377 039 zł Kamieniczki za Strugą - M4 - Rumia, Kosynierów 9, 38.87m2
M5 3 54,13 m2 513 152 zł Kamieniczki za Strugą - M5 - Rumia, Kosynierów 9, 54.13m2
M6 2 39,43 m2 381 288 zł Kamieniczki za Strugą - M6 - Rumia, Kosynierów 9, 39.43m2
M7 3 50,73 m2 481 428 zł Kamieniczki za Strugą - M7 - Rumia, Kosynierów 9, 50.73m2
M8 3 54,45 m2 533 066 zł Kamieniczki za Strugą - M8 - Rumia, Kosynierów 9, 54.45m2
M9 4 62,72 m2 608 384 zł Kamieniczki za Strugą - M9 - Rumia, Kosynierów 9, 62.72m2

Podobne nieruchomości