Nowoczesny lokal biurowy 74,69 m2 na Zabłociu w Krakowie Kraków - 74,69m2
POWIERZCHNIA
74,69 m2
PRZEZNACZENIE
biuro
PIĘTRO
-
Szczegóły oferty 13078/3762/OLW
- Kategoria Lokale użytkowe na wynajem
- Lokalizacja małopolskie, Kraków
- Powierzchnia całkowita74,69 m2
-
Cena
3 361 zł
- Cena za m2 45 zł/m2
- Rok budowy 1965
- Przeznaczenie biuro
- Informacje dodatkowe:
- klimatyzacja, ochrona, sieć komputerowa
Lokalizacja
Opis oferty
Budynek oferuje prawie 8000m2 atrakcyjnej i nowoczesnej powierzchni biurowej do wynajęcia. Metraż typowego piętra wynosi 1400m2. W budynku zastosowano wiele rozwiązań technicznych oraz udogodnień, aby w pełni sprostać wymaganiom najemców, np. wewnątrz znajduje się pomieszczenie, gdzie jest możliwość zaparkowania roweru. Obiekt znajduje się niedaleko od centrum miasta, gdzie łatwo i szybko można dojechać dzięki komunikacji miejskiej.
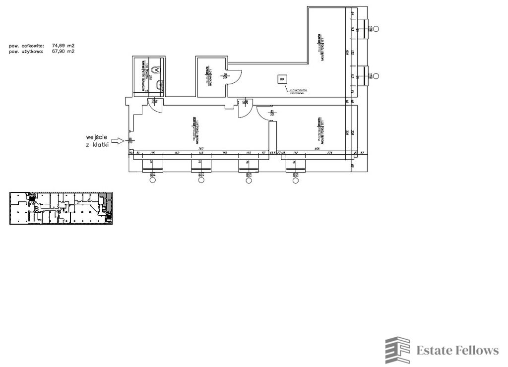
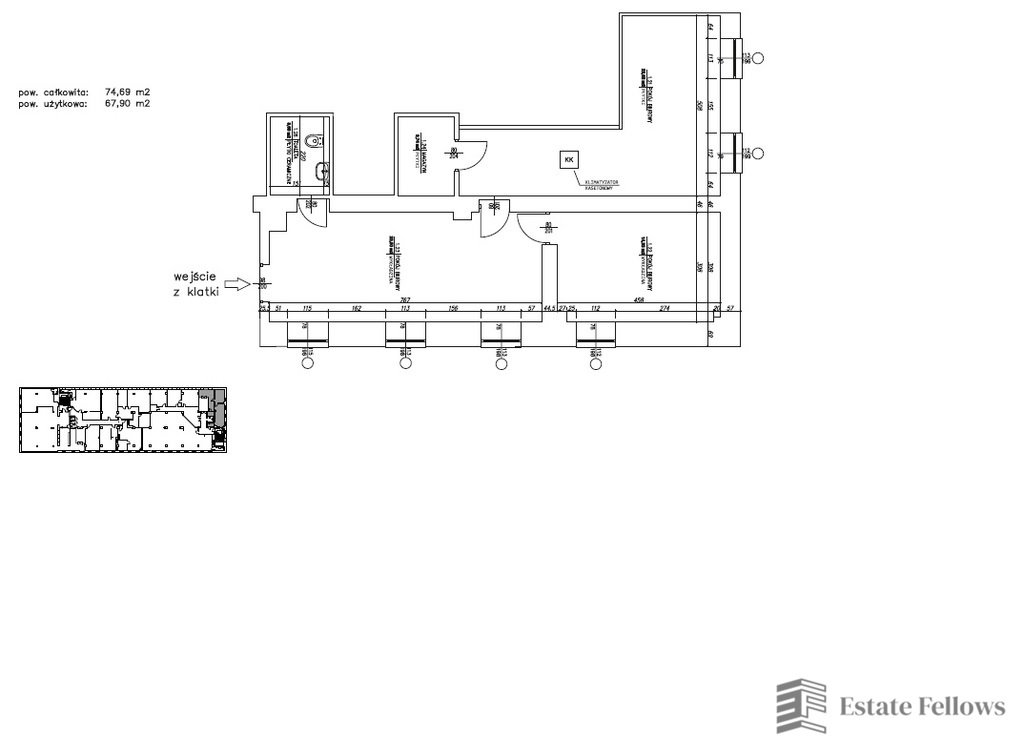
Lokal biurowy zlokalizowany na Zabłociu. Historyczny budynek przystosowany pod potrzeby biurowca.
Powierzchnia całkowita: 74,69 m2, powierzchnia użytkowa: 67,9 m2.
Znajduje się na 1 piętrze, składa się z 4 pomieszczeń, węzła sanitarnego.
Na podłogach płytki i wykładzina.
Cena 45pln/m2 czynsz + 14 pln/m2 Netto zaliczka na media + energia wg. licznika.
Administratorem Pani/Pana danych jest Estate Fellows Spółka z ograniczoną odpowiedzialnością sp. k. w Warszawie ul. Pankiewicza 3 (00-696), która przetwarza powyższe dane osobowe w celu udzielenie wszelkiej informacji na temat oferty, którą jest Pani/Pan zainteresowany. Więcej informacji na ten temat można uzyskać pod nr telefonu 22 3pokaż telefon.
Niniejsza publikacja nie jest ofertą w rozumieniu prawa handlowego. Podane ceny są kwotami netto.
Oferta wysłana z programu dla biur nieruchomości ASARI CRM (asaricrm.com)
Numer oferty: 13078/3762/OLW
Statystyki ogłoszenia:
Podobne nieruchomości