Nowoczesny lokal biurowy 42,78 m² w centrum Koszalina Koszalin, Zwycięstwa - 42,78m2
Oferta na wyłączność
1 497 zł 35 zł/m2POWIERZCHNIA
42,78 m2
PRZEZNACZENIE
biuro
PIĘTRO
3 / 4
Szczegóły oferty GDF21634
- Kategoria Lokale użytkowe na wynajem
- Lokalizacja zachodniopomorskie, Koszalin, Zwycięstwa
- Powierzchnia całkowita42,78 m2
-
Cena
1 497 zł
- Cena za m2 35 zł/m2
- Piętro 3
- Liczba pięter w budynku 4
- Rok budowy 1966
- Forma własności własność
- Przeznaczenie biuro
- Informacje dodatkowe:
- ochrona
Lokalizacja
Opis oferty
"Przemysłówka Office" to 30 lokali biurowych zlokalizowanych blisko centrum Koszalina.
Zapraszamy do zapoznania się z naszą ofertą sprzedaży lokali biurowych w wyjątkowej inwestycji "Przemysłówka Office". Budynek, który w 2021 roku przeszedł kapitalny remont, mieści się w samym sercu Koszalina przy ul. Zwycięstwa 115 i oferuje przestrzenie biurowe o zróżnicowanych metrażach od 14 m² do 150 m².
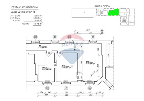
Lokal nr 16, położony jest na trzecim piętrze budynku i składa się z 3 pomieszczeń biurowych o łącznej powierzchni 42,78 m2.
Nowoczesna infrastruktura w dogodnej lokalizacji
Przemysłówka Office to pięciokondygnacyjny budynek o łącznej powierzchni użytkowej blisko 1 200 m², stworzony z myślą o komforcie i funkcjonalności. Budynek został wyposażony w Światłowód, który zapewnia szybkie łącze Internetowe. Dużym atutem jest łatwy dojazd zarówno samochodem, jak i komunikacją miejską (przystanki MZK mieszczą się po obu stronach ul. Zwycięstwa zaraz przy budynku).
Dostępnych jest 5 miejsc parkingowych w cenie 300 zł netto miesięcznie każde.
Przestrzenie gotowe do użytkowania
W naszej ofercie znajdują się zarówno lokale jedno-, jak i wielogabinetowe. Wszystkie biura zostały starannie wyremontowane, są nowocześnie zaaranżowane i w pełni wyposażone w odpowiednią infrastrukturę. W budynku dostępne są:
- Wspólne zaplecze socjalne na każdym piętrze,
- Szybki Internet światłowodowy,
- Ochrona oraz serwis sprzątający.
Koszalin dynamicznie rozwijający się ośrodek biznesowy, będący drugim największym miastem województwa zachodniopomorskiego, to ważne centrum gospodarcze, naukowe i kulturalne. Miasto posiada doskonałe połączenia komunikacyjne:
- Międzynarodową trasę E-28 (Berlin-Kaliningrad),
- Drogę ekspresową S11, łączącą północ z południem Polski,
- Drogę ekspresową S6, łączącą Szczecin z Trójmiastem.
Zainwestuj w przyszłość swojego biznesu
Jeśli szukasz idealnego miejsca na swoją działalność w dynamicznie rozwijającym się mieście, Przemysłówka Office to odpowiedź na Twoje potrzeby.
Skontaktuj się z nami już dziś!
Z przyjemnością odpowiemy na wszystkie pytania dotyczące wynajmu lokalu biurowego.
Agent prowadzący:
Tymoteusz Lesiak
tel.: 883pokaż telefon
e-mail: tymoteusz.skontaktuj się
Świadectwo charakterystyki energetycznej - zapotrzebowanie na energię:
EU - użytkową (kWh/m2*rok): 81.83; EK - końcową (kWh/m2*rok): 158.40; EP - nieodnawialną energię pierwotną (kWh/m2*rok): 237.30; EC02 - Wielkość emisji CO2 (t C02/m2*rok): 0.07; UOZE - Udział odnawialnych źródeł energii w zapotrzebowaniu na energię końcową [%]: 0.00; Treść niniejszego ogłoszenia nie stanowi oferty handlowej w rozumieniu Kodeksu Cywilnego. Treść ma charakter informacyjny i zalecamy ich osobistą weryfikację. Kontaktując się z biurem Klient wyraża zgodę na przetwarzanie danych osobowych zgodnie z art. 13 ust. 1 ogólnego rozporządzenia o ochronie danych osobowych z dnia 27 kwietnia 2016 r. (RODO). Administratorem Pani/Pana danych osobowych jest NaTropieNieruchomości.pl Sp. z o.o. z siedzibą w Koszalinie, ul. Zwycięstwa 94-98, 75-011 Koszalin. Przysługuje Pani/Panu prawo dostępu do treści swoich danych oraz prawo ich sprostowania, usunięcia, ograniczenia przetwarzania, prawo do przenoszenia danych, prawo wniesienia sprzeciwu, a jeżeli przetwarzanie odbywa się na podstawie zgody: prawo do cofnięcia zgody w dowolnym momencie bez wpływu na zgodność z prawem przetwarzania, którego dokonano na podstawie zgody przed jej cofnięciem. Wszelkie wnioski dotyczące wskazanych powyżej praw prosimy kierować na adres email: natropieskontaktuj się Oferta wysłana z programu dla biur nieruchomości ASARI CRM (asaricrm.com)
Numer oferty: GDF21634
Nr licencji zawodowej: PL1-P298400
Zapraszamy do zapoznania się z naszą ofertą sprzedaży lokali biurowych w wyjątkowej inwestycji "Przemysłówka Office". Budynek, który w 2021 roku przeszedł kapitalny remont, mieści się w samym sercu Koszalina przy ul. Zwycięstwa 115 i oferuje przestrzenie biurowe o zróżnicowanych metrażach od 14 m² do 150 m².
Lokal nr 16, położony jest na trzecim piętrze budynku i składa się z 3 pomieszczeń biurowych o łącznej powierzchni 42,78 m2.
Nowoczesna infrastruktura w dogodnej lokalizacji
Przemysłówka Office to pięciokondygnacyjny budynek o łącznej powierzchni użytkowej blisko 1 200 m², stworzony z myślą o komforcie i funkcjonalności. Budynek został wyposażony w Światłowód, który zapewnia szybkie łącze Internetowe. Dużym atutem jest łatwy dojazd zarówno samochodem, jak i komunikacją miejską (przystanki MZK mieszczą się po obu stronach ul. Zwycięstwa zaraz przy budynku).
Dostępnych jest 5 miejsc parkingowych w cenie 300 zł netto miesięcznie każde.
Przestrzenie gotowe do użytkowania
W naszej ofercie znajdują się zarówno lokale jedno-, jak i wielogabinetowe. Wszystkie biura zostały starannie wyremontowane, są nowocześnie zaaranżowane i w pełni wyposażone w odpowiednią infrastrukturę. W budynku dostępne są:
- Wspólne zaplecze socjalne na każdym piętrze,
- Szybki Internet światłowodowy,
- Ochrona oraz serwis sprzątający.
Koszalin dynamicznie rozwijający się ośrodek biznesowy, będący drugim największym miastem województwa zachodniopomorskiego, to ważne centrum gospodarcze, naukowe i kulturalne. Miasto posiada doskonałe połączenia komunikacyjne:
- Międzynarodową trasę E-28 (Berlin-Kaliningrad),
- Drogę ekspresową S11, łączącą północ z południem Polski,
- Drogę ekspresową S6, łączącą Szczecin z Trójmiastem.
Zainwestuj w przyszłość swojego biznesu
Jeśli szukasz idealnego miejsca na swoją działalność w dynamicznie rozwijającym się mieście, Przemysłówka Office to odpowiedź na Twoje potrzeby.
Skontaktuj się z nami już dziś!
Z przyjemnością odpowiemy na wszystkie pytania dotyczące wynajmu lokalu biurowego.
Agent prowadzący:
Tymoteusz Lesiak
tel.: 883pokaż telefon
e-mail: tymoteusz.skontaktuj się
Świadectwo charakterystyki energetycznej - zapotrzebowanie na energię:
EU - użytkową (kWh/m2*rok): 81.83; EK - końcową (kWh/m2*rok): 158.40; EP - nieodnawialną energię pierwotną (kWh/m2*rok): 237.30; EC02 - Wielkość emisji CO2 (t C02/m2*rok): 0.07; UOZE - Udział odnawialnych źródeł energii w zapotrzebowaniu na energię końcową [%]: 0.00; Treść niniejszego ogłoszenia nie stanowi oferty handlowej w rozumieniu Kodeksu Cywilnego. Treść ma charakter informacyjny i zalecamy ich osobistą weryfikację. Kontaktując się z biurem Klient wyraża zgodę na przetwarzanie danych osobowych zgodnie z art. 13 ust. 1 ogólnego rozporządzenia o ochronie danych osobowych z dnia 27 kwietnia 2016 r. (RODO). Administratorem Pani/Pana danych osobowych jest NaTropieNieruchomości.pl Sp. z o.o. z siedzibą w Koszalinie, ul. Zwycięstwa 94-98, 75-011 Koszalin. Przysługuje Pani/Panu prawo dostępu do treści swoich danych oraz prawo ich sprostowania, usunięcia, ograniczenia przetwarzania, prawo do przenoszenia danych, prawo wniesienia sprzeciwu, a jeżeli przetwarzanie odbywa się na podstawie zgody: prawo do cofnięcia zgody w dowolnym momencie bez wpływu na zgodność z prawem przetwarzania, którego dokonano na podstawie zgody przed jej cofnięciem. Wszelkie wnioski dotyczące wskazanych powyżej praw prosimy kierować na adres email: natropieskontaktuj się Oferta wysłana z programu dla biur nieruchomości ASARI CRM (asaricrm.com)
Numer oferty: GDF21634
Nr licencji zawodowej: PL1-P298400
Statystyki ogłoszenia:
Podobne nieruchomości