Mieszkanie trzypokojowe na sprzedaż Warszawa, Wola Młynów, Sokołowska - 63,0m2
1 200 000
zł
19 047,62 zł/m2
POWIERZCHNIA
63,00 m2
PIĘTRO
7 / 10
LICZBA POKOI
3
PARKING
miejsce parkingowe
Szczegóły oferty TB#244904 Data dodania: 14 dni temu
- Kategoria Mieszkania na sprzedaż
- Lokalizacja mazowieckie, Warszawa, Wola Młynów, Sokołowska
- Powierzchnia całkowita63 m2
-
Cena
1 200 000 zł
-
Czynsz administracyjny
1 000 zł
- Cena za m2 19 047,62 zł/m2
- Liczba pokoi 3
- Piętro 7
- Liczba pięter w budynku 10
- Typ budynkuapartamentowiec
- Rok budowy 2012
- Materiał inny
- Informacje dodatkowe:
- winda, miejsce parkingowe, balkon
Lokalizacja
Opis oferty
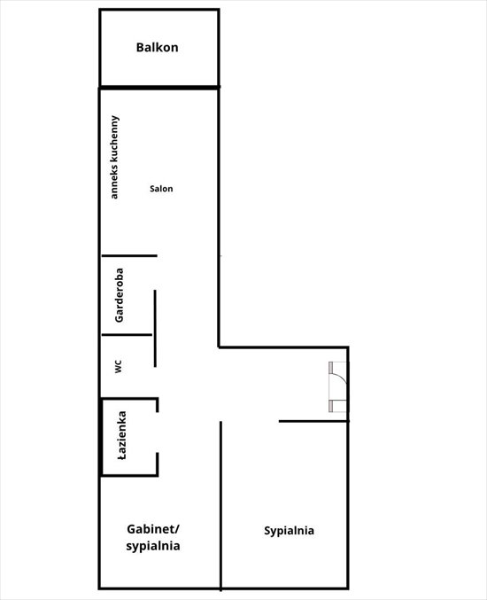
Do kupienia 3-pokojowe mieszkanie 63 m2, piętro 7/10 z windą w budynku z 2012 r., Wola Młynów.
Przestronne, słoneczne, gotowe do wprowadzenia się, idealne dla rodziny lub pary.
Mieszkanie to:
* salon 22 m2 z aneksem kuchennym i wyjściem na 2 balkony;
* aneks kuchenny: lodówka, płyta indukcyjna, kuchenka mikrofalowa, piekarnik, zmywarka;
* sypialnia 13 m2 z wyjściem na balkon;
* sypialnia/gabinet 13 m2;
* łazienka 4m2: wanna z funkcją prysznica, wc, umywalka;
* toaleta 2m2: wc;
* garderoba 2m2;
* przedpokój 5m2: szafa;
* 2 balkony.
Do mieszkania przynależy miejsce postojowe w garażu podziemnym, zakup obowiązkowy, dodatkowo płatny 45 000 zł oraz komórka lokatorska, zakup obowiązkowy, dodatkowo płatna 20 000 zł.
Czynsz administracyjny 1000 zł.
Wygodna lokalizacja, blisko pełna infrastruktura: liczne sklepy, szkoła, przedszkole, place zabaw oraz tereny rekreacyjne. Na terenie osiedla supermarket, sieciowe sklepy spożywcze, pizzeria, restauracja, apteka oraz inne punkty usługowe. Znakomity dostęp do komunikacji miejskiej, tuż obok przystanki autobusowe, jedynie kilka minut pieszo do metra Młynów (M2), szybki dojazd do innych dzielnic. Nieopodal popularne parki: Szymańskiego i Moczydło, liczne ścieżki rowerowe.
Mieszkanie to lokal mieszkalny stanowiący odrębną nieruchomość, jest założona księga wieczysta, grunty uregulowane (własność). Brak jakichkolwiek obciążeń w księdze wieczystej do transakcji, garaż w osobnej kw, własność małżeństwa, możliwa szybka sprzedaż. Mieszkanie jest dostępne za gotówkę lub na kredyt, który bezpłatnie pomożemy uzyskać.
Zapraszam do obejrzenia na miejscu, zadzwoń od razu i umów się na spotkanie! Oferta biura nieruchomości, więcej propozycji na naszej stronie topbrokers(kropka)pl
Numer oferty: TB#244904
Osoba odpowiedzialna zawodowo: Anastasia Adziareika
Przestronne, słoneczne, gotowe do wprowadzenia się, idealne dla rodziny lub pary.
Mieszkanie to:
* salon 22 m2 z aneksem kuchennym i wyjściem na 2 balkony;
* aneks kuchenny: lodówka, płyta indukcyjna, kuchenka mikrofalowa, piekarnik, zmywarka;
* sypialnia 13 m2 z wyjściem na balkon;
* sypialnia/gabinet 13 m2;
* łazienka 4m2: wanna z funkcją prysznica, wc, umywalka;
* toaleta 2m2: wc;
* garderoba 2m2;
* przedpokój 5m2: szafa;
* 2 balkony.
Do mieszkania przynależy miejsce postojowe w garażu podziemnym, zakup obowiązkowy, dodatkowo płatny 45 000 zł oraz komórka lokatorska, zakup obowiązkowy, dodatkowo płatna 20 000 zł.
Czynsz administracyjny 1000 zł.
Wygodna lokalizacja, blisko pełna infrastruktura: liczne sklepy, szkoła, przedszkole, place zabaw oraz tereny rekreacyjne. Na terenie osiedla supermarket, sieciowe sklepy spożywcze, pizzeria, restauracja, apteka oraz inne punkty usługowe. Znakomity dostęp do komunikacji miejskiej, tuż obok przystanki autobusowe, jedynie kilka minut pieszo do metra Młynów (M2), szybki dojazd do innych dzielnic. Nieopodal popularne parki: Szymańskiego i Moczydło, liczne ścieżki rowerowe.
Mieszkanie to lokal mieszkalny stanowiący odrębną nieruchomość, jest założona księga wieczysta, grunty uregulowane (własność). Brak jakichkolwiek obciążeń w księdze wieczystej do transakcji, garaż w osobnej kw, własność małżeństwa, możliwa szybka sprzedaż. Mieszkanie jest dostępne za gotówkę lub na kredyt, który bezpłatnie pomożemy uzyskać.
Zapraszam do obejrzenia na miejscu, zadzwoń od razu i umów się na spotkanie! Oferta biura nieruchomości, więcej propozycji na naszej stronie topbrokers(kropka)pl
Numer oferty: TB#244904
Osoba odpowiedzialna zawodowo: Anastasia Adziareika
Statystyki ogłoszenia:
Podobne nieruchomości