Mieszkanie trzypokojowe na sprzedaż Warszawa, Bielany Chomiczówka, Renesansowa - 56,26m2
899 000
zł
15 979,38 zł/m2
POWIERZCHNIA
56,26 m2
PIĘTRO
3 / 7
LICZBA POKOI
3
PARKING
miejsce parkingowe
Szczegóły oferty TB#893703 Data dodania: 6 dni temu
- Kategoria Mieszkania na sprzedaż
- Lokalizacja mazowieckie, Warszawa, Bielany Chomiczówka, Renesansowa
- Powierzchnia całkowita56,26 m2
-
Cena
899 000 zł
-
Czynsz administracyjny
500 zł
- Cena za m2 15 979,38 zł/m2
- Liczba pokoi 3
- Piętro 3
- Liczba pięter w budynku 7
- Typ budynkuapartamentowiec
- Rok budowy 2024
- Materiał inny
- Informacje dodatkowe:
- winda, miejsce parkingowe, balkon
Lokalizacja
Opis oferty
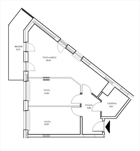
Na sprzedaż 3-pokojowe mieszkanie 56,26m2, piętro 3/7 z windą, w budynku z 2024r., Bielany Chomiczówka.
Mieszkanie w stanie deweloperskim, idealne dla pary, niewielkiej rodziny lub inwestycyjnie pod wynajem. W tym samym budynku dostępne również mieszkanie 3-pokojowe 59,08 m2 na piętrze 4 (rzut dodaję).
Mieszkanie to:
* pokój 21,53 m2 z aneksem kuchennym i wyjściem na balkon;
* pokój 11,60 m2;
* pokój 12,10 m2;
* łazienka 4,57 m2;
* przedpokój 6,46 m2;
* balkon 8,73 m2.
Dwa miejsca postojowe na platformie w garażu w cenie sprzedaży. Komórka lokatorska na półpiętrze obok mieszkania, dodatkowo płatna 7.000zł.
Ekspozycja okien na północny-zachód. Czynsz administracyjny 700 zł.
Nowoczesny, kameralny budynek, tylko 12 mieszkań.
Wygodna lokalizacja, obok przystanki autobusowe i tramwajowe, do metra Wawrzyszew (M1) 5 min autobusem, sprawne połączenia z centrum Warszawy. W najbliższej okolicy znajdują się liczne sklepy, apteka, przedszkole, szkoła, przychodnie lekarskie, sklepy, restauracje.
Mieszkanie zostanie wydzielone jako lokal stanowiący odrębną nieruchomość, zostanie założona księga wieczysta, grunty uregulowane (własność). Kupujący nie płaci PCC. Mieszkanie jest dostępne za gotówkę lub na kredyt, który bezpłatnie pomożemy uzyskać.
Zapraszam na bezpłatną i bezpieczną prezentację, zadzwoń od razu i umów się na spotkanie. Oferta biura nieruchomości, więcej propozycji na naszej stronie topbrokers(kropka)pl
Numer oferty: TB#893703
Osoba odpowiedzialna zawodowo: Nadiia Kulinich
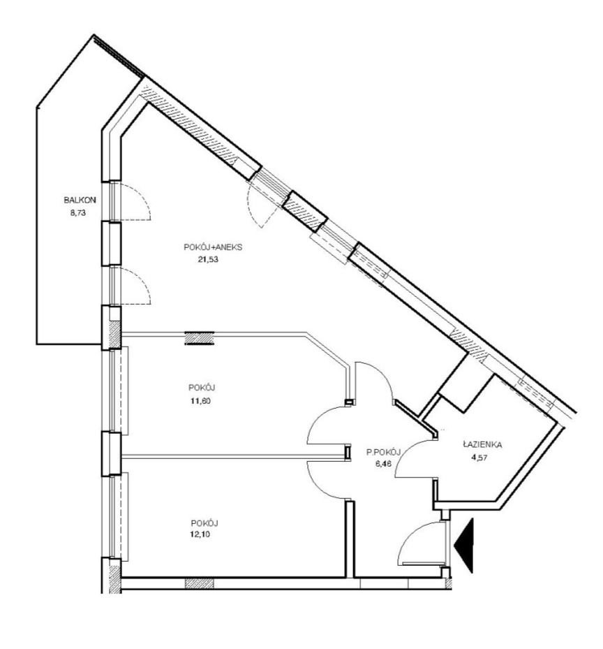
Mieszkanie w stanie deweloperskim, idealne dla pary, niewielkiej rodziny lub inwestycyjnie pod wynajem. W tym samym budynku dostępne również mieszkanie 3-pokojowe 59,08 m2 na piętrze 4 (rzut dodaję).
Mieszkanie to:
* pokój 21,53 m2 z aneksem kuchennym i wyjściem na balkon;
* pokój 11,60 m2;
* pokój 12,10 m2;
* łazienka 4,57 m2;
* przedpokój 6,46 m2;
* balkon 8,73 m2.
Dwa miejsca postojowe na platformie w garażu w cenie sprzedaży. Komórka lokatorska na półpiętrze obok mieszkania, dodatkowo płatna 7.000zł.
Ekspozycja okien na północny-zachód. Czynsz administracyjny 700 zł.
Nowoczesny, kameralny budynek, tylko 12 mieszkań.
Wygodna lokalizacja, obok przystanki autobusowe i tramwajowe, do metra Wawrzyszew (M1) 5 min autobusem, sprawne połączenia z centrum Warszawy. W najbliższej okolicy znajdują się liczne sklepy, apteka, przedszkole, szkoła, przychodnie lekarskie, sklepy, restauracje.
Mieszkanie zostanie wydzielone jako lokal stanowiący odrębną nieruchomość, zostanie założona księga wieczysta, grunty uregulowane (własność). Kupujący nie płaci PCC. Mieszkanie jest dostępne za gotówkę lub na kredyt, który bezpłatnie pomożemy uzyskać.
Zapraszam na bezpłatną i bezpieczną prezentację, zadzwoń od razu i umów się na spotkanie. Oferta biura nieruchomości, więcej propozycji na naszej stronie topbrokers(kropka)pl
Numer oferty: TB#893703
Osoba odpowiedzialna zawodowo: Nadiia Kulinich
Statystyki ogłoszenia:
Podobne nieruchomości