ico powierzchnia

POWIERZCHNIA

58,24 m2

ico pietro

PIĘTRO

2 / 2

ico liczba pokoi

LICZBA POKOI

3

ico parking

PARKING

-

Szczegóły oferty 43368

  • Kategoria Mieszkania na sprzedaż
  • Lokalizacja dolnośląskie, Szklarska Poręba, Szklana
  • Powierzchnia całkowita58,24 m2
  • Cena

    669 760 zł

    Reklama ico Sprawdź ratę Sprawdź ratę RSSO 6,11% na dz. 16.03.26 trade ico trade ico trade
  • Cena za m2 11 500 zł/m2
  • Liczba pokoi 3
  • Piętro 2
  • Liczba pięter w budynku 2
  • Dostępne od8.12.2025r.
  • Typ budynkuapartamentowiec
  • Rok budowy 2025
  • Forma własności własność
  • Materiał silikat
  • Kuchniaaneks
Informacje dodatkowe:
winda, balkon, piwnica, internet

Lokalizacja

Szklarska Poręba, Szklana

Opis oferty

Opiekun Oferty:

Patryk Ciepielewski

Tel: +48 6pokaż telefon

Pośrednik Obrotu Nieruchomościami

Nr Licencji PFRN 29563

Apartamenty z widokiem na Izery i Karkonosze idealne na własny wypoczynek oraz inwestycję.

Nowa inwestycja w jednej z najbardziej malowniczych części Szklarskiej Poręby Biała Dolina, z zapierającymi dech widokami na Karkonosze, Góry Izerskie i trasę narciarską na Szrenicy. Doskonała propozycja dla osób szukających spokojnego miejsca blisko natury oraz dla inwestorów zainteresowanych wynajmem krótkoterminowym.

Goście wszystkich apartamentów mają możliwość korzystania ze strefy SPA, oferującej sauny, jacuzzi i strefy relaksu, gwarantując pełen komfort i odprężenie.

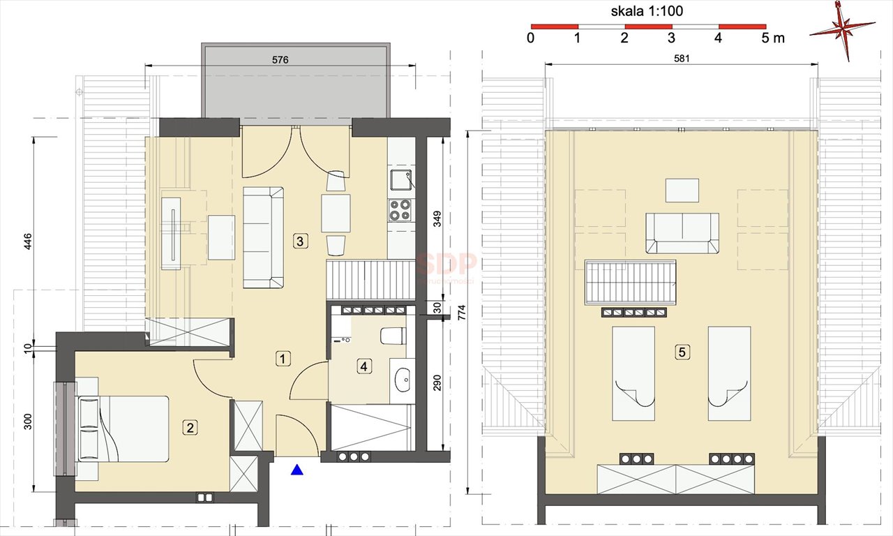
Apartament, którego dotyczy ogłoszenie, znajduje się na 2. piętrze (ostatnim) i ma powierzchnię 40,24 m + antersola 18 m. Dzięki położeniu na najwyższej kondygnacji oferuje najlepszą ekspozycję widokową i maksymalne doświetlenie wnętrza.

Zestawienie powierzchni:

- Przedpokój: 4,37 m

- Salon z aneksem kuchennym: 20,29 m

- Łazienka: 5,22 m

- Balkon: 5,87 m

- Sypialnia: 10 36 m

- Antersola: 18,00 m

Lokalizacja i otoczenie:

Bezpośrednie sąsiedztwo tras pieszych, biegowych i rowerowych, kolej Izerska w pobliżu szybkie połączenie z Jakuszycami, piękne lasy Gór Izerskich i bliskość natury dosłownie na wyciągnięcie ręki blisko centrum Szklarskiej Poręby, a jednocześnie cisza i przestrzeń w sąsiedztwie kort tenisowy i liczne atrakcje turystyczne.

Widok z apartamentów obejmuje m.in.: Szrenicę, Halę Szrenicką, trasy narciarskie Śnieżynka i Lolobrygida.

Inwestycja i budynki:

- Kameralny kompleks składa się z trzech budynków, w których oferowane są apartamenty o powierzchni od 30 do 58 m. Możliwość łączenia lokali w większe układy.

Budynki zaprojektowano w nowoczesnym stylu, z dużymi przeszkleniami eksponującymi widok. Zastosowano:

- ogrzewanie podłogowe

- wysokie parametry termoizolacji (XPS, EPS, wełna min. 20 cm)

- system smart home

- sterowanie ogrzewaniem przez WiFi

- wentylacja grawitacyjna

- winda w budynku

- nowoczesna kotłownia gazowa

Każdy apartament jest opomiarowany wg realnego zużycia (ogrzewanie, woda, prąd).

Udogodnienia dla mieszkańców:

- narciarnia z rowerownią

- latem również wózkownia, bawialnia dla dzieci (ping-pong, piłkarzyki, strefa wypoczynkowa)

- zagospodarowane tereny zewnętrzne zieleń, chodniki, strefa rekreacyjna

- możliwość zakupu miejsca parkingowego oraz komórki lokatorskiej

Standard i stan prawny:

- pełna własność bez konieczności podpisywania umów operatorskich

- apartamenty oferowane w stanie deweloperskim

- opcja wykończenia pod klucz przez lokalny zespół architektów i wykonawców

- zarządca administracyjny, czynsz ok. 17 zł/m

Cena apartamentu: 669 760 zł netto + 23% VAT

Ceny dodatkowe (netto):

- komórka lokatorska: 20 000 zł

- miejsce postojowe zewnętrzne: 30 000 zł

- miejsce postojowe zadaszone: 40 000 zł

Rekomendacja Eksperta SDP Nieruchomości:

- spektakularne widoki

- bliskość natury i tras sportowych bez użycia samochodu

- nowoczesna technologia, komfort i oszczędność w eksploatacji

- opcja zakupu na własny wypoczynek lub w celach inwestycyjnych

- możliwy wynajem krótkoterminowy bez narzuconych umów

Niedostateczne środki? To nie problem: Pomagamy w uzyskaniu finansowania na tę i inne nieruchomości.

Zadzwoń i zapytaj o szczegóły.

Opiekun Oferty:

Patryk Ciepielewski

Tel: +48 6pokaż telefon

Pośrednik Obrotu Nieruchomościami

Nr Licencji PFRN 29563


Numer oferty: 43368
Nr licencji zawodowej: 6592

Statystyki ogłoszenia:

oko

Podobne nieruchomości