ico powierzchnia

POWIERZCHNIA

58,80 m2

ico pietro

PIĘTRO

1 / 2

ico liczba pokoi

LICZBA POKOI

3

ico parking

PARKING

-

Szczegóły oferty 63491/MS/MAX Data dodania: 12 dni temu

  • Kategoria Mieszkania na sprzedaż
  • Lokalizacja mazowieckie, Marki, ul. Nauczycielska
  • Powierzchnia całkowita58,80 m2
  • Cena

    640 920 zł

    Reklama ico Sprawdź ratę Sprawdź ratę RSSO 6,71%
    na dz. 24.11.25
    trade ico trade ico trade
  • Czynsz administracyjny

    470 zł

  • Cena za m2 10 900 zł/m2
  • Liczba pokoi 3
  • Piętro 1
  • Liczba pięter w budynku 2
  • Typ budynkuinny
  • Rok budowy 2025
  • Materiał inny
  • KuchniaAneks

Lokalizacja

Marki, ul. Nauczycielska

Opis oferty

Nowe, 3-pokojowe mieszkanie 58,8 mkw. z tarasem.
Kameralne osiedle na granicy Warszawy i Marek.
Szukasz komfortowego mieszkania w zielonej okolicy, a jednocześnie z szybkim dojazdem do Warszawy? Ta oferta spełnia wszystkie wymagania nowoczesnego mieszkańca: funkcjonalny układ, przestrzeń, kameralne otoczenie i nowoczesną architekturę.
0% podatku PCC
0% prowizji
Opis mieszkania:
Powierzchnia: 58,8 m²
Liczba pokoi: 3
Taras: 8,89 m²
Piętro: 1
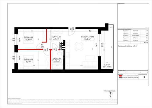
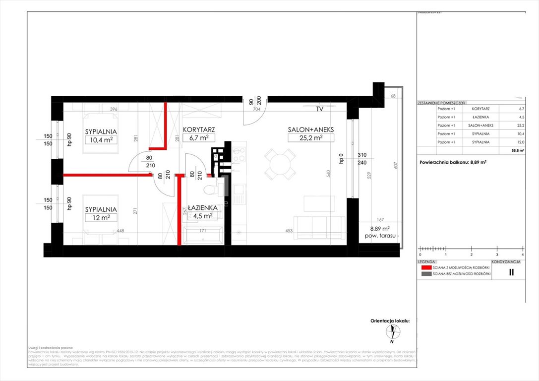
Rozkład pomieszczeń:
Salon z aneksem kuchennym – 25,2 mkw.
Sypialnia 1 – 12 mkw.
Sypialnia 2 – 10,4 mkw.
Łazienka – 4,5 mkw.
Korytarz – 6,7 mkw.

Taras – 8,89 mkw. (idealny na strefę relaksu lub rodzinne śniadania)

Atuty inwestycji:
✅ Kameralne osiedle – tylko 5 niskich budynków, po 8 mieszkań w każdym

✅ Funkcjonalne układy mieszkań – idealne dla singli, par i rodzin

✅ Nowoczesna architektura, wysoka jakość wykończenia

✅ Mieszkania z balkonami lub ogródkami

✅ Miejsce parkingowe w garażu dwustanowiskowym lub zewnętrzne (zakup obowiązkowy)

✅ Teren ogrodzony, częściowo zielony i przyjazny rodzinom


Budynek:
Inwestycja składa się z 5 małych bloków, w każdym po 8 mieszkań, co tworzy kameralny charakter osiedla. Budynki będą realizowane etapowo.

Termin oddania: I kwartał 2026 r.
Kupując teraz, masz czas na spokojne zaplanowanie przeprowadzki i urządzenie mieszkania zgodnie z własnymi potrzebami.


Lokalizacja:

Lokalizacja: Marecka część aglomeracji – szybki dojazd do Warszawy

Szybki dostęp do trasy S8.

W pobliżu:
Szkoły, przedszkola, żłobki
Lokalne sklepy i większe centra handlowe
Tereny rekreacyjne, parki, ścieżki spacerowe i rowerowe

📞 Zadzwoń i poznaj szczegóły oferty!
To świetna okazja, by zarezerwować nowe mieszkanie w kameralnej inwestycji blisko Warszawy.

📞Umów prezentację: jestem dostępna również w soboty.English description:
New, 3-bedroom apartment of 58.8 sqm with a terrace.
Cameral estate on the border of Warsaw and Marki

Are you looking for a comfortable apartment in a green area, yet with quick access to Warsaw? This offer meets all the requirements of a modern resident: functional layout, space, intimate surroundings and modern architecture.
Description of the apartment:
Space: 58.8 sqm
Number of rooms: 3
Parcel: 8.89 sqm
Floor: 1
Schedule of rooms:
Living room with kitchenette - 25.2 sqm.
Bedroom 1 - 12 sq.m.
Bedroom 2 - 10.4 sq.m.
Bathroom - 4.5 sq.m.
Corridor - 6.7 sq.m.

Parcel - 8.89 sq.m. (ideal for a relaxation area or family breakfasts)

Attributes of the investment:
✅ Intimate estate - only 5 low-rise buildings, 8 apartments in each

✅ Functional apartment layouts - ideal for singles, couples and families

✅ Modern architecture, high quality finishes

✅ Apartments with balconies or gardens

✅ Parking space in two-car garage or outside (compulsory purchase)

✅ Fenced, partially green and family-friendly area
.

Building:
The development consists of 5 small blocks, each with 8 apartments, which creates an intimate character of the estate. The buildings will be implemented in stages.

Delivery date: Q3 2025.
Buying now, you have time to plan your move in peace and furnish the apartment according to your needs.


Location:

Location:
Mare part of agglomeration - fast access to Warsaw

Fast access to S8 route.

In the vicinity:
Schools, kindergartens, nurseries
Local stores and larger shopping centers
Recreational areas, parks, walking and bicycle paths

📞 Call and find out the details of the offer!
This is a great opportunity to reserve a new apartment in an intimate development close to Warsaw.


📞Umów prezentację: jestem dostępna również w soboty.

Podstawowe
Cena za mkw. :  10 900,00 PLN
Stan lokalu : Deweloperski
Czynsz administracyjny :  470 PLN

Pomieszczenia
Typ mieszkania : Mieszkanie
Salon : 25 mkw.
Kuchnia : Aneks
Liczba łazienek : 1
Garderoba : Nie

Powierzchnia dodatkowa
Liczba balkonów : 1
Balkon : Balkon Klasyczny,
Piwnica : Nie
Komórka : Nie
Ogród : Nie

Media i wyposażenie
Ogrzewanie : CO miejskie,
Ciepła woda : Wodociąg miejski,
Gaz : Nie

Miejsca parkingowe
Parking naziemny : 1

Budynek
Rok budowy : 2025
Stan budynku : Idealny
Materiał : Mieszany
Liczba pięter : 2
Winda : Nie
Udog. dla niepełnosprawnych : Nie


Więcej podobnych ofert nieruchomości na maxon.pl
Link do oferty: http://mieszkania.maxon.pl/oferta/mieszkanie-sprzedaz-wolominski-marki-63491-MS-MAX
Nasze usługi świadczymy w oparciu o umowę pośrednictwa, która gwarantuje Państwu bezpieczeństwo transakcji oraz pełną opiekę naszego doradcy przez cały okres trwania współpracy. Za wykonaną usługę pobieramy wynagrodzenie zgodnie z warunkami uzgodnionymi w zawartej umowie (za wyjątkiem umów zawartych w programie 0%).
Prezentowane oferty nie stanowią oferty w rozumieniu Kodeksu Cywilnego. Staramy się, aby informacje dotyczące oferowanych obiektów były możliwie dokładne, kompletne i aktualne. Ze względu na okoliczności, iż informacje te pochodzą od osób trzecich i część z nich nie zawsze daje się zweryfikować, MAXON Nieruchomości Sp. z o.o. nie ponosi odpowiedzialności za ich dokładność, kompletność i aktualność.


Numer oferty: 63491/MS/MAX
Osoba odpowiedzialna zawodowo: Monika Wojtaszek
Nr licencji zawodowej: 1

Statystyki ogłoszenia:

oko

Podobne nieruchomości