Przestronne 6-pokojowe mieszkanie do remontu z dużym balkonem Lublin, Czuby Północne, Różana - 73,8m2
720 000
zł
9 756,10 zł/m2
POWIERZCHNIA
73,80 m2
PIĘTRO
2 / 2
LICZBA POKOI
6
PARKING
miejsce parkingowe
Szczegóły oferty 786/13924/OMS
- Kategoria Mieszkania na sprzedaż
- Lokalizacja lubelskie, Lublin, Czuby Północne, Różana
- Powierzchnia całkowita73,80 m2
-
Cena
720 000 zł
-
Czynsz administracyjny
1 000 zł
- Cena za m2 9 756,10 zł/m2
- Liczba pokoi 6
- Piętro 2
- Liczba pięter w budynku 2
- Typ budynkublok
- Rok budowy 1996
- Forma własności własność
- Materiał cegła
- Kuchniaz oknem
- Informacje dodatkowe:
- winda, ogrzewanie miejskie, balkon, piwnica, miejsce parkingowe
- Okolica:
- szkoła, przedszkole, park
Lokalizacja
Opis oferty
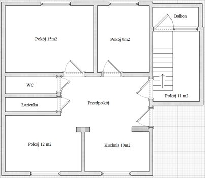
Mieszkanie, Lublin, Czechów, ul. Różana, 73,8m2/ 120 m2, 6 pokoi
Opis mieszkania:
- piętro: 2/2
- powierzchnia mieszkania: 73,8 m2 , po podłodze ok 120 m2
- pokój 11 m2
- pokój 9 m2
- pokój 15 m2
- pokój 12 m2
- poddasze 34 m3
- kuchnia 10 m2
- łazienka
- WC
- przedpokój
- ogrzewanie miejskie
- ciepła woda z sieci miejskiej
- kuchnia widna
- duży balkon
- duża piwnica 12 m2
- odrębna własność z księgą wieczystą
Standard wykończenia:
- mieszkanie do remontu
- na podłogach parkiet do cyklinowania
Okna:
- PCV
- wychodzące na północ i południe
Media:
- prąd
- gaz
- ciepła woda z sieci miejskiej
- ogrzewanie miejskie
- czynsz ok 1000 zł
Budynek:
- blok
- 1996
- blok przechodzi termomodernizację
Otoczenie:
- rewelacyjna lokalizacja zarówno do mieszkania jak i pod wynajem
- spokojne sąsiedztwo
- miejsce zapewnia pełną infrastrukturę: sklepy, przedszkola, szkoły, apteki oraz wszystkie inne niezbędne usługi, MPK
Lokalizacja:
- Czechów
- ul. Różana
Najważniejsze atuty mieszkania:
- mieszkanie przestronne
- pozwalające na dostosowanie go do własnych potrzeb, podczas wykonywania i tak koniecznego remontu
- doskonała lokalizacja - z bezpośrednim połączeniem komunikacją miejską ze wszystkimi częściami Lublin
Mieszkanie usytuowane w spokojnej okolicy w oddali od ruchu ulicznego, wokół dużo zieleni, plac zabaw, lokal bardzo przestronny i miło oświetlony. Rewelacyjna lokalizacja zarówno do mieszkania jak i pod wynajem.
Wszystkich zainteresowanych zapraszam do oglądania mieszkania, a w razie pytań proszę o kontakt telefoniczny lub mailowy.
Emil Dąbrowski
tel: 535 pokaż telefon
e-mail: emil.dabskontaktuj się Oferta wysłana z programu dla biur nieruchomości ASARI CRM (asaricrm.com)
Numer oferty: 786/13924/OMS
Opis mieszkania:
- piętro: 2/2
- powierzchnia mieszkania: 73,8 m2 , po podłodze ok 120 m2
- pokój 11 m2
- pokój 9 m2
- pokój 15 m2
- pokój 12 m2
- poddasze 34 m3
- kuchnia 10 m2
- łazienka
- WC
- przedpokój
- ogrzewanie miejskie
- ciepła woda z sieci miejskiej
- kuchnia widna
- duży balkon
- duża piwnica 12 m2
- odrębna własność z księgą wieczystą
Standard wykończenia:
- mieszkanie do remontu
- na podłogach parkiet do cyklinowania
Okna:
- PCV
- wychodzące na północ i południe
Media:
- prąd
- gaz
- ciepła woda z sieci miejskiej
- ogrzewanie miejskie
- czynsz ok 1000 zł
Budynek:
- blok
- 1996
- blok przechodzi termomodernizację
Otoczenie:
- rewelacyjna lokalizacja zarówno do mieszkania jak i pod wynajem
- spokojne sąsiedztwo
- miejsce zapewnia pełną infrastrukturę: sklepy, przedszkola, szkoły, apteki oraz wszystkie inne niezbędne usługi, MPK
Lokalizacja:
- Czechów
- ul. Różana
Najważniejsze atuty mieszkania:
- mieszkanie przestronne
- pozwalające na dostosowanie go do własnych potrzeb, podczas wykonywania i tak koniecznego remontu
- doskonała lokalizacja - z bezpośrednim połączeniem komunikacją miejską ze wszystkimi częściami Lublin
Mieszkanie usytuowane w spokojnej okolicy w oddali od ruchu ulicznego, wokół dużo zieleni, plac zabaw, lokal bardzo przestronny i miło oświetlony. Rewelacyjna lokalizacja zarówno do mieszkania jak i pod wynajem.
Wszystkich zainteresowanych zapraszam do oglądania mieszkania, a w razie pytań proszę o kontakt telefoniczny lub mailowy.
Emil Dąbrowski
tel: 535 pokaż telefon
e-mail: emil.dabskontaktuj się Oferta wysłana z programu dla biur nieruchomości ASARI CRM (asaricrm.com)
Numer oferty: 786/13924/OMS
Statystyki ogłoszenia:
Podobne nieruchomości