ico powierzchnia

POWIERZCHNIA

47,70 m2

ico pietro

PIĘTRO

2 / 8

ico liczba pokoi

LICZBA POKOI

2

ico parking

PARKING

-

Szczegóły oferty 20406/3265/OMS

  • Kategoria Mieszkania na sprzedaż
  • Lokalizacja dolnośląskie, Wrocław, Fabryczna
  • Powierzchnia całkowita47,70 m2
  • Cena

    520 000 zł

    Reklama ico Sprawdź ratę Sprawdź ratę RSSO 6,71%
    na dz. 24.11.25
    trade ico trade ico trade
  • Czynsz administracyjny

    630 zł

  • Cena za m2 10 901,47 zł/m2
  • Liczba pokoi 2
  • Piętro 2
  • Liczba pięter w budynku 8
  • Typ budynkuinny
  • Rok budowy 1985
  • Forma własności spółdzielcze własnościowe
  • Materiał wielka płyta
  • Kuchniaz oknem
Informacje dodatkowe:
winda, ogrzewanie miejskie, balkon, piwnica

Lokalizacja

Wrocław, Fabryczna

Opis oferty

Na sprzedaż funkcjonalne, komfortowe w pełni rozkładowe 2-pokojowe mieszkanie z loggią, położone na Gądowie Małym, przy ul. Drzewieckiego (w pobliżu CH Astra). To idealna propozycja dla osób ceniących wygodę, pełną infrastrukturę oraz doskonałą komunikację – a dodatkowo okolica pełna jest zieleni.

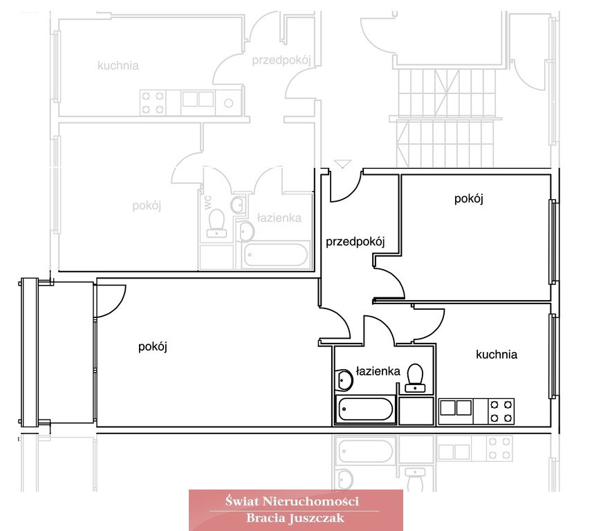
UKŁAD I METRAŻ
Mieszkanie charakteryzuje się bardzo funkcjonalnym układem i przestronnymi pomieszczeniami. Wnętrze oferuje liczne miejsca na szafy i zabudowy. Po wejściu wita nas przedpokój (ok. 5 m²) z miejscem na dużą szafę, sypialnia (ok. 10 m²) o dobrej proporcji jest przestronna i ustawna, duża jasna kuchnia (ok. 8 m²) z miejscem na stół. Łazienka (ok 4 m²) połączona jest z toaletą, lekko schowaną, mieści wannę pralkę i umywalkę. Największym pomieszczeniem jest salon (ok. 19 m²) z wyjściem na obszerną loggię, wyposażoną w donice wbudowane w bryłę budynku. Loggia (ok. 3 m²) skierowana jest w stronę wewnętrznego podwórka, co zapewnia ciszę, prywatność i widok na wysoką zieleń. Dzięki dwustronnemu układowi lokal jest świetnie przewietrzany, co daje komfort nawet w upalne dni. Do lokalu przynależy także piwnica.

BUDYNEK I OSIEDLE
Mieszkanie znajduje się na 2. piętrze w wysokim bloku z windą. Osiedle zostało zaprojektowane na podstawie wygranego konkursu przez architektów Chachaja i Malinowskiego, co sprawia, ze zwrócono uwagę na funkcjonalne rozwiązania, takie jak m.in. lokalizowanie piwnic, obszernej rowerowni oraz garaży na poziomie 0, doświetlone klatki schodowe. Układ urbanistyczny wyróżnia się sporymi przestrzeniami pomiędzy budynkami oraz wyraźnym strefowaniem na przestrzenie publiczne i bardziej prywatne w dziedzińcach oraz dużą ilością zieleni. Mieszkania rozpoczynają się dopiero od 1. piętra, co zwiększa prywatność i bezpieczeństwo mieszkańców. Klatka schodowa jest jasna, czysta i zadbana, a winda wygodnie obsługuje wszystkie kondygnacje.

LOKALIZACJA
Gądów Mały to jedna z najlepiej skomunikowanych części Fabrycznej – w pobliżu przystanki tramwajowe (ul. Lotnicza / Drzewieckiego), a także szybki dojazd zarówno do centrum, jak i do obwodnicy. Na osiedlu znajdują się wszystkie niezbędne punkty: sklepy, szkoły, przychodnie i usługi. Okolica oferuje również wiele terenów rekreacyjnych – m.in. Park Zachodni. W zasięgu spaceru są również Hala Tęcza, Hala Orbita, Stadion, Biedronka czy CH Astra.
Dla mieszkańców dostępny jest wygodny parking osiedlowy za szlabanem, co eliminuje problem z parkowaniem.

Zapraszam na prezentację.

Kontakt do osoby prowadzącej ofertę:
Justyna Juszczak tel.: 693pokaż telefon
e-mail:

Uwaga!
Prezentowane w serwisie oferty nie stanowią oferty handlowej w porozumieniu art. 66 Kodeksu Cywilnego i mogą być nieaktualne.

NOTA PRAWNA:
Opis oferty zawarty na stronie internetowej sporządzany jest na podstawie oględzin nieruchomości oraz informacji uzyskanych od właściciela, może podlegać aktualizacji i nie stanowi oferty określonej w art. 66 i następnych K.C

Świadectwo charakterystyki energetycznej zostanie przedłożone do zawarcia umowy, zgodnie z wymogami USTAWY z dnia 7 października 2022 r. o zmianie ustawy o charakterystyce energetycznej budynków oraz ustawy - Prawo budowlane.

Prezentowana oferta nie stanowi oferty handlowej w rozumieniu Art. 66 par. 1 Kodeksu Cywilnego, a dane w niej zawarte mają charakter jedynie informacyjny i mogą ulec zmianie.

Ofertę poleca ŚWIAT NIERUCHOMOŚCI oraz Centrum Kredytowe - z KREDYTem ZA PAN BRAT.

CENTRUM NOWYCH MIESZKAŃ zaprasza -  Wrocław, ul. Oławska 28.

Oferta wysłana z programu dla biur nieruchomości ASARI CRM (asaricrm.com)


Numer oferty: 20406/3265/OMS
Nr licencji zawodowej: 645

Statystyki ogłoszenia:

oko

Podobne nieruchomości