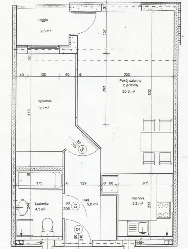
2-pokojowe mieszkanie z loggią, garaż, basen, blisko komunikacji Warszawa, Ursus Czechowice, Górna Droga - 44,1m2
600 000
zł
13 605,44 zł/m2
POWIERZCHNIA
44,10 m2
PIĘTRO
6 / 7
LICZBA POKOI
2
PARKING
miejsce parkingowe
Szczegóły oferty TB#596939792
- Kategoria Mieszkania na sprzedaż
- Lokalizacja mazowieckie, Warszawa, Ursus Czechowice, Górna Droga
- Powierzchnia całkowita44,10 m2
-
Cena
600 000 zł
-
Czynsz administracyjny
850 zł
- Cena za m2 13 605,44 zł/m2
- Liczba pokoi 2
- Piętro 6
- Liczba pięter w budynku 7
- Typ budynkuapartamentowiec
- Rok budowy 2001
- Materiał inny
- Informacje dodatkowe:
- winda, miejsce parkingowe, loggia
Lokalizacja
Opis oferty
Na sprzedaż 2-pokojowe mieszkanie 44,10m2, piętro 6/7 z windą, w budynku z 2001r. Ursus, Czechowice.
Do remontu, super dla singla lub pary, także inwestycyjnie pod wynajem.
Mieszkanie to:
* salon z wyjściem na loggię;
* sypialnia;
* osobna kuchnia: lodówka, zlew, kuchenka gazowa, piekarnik;
* łazienka: umywalka, wc, wanna, pralka;
* przedpokój;
* loggia.
Miejsce postojowe w zadaszonym garażu w cenie.
Czynsz 850zł. Ogrzewanie miejskie. Ekspozycja na zachód.
Na terenie zamkniętego osiedla znajduje się basen i siłownia do wyłącznej dyspozycji właścicieli mieszkań.
Spokojna, przyjemna lokalizacja, blisko liczne sklepy i punkty usługowe, piekarnia, supermarket. Wygodny dostęp do komunikacji miejskiej, tylko 2 min. pieszo do przystanków autobusowych.
Mieszkanie to lokal mieszkalny stanowiący odrębną nieruchomość, jest założona księga wieczysta, grunty uregulowane (własność). Brak jakichkolwiek obciążeń w księdze wieczystej do transakcji, własność małżeństwa, możliwa szybka sprzedaż. Mieszkanie jest dostępne za gotówkę lub na kredyt, który bezpłatnie możemy uzyskać.
Zapraszam do obejrzenia na miejscu, zadzwoń od razu i umów się na spotkanie! Oferta biura nieruchomości, więcej propozycji na naszej stronie topbrokers(kropka)pl
Numer oferty: TB#596939792
Osoba odpowiedzialna zawodowo: Jan Praski
Do remontu, super dla singla lub pary, także inwestycyjnie pod wynajem.
Mieszkanie to:
* salon z wyjściem na loggię;
* sypialnia;
* osobna kuchnia: lodówka, zlew, kuchenka gazowa, piekarnik;
* łazienka: umywalka, wc, wanna, pralka;
* przedpokój;
* loggia.
Miejsce postojowe w zadaszonym garażu w cenie.
Czynsz 850zł. Ogrzewanie miejskie. Ekspozycja na zachód.
Na terenie zamkniętego osiedla znajduje się basen i siłownia do wyłącznej dyspozycji właścicieli mieszkań.
Spokojna, przyjemna lokalizacja, blisko liczne sklepy i punkty usługowe, piekarnia, supermarket. Wygodny dostęp do komunikacji miejskiej, tylko 2 min. pieszo do przystanków autobusowych.
Mieszkanie to lokal mieszkalny stanowiący odrębną nieruchomość, jest założona księga wieczysta, grunty uregulowane (własność). Brak jakichkolwiek obciążeń w księdze wieczystej do transakcji, własność małżeństwa, możliwa szybka sprzedaż. Mieszkanie jest dostępne za gotówkę lub na kredyt, który bezpłatnie możemy uzyskać.
Zapraszam do obejrzenia na miejscu, zadzwoń od razu i umów się na spotkanie! Oferta biura nieruchomości, więcej propozycji na naszej stronie topbrokers(kropka)pl
Numer oferty: TB#596939792
Osoba odpowiedzialna zawodowo: Jan Praski
Statystyki ogłoszenia:
Podobne nieruchomości