Działka 8,63 ar z mediami, świetna pod dom wrocławskiej Fabrycznej Wrocław, Fabryczna, Jerzmanów - 863,0m2
Oferta na wyłączność
863 000 zł 1 000 zł/m2POWIERZCHNIA
863 m2
RODZAJ DZIAŁKI
budowlana
DROGA DOJAZDOWA
asfaltowa
Szczegóły oferty 41768
- Kategoria Działki i grunty na sprzedaż
- Lokalizacja dolnośląskie, Wrocław, Fabryczna, Jerzmanów
-
Powierzchnia
całkowita 863 m2
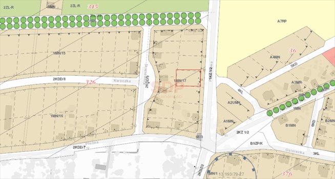
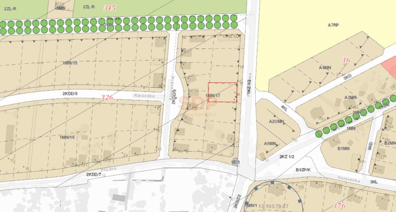
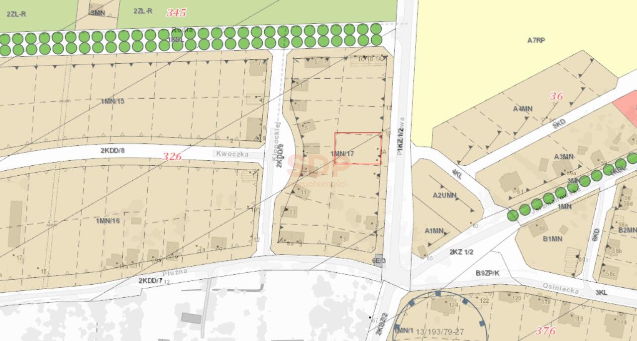
Sprawdź MPZP
-
Cena
863 000 zł
- Cena za m2 1 000 zł/m2
- Rodzaj działki budowlana
- Forma własności własność
- Mediagaz, prąd, woda
- Kanalizacjamiejska
- Droga dojazdowaasfaltowa
- Ogrodzenie działkibrak
Lokalizacja
Opis oferty
Do sprzedaży działka o powierzchni 8,63 arów.
Dostęp do drogi publicznej.
Opiekun oferty:
Barbara Bober
Pośrednik w obrocie nieruchomościami
Nr licencji PFRN 23784
tel. 602pokaż telefon
***Tylko w SDP Nieruchomości***
Otoczenie nieruchomości:
Wjazd na działkę od ulicy Piołunowej.
Zielona okolica z niską zabudową.
Komunikacja miejska w pobliżu, przystanek autobusowy w odległości 20 m (autobusy nr: 129, 142, 909).
Dogodny dojazd autem w różne kierunki miasta i poza Wrocław, głównie dzięki bliskości AOW, obwodnicy Leśnicy oraz autostrady A4.
Parametry:
Działka o powierzchni 863 m2.
Przeznaczenie:
Działka jest objęta Miejscowym Planem Zagospodarowania Przestrzennego, przewidziana zabudowa mieszkaniowa jednorodzinna.
Media:
Wszystkie media w drodze (woda, gaz, prąd, kanalizacja).
Rekomendacja Eksperta SDP Nieruchomości:
Miejsce idealne do budowy domu jednorodzinnego.
Lokalizacja zapewnia komunikację miejską i dobry dojazd do obwodnicy Leśnicy oraz wrocławskiego lotniska.
Niedostateczne środki? To nie problem:
Pomagamy w uzyskaniu finansowania na tę i inne nieruchomości. Zadzwoń i zapytaj o szczegóły.
Polecam i zapraszam na prezentację.
Opiekun oferty:
Barbara Bober
tel. 602pokaż telefon
Numer oferty: 41768
Nr licencji zawodowej: 6592
Statystyki ogłoszenia:
Podobne nieruchomości