Działka inwestycyjna z pozwoleniem na 4 budynki w Wawer Falenica Warszawa, Wawer Falenica, Werbeny - 1590,0m2
2 350 000
zł
1 477,99 zł/m2
POWIERZCHNIA
1 590 m2
RODZAJ DZIAŁKI
budowlana
DROGA DOJAZDOWA
-
Szczegóły oferty 195314
- Kategoria Działki i grunty na sprzedaż
- Lokalizacja mazowieckie, Warszawa, Wawer Falenica, Werbeny
-
Powierzchnia
całkowita 1 590 m2
Sprawdź MPZP
-
Cena
2 350 000 zł
- Cena za m2 1 477,99 zł/m2
- Rodzaj działki budowlana
- Rok budowy 1
Lokalizacja
Opis oferty
Avenue Estate przedstawia działkę inwestycyjną z pozwoleniem na budowę - Warszawa Wawer Falenica.
ATUTY
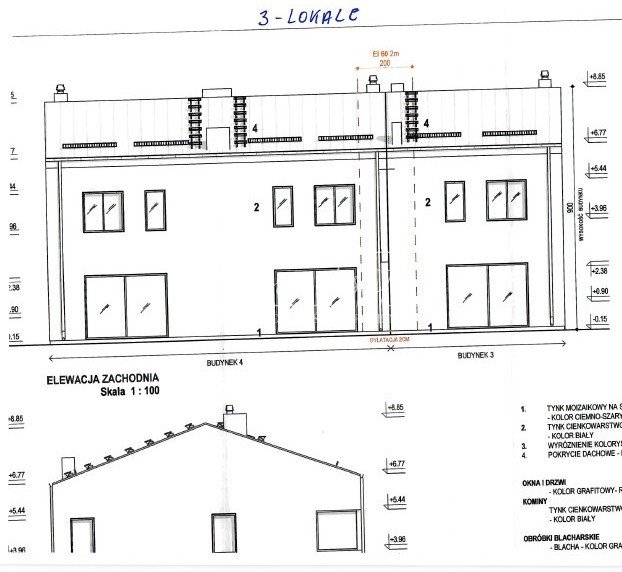
- Prawomocne pozwolenie na budowę 4 budynków bliźniaczych (7 lokali, ok. 128 m² każdy)
- Pełna dokumentacja projektowa w cenie
- Idealna propozycja dla dewelopera - możliwość szybkiego rozpoczęcia budowy
- Media doprowadzone: gaz, energia elektryczna (umowa C11), podpisane umowy przyłączeniowe
- Działka ogrodzona, z dojazdem asfaltowym
- Spokojna, zielona okolica - w sąsiedztwie las i zabudowa jednorodzinna
OPIS NIERUCHOMOŚCI
Na sprzedaż działka budowlana o powierzchni 1590 m², położona w zielonej części Wawra - Falenicy, przy ul. Przylaszczkowej. Nieruchomość posiada prawomocne pozwolenie na budowę (styczeń 2025 r.) wraz z kompletną dokumentacją projektową obejmującą realizację 4 budynków w zabudowie bliźniaczej, tworzących łącznie 7 lokali mieszkalnych o powierzchni ok. 128 m² każdy.
Dzięki gotowemu projektowi i podpisanym umowom na media inwestor może natychmiast przystąpić do prac. Działka ma regularny kształt o wymiarach 24 x 64 m, jest ogrodzona i posiada dostęp do asfaltowej drogi.
POZWOLENIE NA BUDOWĘ
• 4 budynki jednorodzinne w zabudowie bliźniaczej
• 3 budynki dwulokalowe
• 1 budynek jednolokalowy
• 7 lokali mieszkalnych o powierzchni użytkowej ok. 128 m²
• Do każdego lokalu przewidziano 2 miejsca postojowe
Media i Infrastruktura
• Gaz - doprowadzony do działki
• Energia elektryczna - umowa na prąd budowlany (C11), podpisane przyłączenie docelowe z realizacją do 28.09.2026
• Woda - z własnego ujęcia
• Ścieki - szambo zgodnie z projektem
• Dojazd drogą asfaltową + udział w drodze wewnętrznej
LOKALIZACJA
Nieruchomość znajduje się w spokojnej i zielonej części Wawra, zapewniającej jednocześnie wygodny dostęp do infrastruktury:
- Przystanki autobusowe linii 213 i 702 - ok. 650 m
- Szkoła podstawowa - ok. 600 m
- Planowane przedszkole w sąsiedztwie
- Sklepy: Netto (700 m), Biedronka (1,4 km), Lidl (2,3 km)
- Przychodnia zdrowia - ul. Bysławska
Okolica charakteryzuje się niską zabudową i bliskością lasów, co dodatkowo podnosi atrakcyjność inwestycyjną działki.
DODATKOWE INFORMACJE
• Doskonała propozycja dla dewelopera lub inwestora szukającego gotowego projektu z pełną dokumentacją
Numer oferty: 195314
Osoba odpowiedzialna zawodowo: Adrian Bogucki
ATUTY
- Prawomocne pozwolenie na budowę 4 budynków bliźniaczych (7 lokali, ok. 128 m² każdy)
- Pełna dokumentacja projektowa w cenie
- Idealna propozycja dla dewelopera - możliwość szybkiego rozpoczęcia budowy
- Media doprowadzone: gaz, energia elektryczna (umowa C11), podpisane umowy przyłączeniowe
- Działka ogrodzona, z dojazdem asfaltowym
- Spokojna, zielona okolica - w sąsiedztwie las i zabudowa jednorodzinna
OPIS NIERUCHOMOŚCI
Na sprzedaż działka budowlana o powierzchni 1590 m², położona w zielonej części Wawra - Falenicy, przy ul. Przylaszczkowej. Nieruchomość posiada prawomocne pozwolenie na budowę (styczeń 2025 r.) wraz z kompletną dokumentacją projektową obejmującą realizację 4 budynków w zabudowie bliźniaczej, tworzących łącznie 7 lokali mieszkalnych o powierzchni ok. 128 m² każdy.
Dzięki gotowemu projektowi i podpisanym umowom na media inwestor może natychmiast przystąpić do prac. Działka ma regularny kształt o wymiarach 24 x 64 m, jest ogrodzona i posiada dostęp do asfaltowej drogi.
POZWOLENIE NA BUDOWĘ
• 4 budynki jednorodzinne w zabudowie bliźniaczej
• 3 budynki dwulokalowe
• 1 budynek jednolokalowy
• 7 lokali mieszkalnych o powierzchni użytkowej ok. 128 m²
• Do każdego lokalu przewidziano 2 miejsca postojowe
Media i Infrastruktura
• Gaz - doprowadzony do działki
• Energia elektryczna - umowa na prąd budowlany (C11), podpisane przyłączenie docelowe z realizacją do 28.09.2026
• Woda - z własnego ujęcia
• Ścieki - szambo zgodnie z projektem
• Dojazd drogą asfaltową + udział w drodze wewnętrznej
LOKALIZACJA
Nieruchomość znajduje się w spokojnej i zielonej części Wawra, zapewniającej jednocześnie wygodny dostęp do infrastruktury:
- Przystanki autobusowe linii 213 i 702 - ok. 650 m
- Szkoła podstawowa - ok. 600 m
- Planowane przedszkole w sąsiedztwie
- Sklepy: Netto (700 m), Biedronka (1,4 km), Lidl (2,3 km)
- Przychodnia zdrowia - ul. Bysławska
Okolica charakteryzuje się niską zabudową i bliskością lasów, co dodatkowo podnosi atrakcyjność inwestycyjną działki.
DODATKOWE INFORMACJE
• Doskonała propozycja dla dewelopera lub inwestora szukającego gotowego projektu z pełną dokumentacją
Numer oferty: 195314
Osoba odpowiedzialna zawodowo: Adrian Bogucki
Statystyki ogłoszenia:
Podobne nieruchomości