Działka pod zabudowę wielorodzinną lub jednorodzinną, 625 m2 Warszawa, Targówek Zacisze - 625,0m2
Oferta na wyłączność
1 530 000 zł 2 448 zł/m2POWIERZCHNIA
625 m2
RODZAJ DZIAŁKI
budowlana
DROGA DOJAZDOWA
-
Szczegóły oferty A-D261464
- Kategoria Działki i grunty na sprzedaż
- Lokalizacja mazowieckie, Warszawa, Targówek Zacisze
-
Powierzchnia
całkowita 625 m2
Sprawdź MPZP
-
Cena
1 530 000 zł
- Cena za m2 2 448 zł/m2
- Rodzaj działki budowlana
- Ogrodzenie działkibrak
Lokalizacja
Opis oferty
Nowa Cena
!!!!!!!!!!!!!!!!!! Brak Prowizji ze strony Kupujących !!!!!!!!!!
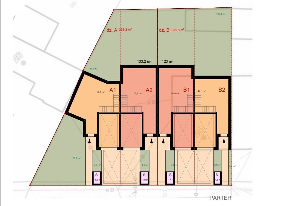
Analiza chłonności - możliwość wybudowania:
- 4 mieszkań o powierzchni użytkowej 476,72m2
lub
- 4 mieszkań -o powierzchni użytkowej 512,6m2
lub
- 4 domów,
lub
- 3 domów
Wymiary działki
Szerokość: 26,5m od ulicy i zwęża się do 18m
Głębokość: około 26,5m
okolica :
- 1 km do stacji metra Zacisze
- 200 m do przystanku autobusowego
- 230m do placu zabaw
- 250m do lasu bródnowskiego
Obecnie na działce znajduje się parterowy budynek o powierzchni 100 m2
Dom składa się z 3 dużych pokoi, oddzielnej kuchnia , oraz łazienki.
Obecnie nieruchomość zamieszkała przez najemców.
Plan zagospodarowania dla działki
Dla jednostek terenowych oznaczonych na rysunku planu symbolami MNK 9÷MNK 14:
1. Ustala się przeznaczenie podstawowe jednostek terenowych - zabudowa mieszkaniowa jednorodzinna z dopuszczeniem budynków wielorodzinnych zawierających 3÷4 lokale mieszkalne -mogą być realizowane zarówno budynki jednorodzinne, tj. zawierające 1 - 2 lokale mieszkalne lub 1 lokal mieszkalny i 1 lokal usługowy o powierzchni nie przekraczającej 30% powierzchni całkowitej budynku, jak i budynki zawierające maksymalnie 4 lokale mieszkalne i lokale usługowe o łącznej powierzchni nie przekraczającej 20% powierzchni całkowitej budynku (przy czym możliwe jest sytuowanie tych budynków jako wolnostojących i bliźniaczych), wraz z ich zapleczami (obejmującymi dojścia, podjazdy, podwórza, garaże i budynki gospodarcze), ogrodami przydomowymi i zewnętrznymi urządzeniami infrastruktury technicznej, a także odrębne budynki dla usług towarzyszących.
2. Ustala się, że przeznaczeniem dopuszczalnym jednostek terenowych mogą być usługi - bez przesądzania ich profilu - w zakresie, o jakim mowa w § 2 pkt 9.
3. Ustala się, że przeznaczenie dopuszczalne może funkcjonować w pomieszczeniach wbudowanych w budynki mieszkalne.
4. Obowiązujące zasady zagospodarowania i kształtowania zabudowy:
1) w zakresie zasad podziału terenów i tworzenia nowych działek:
a) ustala się minimalną wielkość nowo tworzonej działki pod zabudowę:
- dla segmentu w zabudowie bliźniaczej- 450 m2
- dla jednego budynku wolnostojącego- 600 m2
b) obowiązują także przepisy dotyczące zasad tworzenia nowych działek zawarte w § 11;
2) zasady kształtowania zabudowy mieszkaniowej:
a) ustala się maksymalną wysokość zabudowy na 12 m, a w przypadku dachów płaskich- 10,5 m,
b) w sytuacji, gdy budynek usytuowany jest szczytem do ulicy, zakazuje się realizacji szczytu bez otworów okiennych lub drzwiowych,
c) wyznacza się na rysunku planu linie zabudowy nieprzekraczalne oraz obowiązującą: dla jednostki MNK 11 - od ul. Kolejarskiej;
3) dopuszcza się realizację odrębnych budynków gospodarczych i garażowych, przy czym ustala się maksymalną łączną powierzchnię zabudowy budynków gospodarczych (w tym garaży) - 50 m2 oraz obowiązek realizacji w głębi działki;
4) warunki usytuowania budynku w granicy działki określają przepisy zawarte w § 9;
5) w zakresie wyznaczania miejsc parkingowych obowiązują ustalenia zawarte w § 12;
6) ustala się maksymalny wskaźnik powierzchni zabudowanej dla działek:
- o powierzchni 600 - 800 m2- 35%,
7) ustala się minimalny procentowy wskaźnik powierzchni biologicznie czynnej dla działek nowo
zabudowywanych:
- o powierzchni 600 - 800 m2- 50%,
New price
!!!!!!!!!!!!!!!!!! No Commission from Buyers !!!!!!!!!!
We invite you to familiarize yourself with the offer of sale of a house from the 40s on a plot of 625 m2 in Zacisze - near Bystra Street
The house has an area of 100 m2
It is half of a semi-detached house.
The house consists of:
- 3 separate rooms
- bathroom
- bright separate kitchen
- hallway
Plot dimensions
Width 26.5m and narrows to 18
Depth at 26.5m
Plot development plan:
For land units marked on the plan drawing with the symbols MNK 9÷MNK 14:
1. The basic purpose of land units is established - single-family housing development
with the admission of multi-family buildings containing 3÷4 residential premises - means plot areas
on which there are and can be built both single-family buildings, i.e. containing 1-2 residential premises
or 1 residential premises and 1 commercial premises with an area not exceeding 30% of the total area
of the building, as well as buildings containing a maximum of 4 residential premises and commercial premises with a total area not exceeding 20% of the total area of the building (where it is possible situating
these buildings as detached and semi-detached), together with their facilities (including accesses, driveways,
yards, garages and utility buildings), home gardens and external technical infrastructure facilities, as well as separate buildings for accompanying services.
2. It is established that the permissible purpose of local units may be services - without
prejudging their profile - within the scope referred to in § 2 item 9.
3. It is established that the permissible purpose may function in rooms built into
residential buildings. 4. Applicable principles of development and shaping of development:
1) in the scope of principles of land division and creation of new plots:
a) the minimum size of a newly created plot for development is established:
- for a segment in a semi-detached development - 450 m2
- for one detached building - 600 m2
b) the provisions concerning the principles of creating new plots contained in § 11 also apply;
2) principles of shaping residential development:
a) the maximum height of development is established at 12 m, and in the case of flat roofs - 10.5 m,
b) in a situation where the building is situated with its gable facing the street, it is prohibited to create a gable without
window or door openings,
c) the plan drawing shall designate the impassable development lines and the applicable: for the MNK unit
11 - from Kolejarska Street; 3) separate utility buildings and garages may be constructed, with the maximum total building area of utility buildings (including garages) being established at 50 m2
and the obligation to construct them deep within the plot;
4) the conditions for locating a building within the plot boundary are specified in the provisions of § 9;
5) the provisions of § 12 apply to designating parking spaces;
6) the maximum built-up area ratio for plots is established:
- with an area of 600-800 m2 - 35%,
7) the minimum percentage of biologically active area ratio for newly built-up plots is established:
- with an area of 600-800 m2 - 50%,
Numer oferty: A-D261464
!!!!!!!!!!!!!!!!!! Brak Prowizji ze strony Kupujących !!!!!!!!!!
Analiza chłonności - możliwość wybudowania:
- 4 mieszkań o powierzchni użytkowej 476,72m2
lub
- 4 mieszkań -o powierzchni użytkowej 512,6m2
lub
- 4 domów,
lub
- 3 domów
Zapraszamy do zapoznania się z ofertą sprzedaży działki na warszawskim Zaciszu
działka zlokalizowana w spokojnej okolicy, blisko lasku Bródnowskiego i ul. Bystrej
działka zlokalizowana w spokojnej okolicy, blisko lasku Bródnowskiego i ul. Bystrej
Wymiary działki
Szerokość: 26,5m od ulicy i zwęża się do 18m
Głębokość: około 26,5m
okolica :
- 1 km do stacji metra Zacisze
- 200 m do przystanku autobusowego
- 230m do placu zabaw
- 250m do lasu bródnowskiego
Dom składa się z 3 dużych pokoi, oddzielnej kuchnia , oraz łazienki.
Obecnie nieruchomość zamieszkała przez najemców.
Dla jednostek terenowych oznaczonych na rysunku planu symbolami MNK 9÷MNK 14:
1. Ustala się przeznaczenie podstawowe jednostek terenowych - zabudowa mieszkaniowa jednorodzinna z dopuszczeniem budynków wielorodzinnych zawierających 3÷4 lokale mieszkalne -mogą być realizowane zarówno budynki jednorodzinne, tj. zawierające 1 - 2 lokale mieszkalne lub 1 lokal mieszkalny i 1 lokal usługowy o powierzchni nie przekraczającej 30% powierzchni całkowitej budynku, jak i budynki zawierające maksymalnie 4 lokale mieszkalne i lokale usługowe o łącznej powierzchni nie przekraczającej 20% powierzchni całkowitej budynku (przy czym możliwe jest sytuowanie tych budynków jako wolnostojących i bliźniaczych), wraz z ich zapleczami (obejmującymi dojścia, podjazdy, podwórza, garaże i budynki gospodarcze), ogrodami przydomowymi i zewnętrznymi urządzeniami infrastruktury technicznej, a także odrębne budynki dla usług towarzyszących.
2. Ustala się, że przeznaczeniem dopuszczalnym jednostek terenowych mogą być usługi - bez przesądzania ich profilu - w zakresie, o jakim mowa w § 2 pkt 9.
3. Ustala się, że przeznaczenie dopuszczalne może funkcjonować w pomieszczeniach wbudowanych w budynki mieszkalne.
4. Obowiązujące zasady zagospodarowania i kształtowania zabudowy:
1) w zakresie zasad podziału terenów i tworzenia nowych działek:
a) ustala się minimalną wielkość nowo tworzonej działki pod zabudowę:
- dla segmentu w zabudowie bliźniaczej- 450 m2
- dla jednego budynku wolnostojącego- 600 m2
b) obowiązują także przepisy dotyczące zasad tworzenia nowych działek zawarte w § 11;
2) zasady kształtowania zabudowy mieszkaniowej:
a) ustala się maksymalną wysokość zabudowy na 12 m, a w przypadku dachów płaskich- 10,5 m,
b) w sytuacji, gdy budynek usytuowany jest szczytem do ulicy, zakazuje się realizacji szczytu bez otworów okiennych lub drzwiowych,
c) wyznacza się na rysunku planu linie zabudowy nieprzekraczalne oraz obowiązującą: dla jednostki MNK 11 - od ul. Kolejarskiej;
3) dopuszcza się realizację odrębnych budynków gospodarczych i garażowych, przy czym ustala się maksymalną łączną powierzchnię zabudowy budynków gospodarczych (w tym garaży) - 50 m2 oraz obowiązek realizacji w głębi działki;
4) warunki usytuowania budynku w granicy działki określają przepisy zawarte w § 9;
5) w zakresie wyznaczania miejsc parkingowych obowiązują ustalenia zawarte w § 12;
6) ustala się maksymalny wskaźnik powierzchni zabudowanej dla działek:
- o powierzchni 600 - 800 m2- 35%,
7) ustala się minimalny procentowy wskaźnik powierzchni biologicznie czynnej dla działek nowo
zabudowywanych:
- o powierzchni 600 - 800 m2- 50%,
Zapraszamy do zapoznania się z ofertą
New price
!!!!!!!!!!!!!!!!!! No Commission from Buyers !!!!!!!!!!
We invite you to familiarize yourself with the offer of sale of a house from the 40s on a plot of 625 m2 in Zacisze - near Bystra Street
The house has an area of 100 m2
It is half of a semi-detached house.
The house consists of:
- 3 separate rooms
- bathroom
- bright separate kitchen
- hallway
Plot dimensions
Width 26.5m and narrows to 18
Depth at 26.5m
Plot development plan:
For land units marked on the plan drawing with the symbols MNK 9÷MNK 14:
1. The basic purpose of land units is established - single-family housing development
with the admission of multi-family buildings containing 3÷4 residential premises - means plot areas
on which there are and can be built both single-family buildings, i.e. containing 1-2 residential premises
or 1 residential premises and 1 commercial premises with an area not exceeding 30% of the total area
of the building, as well as buildings containing a maximum of 4 residential premises and commercial premises with a total area not exceeding 20% of the total area of the building (where it is possible situating
these buildings as detached and semi-detached), together with their facilities (including accesses, driveways,
yards, garages and utility buildings), home gardens and external technical infrastructure facilities, as well as separate buildings for accompanying services.
2. It is established that the permissible purpose of local units may be services - without
prejudging their profile - within the scope referred to in § 2 item 9.
3. It is established that the permissible purpose may function in rooms built into
residential buildings. 4. Applicable principles of development and shaping of development:
1) in the scope of principles of land division and creation of new plots:
a) the minimum size of a newly created plot for development is established:
- for a segment in a semi-detached development - 450 m2
- for one detached building - 600 m2
b) the provisions concerning the principles of creating new plots contained in § 11 also apply;
2) principles of shaping residential development:
a) the maximum height of development is established at 12 m, and in the case of flat roofs - 10.5 m,
b) in a situation where the building is situated with its gable facing the street, it is prohibited to create a gable without
window or door openings,
c) the plan drawing shall designate the impassable development lines and the applicable: for the MNK unit
11 - from Kolejarska Street; 3) separate utility buildings and garages may be constructed, with the maximum total building area of utility buildings (including garages) being established at 50 m2
and the obligation to construct them deep within the plot;
4) the conditions for locating a building within the plot boundary are specified in the provisions of § 9;
5) the provisions of § 12 apply to designating parking spaces;
6) the maximum built-up area ratio for plots is established:
- with an area of 600-800 m2 - 35%,
7) the minimum percentage of biologically active area ratio for newly built-up plots is established:
- with an area of 600-800 m2 - 50%,
Numer oferty: A-D261464
Statystyki ogłoszenia:
Podobne nieruchomości