ico powierzchnia

POWIERZCHNIA

616 m2

ico rodzaj działki

RODZAJ DZIAŁKI

budowlana

ico droga dojazdowa

DROGA DOJAZDOWA

inne

Szczegóły oferty 8540200 Data dodania: dzisiaj

Lokalizacja

Mstów

Opis oferty

Dojazd drogą asfaltową, dostępna infrastruktura techniczna: wodociąg, kanalizacja, prąd. W sąsiedztwie: bogata oferta handlowo-usługowa, tereny rekreacyjne nad rzeką Wartą, spływy kajakowe.   Panorama 360° - sprawdź na wirtualnym spacerze dostępność oraz najbliższą okolicę Marzysz o własnym domu w dogodnej lokalizacji, a może chcesz bezpiecznie zainwestować oszczędności? Każdy krok, który przybliża nas do komfortowego życia, jest dobry Wyjątkowo atrakcyjna lokalizacja pod budowę domu, z dostępem do bogatej oferty handlowo-usługowej oraz terenów rekreacyjnych. Kompleks zlokalizowany jest w tzw. ,,sypialni Częstochowy`, w bezpośrednim sąsiedztwie miejscowości gminnej - Mstów Dodatkowy atut stanowi bliskość siedziby gminy i powiatu oraz większych ośrodków miejskich:
  • > Mstów - 3 min
  • > Kłomnice - 10 min
  • > Częstochowa - 12 min
  • > Olsztyn - 15 min
  • > Radomsko - 25 min
  • > Kłobuck - 33 min
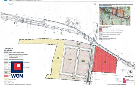
- Dojazd do najbliższego węzła Autostrady A1 zajmuje 16 minut.  - W najbliższym sąsiedztwie: tereny rekreacyjne nad rzeką Wartą, spływy kajakowe, osiedla domów jednorodzinnych.  - Korzystny mikroklimat obszaru potwierdza bliskość Parku Krajobrazowego Orlich Gniazd (700m), Parku Krajobrazowego Stawki (9km) oraz wielu rezerwatów przyrody (m.in. Zielona Góra,Wielki Las oraz Sokole Góry) - W rejonie znajdują się liczne atrakcje rekreacyjno-turystyczne m.in.: Zalew Tasarki w Mstowie (kompleks wypoczynkowo-rekreacyjny z kąpieliskiem), Jezioro Krasowe w Kusiętach (estetyczna strefa wypoczynkowa z plażą) czy Zamek Królewski w Olsztynie (jedna z najbardziej charakterystycznych warowni na Jurze) - Teren osiedla został podzielony na 46 działek budowlanych o zróżnicowanych powierzchniach od 551 m² do 714 m² (możliwość łączenia sąsiednich działek).  - Foremne kształty parceli ułatwią ich przyszłe zagospodarowania, a zrealizowane badania geotechniczne gruntu potwierdzają korzystne warunki do budowy domu.  - Kompleks położony jest przy asfaltowej drodze gminnej, z bezpośrednim dostępem do sieci elektroenergetycznej, wodociągowej oraz kanalizacyjnej.  Wszystkie działki w kompleksie objęte są miejscowym planem zagospodarowania przestrzennego (MPZP) z przeznaczeniem pod tereny zabudowy mieszkaniowej jednorodzinnej Korzystne parametry zabudowy dają szerokie możliwości wyboru projektu domu:
  • > Zabudowę mieszkaniową jednorodzinną lokalizować w układzie wolnostojącym.
  • > Wskaźnik powierzchni zabudowy do 40%.
  • > Intensywność zabudowy od 0,01 do 0,4.
  • > Minimalny udział procentowy powierzchni biologicznie czynnej 50%.
  • > Wysokość budynku mieszkalnego do 9 m.
  • > Do ceny działki należy doliczyć kwotę 2.900 PLN za udział w drodze osiedlowej. 
  • > Podane w ogłoszeniu ceny są kwotami brutto (wystawiamy fakturę VAT 23%).
  • > Kupując od nas działkę jesteś zwolniony z podatku od czynności cywilnoprawnych (PCC) w wysokości  2% kwoty transakcji - właśnie tę kwotę zaoszczędzisz na akcie u notariusza.
  • > Zakup bezpośrednio od właściciela - brak prowizji.
Zadzwoń i dowiedz się więcej Zespół Grunt to Inwestycja.  Zachęcamy do umówienia się na prezentację nieruchomości __________________________________________________________________ Jeżeli szukasz bezpiecznej i opłacalnej inwestycji lub działki na cele mieszkaniowe/rekreacyjne to zapraszamy do współpracy 1. Dlaczego warto inwestować wspólnie z firmą Grunt to Inwestycja?
  • > Jesteśmy bezpośrednimi właścicielami gruntów, zakup odbywa się bez pośredników i prowizji.
  • > Mamy 20-letnie doświadczenie w sektorze nieruchomości, sprzedaliśmy grunty o łącznej powierzchni ponad 789 518 m2.
  • > Starannie selekcjonujemy tereny pod przyszłe inwestycje biorąc pod uwagę aż 68 różnych czynników ryzyka.
2. Dlaczego warto inwestować w działki budowlane?
  • > Nieruchomości gruntowe od wielu lat odnotowują stałe wzrosty wartości, stanowiąc realną i bezpieczną alternatywę dla akcji, funduszy czy wirtualnych walut.
  • > Niski próg wejścia oraz płynność inwestycji - działki budowlane wymagają zdecydowanie mniejszego nakładu pieniężnego w odniesieniu do mieszkań i lokali usługowych.
  • > Ziemi nie da się "doprodukować" - jest dobrem ograniczonym, na które zawsze będzie popyt.
Opis ma charakter informacyjny i nie stanowi oferty w rozumieniu KC Hasła kluczowe: kapitał, lokata kapitału, inwestycje, inwestycja, MPZP, kompleks, grunt to inwestycja, grunttoinwestycja, stopa zwrotu, rentowność, faktura, fv, VAT, 23%, pierwszy dom, miasto powiatowe, autostrada, drzewa, budowlana
Numer oferty: 8540200

Statystyki ogłoszenia:

oko

Podobne nieruchomości