ico powierzchnia

POWIERZCHNIA

138,25 m2

ico powierzchnia dzialki

POWIERZCHNIA DZIAŁKI

188 m2

ico liczba pokoi

LICZBA POKOI

5

ico rodzaj domu

RODZAJ DOMU

segment

Szczegóły oferty 461200 Data dodania: wczoraj

  • Kategoria Domy na sprzedaż
  • Lokalizacja dolnośląskie, Wrocław, Księże Wielkie
  • Powierzchnia całkowita138,25 m2
  • Powierzchnia
    działki
    187,50 m2 ico trade ico Sprawdź MPZP Sprawdź MPZP
  • Cena

    1 349 000 zł

    Reklama ico Sprawdź ratę Sprawdź ratę RSSO 5,77% na dz. 20.04.26 trade ico trade ico trade
  • Cena za m2 9 757,69 zł/m2
  • Liczba pokoi 5
  • Liczba pięter w budynku 1
  • Rodzaj domu segment
  • Rok budowy 2025
  • Forma własności Własność
  • Materiał inny
  • Mediawoda, prąd
Okolica:
apteka, autobus, pkp, przedszkole, tramwaj

Lokalizacja

Wrocław, Księże Wielkie

Opis oferty

NOWY GOTOWY DOM | 0% PCC | 0% PROWIZJI

Na sprzedaż segment środkowy w podwyższonym standardzie, idealny dla par i rodzin poszukujących komfortu, przestrzeni i nowoczesnych rozwiązań.

Budynek bezczynszowy, o podwyższonym standardzie wykończenia - panele fotowoltaiczne, instalacja klimatyzacji  i rolety elektryczne w każdym pokoju, ogrzewanie podłogowe na obu poziomach.

Nieruchomość o powierzchni użytkowej 138 m² z ogródkiem o pow. 50m2 znajduje się na osiedlu Księże, w dobrze skomunikowanej okolicy z pełną infrastrukturą.

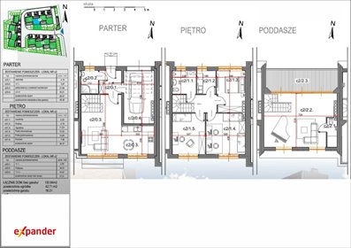
Parter - 44,86m2:
- wiatrołap (3,65m2),
- korytarz (4,57m2),
- salon z aneksem kuchennym (29,63m2),
- WC (2,84m2),
- kotłownia (4,17m2),
- garaż (18,32m2)

Piętro - 75,06m2:
- 4 pokoje (13,84m2, 13,41m2, 12,06m2, 11,16m2),
- 2 garderoby (3,96m2 i 3,34m2),
- łazienka z WC (8,92m2),
- korytarz (8,37m2).

Wykończenie 
- ogrzewanie podłogowe na obu poziomach, zasilane przez piec gazowy z zasobnikiem 140l.,
panele fotowoltaiczne (6sztuk),
- klimatyzacja we wszystkich pokojach,
- zewnętrzne rolety elektryczne na obu poziomach,
- wideodomofon,
- instalacja internetowa (światłowód),
- trawnik w ogródku.

Lokalizacja
Księże Wielkie to
jedno z najbardziej zielonych osiedli Wrocławia.
Sąsiadujące tereny to m.in. Park Wschodni, liczne ścieżki spacerowe i rowerowe, Most Kilometrowy - najdłuższa w Polsce kładka dla pieszych i rowerzystów.
W promieniu 1,5 km znajdują się niezbędnie punkty usługowe, edukacyjne:
- przedszkole (ok. 500 m),
- szkoła podstawowa (ok. 1 km),
- sala zabaw dla dzieci (ok. 1,5 km),
- apteka (ok. 300 m),
- sklep (ok. 100 m), 
- lokale gastronomiczne (ok. 100m).

Komunikacja miejska  linie autobusowe nr 124, 134, 243 (przystanek autobusowy w odległości ok. 200m) oraz linie tramwajowe nr 3 i 5 (przystanek tramwajowy w odległości ok. 800 m). Lokalizacja inwestycji zapewnia również szybki dojazd do Obwodnicy Wschodniej.

Inwestycja 
Powstało łącznie 38 domów w zabudowie szeregowej o powierzchni od ok. 138 m2 do 161 m2.
Każdy z domów posiada od 5 do 6 pokoi, garaż oraz wyjście na taras z ogrodem. Na działkach przynależnych do budynków zaprojektowano: wjazd do garażu, chodnik wejściowy i osłonę śmietnikową. 

Zadzwoń już dziś i umów się na prezentację!
Magda Wesołowska
tel.: 515pokaż telefon

Chętnie odpowiem na wszelkie pytania.
Bezpłatnie pomożemy w zbadaniu zdolności kredytowej oraz w doborze firmy do aranżacji wnętrz.


Numer oferty: 461200

Statystyki ogłoszenia:

oko

Podobne nieruchomości