Nowoczesny dom szeregowy 132m2 z ogrodem i tarasem Wrocław, Junacka - 148,79m2
POWIERZCHNIA
148,79 m2
POWIERZCHNIA DZIAŁKI
116 m2
LICZBA POKOI
5
RODZAJ DOMU
inny
Szczegóły oferty 11463242 Data dodania: dzisiaj
- Kategoria Domy na sprzedaż
- Lokalizacja dolnośląskie, Wrocław, Junacka
- Powierzchnia całkowita148,79 m2
-
Powierzchnia
działki 115,50 m2
Sprawdź MPZP
-
Cena
1 499 000 zł
- Cena za m2 10 074,60 zł/m2
- Liczba pokoi 5
- Liczba pięter w budynku 2
- Rodzaj domu inny
- Rok budowy 2026
- Materiał inny
- Ogrodzenie działkiinne
Lokalizacja
Opis oferty
Nowoczesny dom w zabudowie szeregowej
Życie w harmonii z naturą Twoje miejsce na mapie.
Bez prowizji i podatku PCC!
Na sprzedaż wyjątkowy dom w zabudowie szeregowej o powierzchni 132,92 m2 położony w prestiżowej lokalizacji Leśnicy, gdzie nowoczesna architektura spotyka się z naturalnym pięknem otoczenia.
Stan deweloperski to Twoja szansa na stworzenie wnętrz idealnie dopasowanych do Twoich potrzeb i gustu. Żadnych kompromisów - tylko Twoja wizja, Twój styl, Twoje marzenie o idealnym domu.
Lokalizacja, która zachwyca:
- Bezpośrednie sąsiedztwo lasu Mokrzańskiego - spacery i odpoczynek na wyciągnięcie ręki
- Spokojna, kameralna okolica z zabudową jednorodzinną
- Doskonała infrastruktura: szkoły, przedszkola, sklepy w zasięgu kilku minut
- Sprawny dojazd do centrum Wrocławia i AOW
- Przystanek autobusowy - 350 m (4 minuty spacerem)
Przemyślana funkcjonalność:
- Powierzchnia użytkowa: 132.92m2
- Ogródek 42,20m2 - Twoja prywatna strefa relaksu
- 5 pokoi - przestrzeń dla całej rodziny
- Taras 12.92m2 z widokiem na zieleń - idealne miejsce na poranne kawy i wieczorne relaksowanie
Technologia na miarę XXI wieku:
- Ogrzewanie gazowe podłogowe w całym budynku, także w garażu - komfort przez cały rok ( sterowniki w każdym pomieszczeniu)
- System rekuperacji - świeże powietrze i niskie rachunki
- Piec gazowy dwufunkcyjny
- Panoramiczne okna - maksimum naturalnego światła
- Instalacja pod fotowoltaike i pod klimatyzacje.
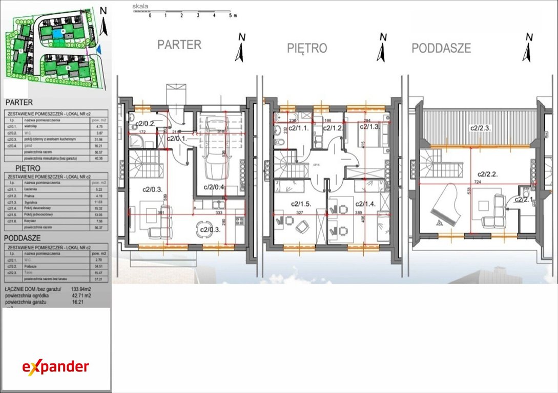
Rozkład pomieszczeń:
Parter:
- Salon z aneksem kuchennym i wyjściem do ogrodu
- Łazienka
- Pomieszczenie techniczne/pralnia
- Garaż w bryle budynku + dodatkowe miejsce postojowe
Piętro:
- Trzy przestronne sypialnie
- Łazienka
- Pralnia/Pomieszczenie gospodarcze
Poddasze:
- Wyjście na taras dachowy
- Open space - możliwość aranżacji strefy relaksu, domowego biura lub sali fitness
- Łazienka
Leśnica - tu chcesz mieszkać !
Zielona, cicha okolica, a jednocześnie pełna infrastruktura i świetna komunikacja.
To miejsce, gdzie poranną kawę pijesz z widokiem na las, a do centrum Wrocławia docierasz w kilkanaście minut.
Sygnatura:C2
Możliwość pomocy w projekcie i doborze wykonawców.
Zapraszam na spotkanie!
Marietta Romanowska
tel. 664pokaż telefon
*Oferta ma charakter informacyjny i nie stanowi oferty handlowej w rozumieniu art. 66 1 Kodeksu Cywilnego.
Zainteresowany? Zadzwoń teraz i umów się na spotkanie online
Oferta dodana z propertly.io
Nr oferty w biurze: 1146pokaż telefon
Numer oferty: 11463242
Statystyki ogłoszenia:
Podobne nieruchomości