ico powierzchnia

POWIERZCHNIA

132,41 m2

ico powierzchnia dzialki

POWIERZCHNIA DZIAŁKI

192 m2

ico liczba pokoi

LICZBA POKOI

5

ico rodzaj domu

RODZAJ DOMU

segment

Szczegóły oferty 5260369 Data dodania: 2 dni temu

  • Kategoria Domy na sprzedaż
  • Lokalizacja dolnośląskie, Wrocław, Cieszyńska
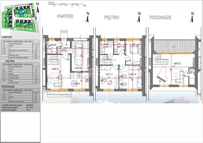
  • Powierzchnia całkowita132,41 m2
  • Powierzchnia
    działki
    192 m2 ico trade ico Sprawdź MPZP Sprawdź MPZP
  • Cena

    1 429 000 zł

    Reklama ico Sprawdź ratę Sprawdź ratę RSSO 6,01% na dz. 16.02.26 trade ico trade ico trade
  • Cena za m2 10 792,24 zł/m2
  • Liczba pokoi 5
  • Liczba pięter w budynku 2
  • Rodzaj domu segment
  • Rok budowy 2020
  • Materiał inny
  • Mediasiła, woda, gaz
  • Droga dojazdowainne
  • Ogrodzenie działkiinne
Informacje dodatkowe:
internet
Okolica:
plac zabaw, przedszkole, żłobek, tramwaj, autobus, apteka

Lokalizacja

Wrocław, Cieszyńska

Opis oferty

Na sprzedaż przestronny,  dwupoziomowy lokal mieszkalny o pow. 132,42 m² z ogródkiem i garażem o pow. 192 m²
To idealna propozycja dla rodziny  poszukującej komfortowej przestrzeni, funkcjonalnego rozkładu  pomieszczeń oraz nieruchomości gotowej do wprowadzenia

Masz dość  ofert nowych lokali w stanie deweloperskim, pełnych wizualizacji zamiast realnych wnętrz?
Chciałbyś  zamieszkać w gotowym domu — bez stresu, remontów i niekończących się decyzji?
Szukasz  już od dłuższego czasu i w gąszczu ogłoszeń przestajesz widzieć różnicę?
Mam coś co może Cię zainteresować!
Najważniejsze informacje:
- Powierzchnia mieszkania: 132,42 m² (dwa poziomy użytkowe)
- Powierzchnia ogrodu: 192 m²
- Rok budowy / oddania do użytkowania: 2020
- Media:  szambo (projekt kanalizacji jest gotowy; budowa kanalizacji planowana na rok 2027)
- Ogrzewanie : gazowe — piec dwufunkcyjny
- Podłogówka
- Klimatyzacja
- rolety zewnętrzne
Szczegółowy opis rozkładu i wykończenia:
Parter:
Przestronny salon z aneksem kuchennym (kuchnia w zabudowie, wysoki standard wykończenia i sprzęt AGD), otwarta aranżacja zapewniająca dużą powierzchnię dzienną i  naturalne doświetlenie

Bezpośrednie wyjście  z salonu na ogród  (wygodne miejsce na taras, strefę wypoczynkową i plac zabaw dla dzieci)

Przedpokój zapewniający komunikację z garażem i częścią mieszkalną

Łazienka gościnna (wykończona, z ogrzewaniem podłogowym)

Piętro:
Cztery ustawne pokoje  — idealne jako sypialnie, pokoje dla dzieci lub gabinetu/pracowni

Przestronna  łazienka z wanną i oknem , które gwarantuje dostęp do naturalnego światła, z komfortowym ogrzewaniem podłogowym

Atuty:
Gotowe do zamieszkania  — wysoki standard wykończenia eliminuje konieczność natychmiastowych remontów

Duży ogród (192 m²)  daje możliwość urządzenia tarasu, ogrodu użytkowego lub bezpiecznego miejsca zabaw dla dzieci

Funkcjonalny rozkład  (4 pokoje na górze) sprawia, że nieruchomość znakomicie sprawdzi się jako dom rodzinny

Projekt kanalizacji przewidziany do realizacji — przyszłe podłączenie zmniejszy koszty eksploatacji i zwiększy wartość nieruchomości

Rekomendacja Eksperta biura Malada Home:
Polecam tę nieruchomość ze względu na doskonałą lokalizację w pobliżu Parku Wschodniego, oferującego liczne ścieżki spacerowe i rowerowe., dla:
✔  Dla rodziny,  która potrzebuje wyraźnego podziału na strefę dzienną i prywatną, zapewniającego komfort codziennego funkcjonowania

✔  Dla osób pracujących z domu,  ceniących ciszę, kameralną zabudowę oraz nowoczesne rozwiązania techniczne, takie jak ogrzewanie podłogowe i klimatyzacja

✔ Dla wymagających,  którzy szukają nieruchomości wykończonej i gotowej do zamieszkania - bez konieczności dodatkowych prac

Zadzwoń i umów się  na oglądanie,Chętnie przekażę dodatkowe informacje i zaplanuję prezentację nieruchomości


MALADA Home- nowoczesne pośrednictwo. Sprawdź nas :)


Numer oferty: 5260369
Nr licencji zawodowej: 23946

Statystyki ogłoszenia:

oko

Podobne nieruchomości