Sprawdź wszystkie oferty w tej inwestycji >>>

Szczegóły oferty 7-A019 Data dodania: 29 dni temu

Informacje dodatkowe:
plac zabaw, miejsce naziemne, wózkarnia, stacja ładowania pojazdów, winda, przyłącze telefoniczne, stojaki rowerowe, przyłącze internetowe, ochrona, przyłącze telewizyjne, usługi w budynku, teren strzeżony, garaż
Okolica:
szkoła, park / las, tramwaj, przychodnia / szpital, centrum handlowe, poczta, sklep spożywczy, dworzec kolejowy, przedszkole, autobus, plac zabaw, apteka, policja, żłobek

Lokalizacja

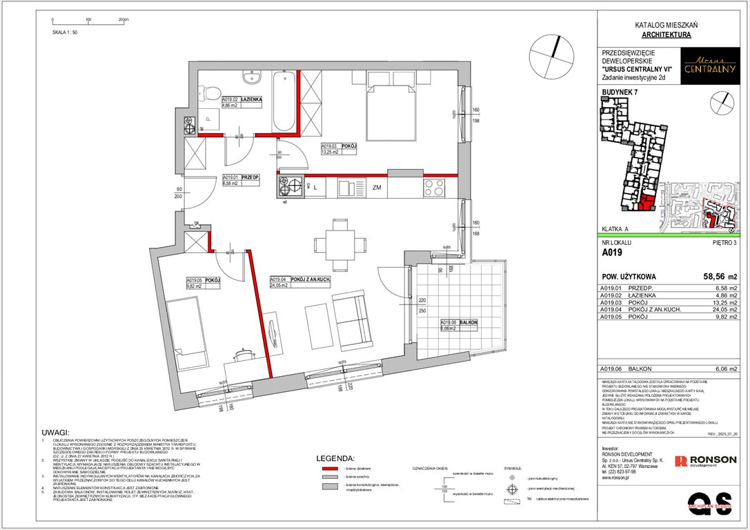
Warszawa, Ursus, ul. Gierdziejewskiego 23

Dni otwarte

Dzień otwarty: 

 

Mikołajkowy Dzień Otwarty – 6 grudnia, godz. 10:00–14:00. 

 

Zapraszamy do biura sprzedaży przy ul. Gierdziejewskiego 23.

 

Promocja: 2 pokoje już od 569 tys. zł. Harmonogram płatności 20/80.

 

Opis oferty

Osiedle Ursus Centralny jest wiodącą inwestycją na mapie Ursusa. To tu powstaje ponad 1500 mieszkań, a wraz z nimi pełna infrastruktura handlowo-usługowa.  Osiedle zlokalizowane jest w świetnej lokalizacji - blisko do stacji SKM oraz Eko Parku - edukacyjnego parku dla każdego. Projekt już zyskał status bestsellera, dzięki zaufaniu ponad 1000 rodzin, które obecnie mieszkają na osiedlu. W obecnym momencie trwa budowa 6, ostatniego etapu inwestycji. Centralnym punktem osiedla jest Bulwar Atrakcji – przestrzeń, w której życie osiedla koncentruje się wokół relaksu, rozrywki i codziennych usług. Znajdziemy tu liczne strefy relaksu, strefy fitness, place zabaw czy oczka wodne, wszystko to skąpane w różnorodnej zieleni. Poznaj największy hit w portfolio RONSON Development.
Numer oferty: 7-A019

Statystyki ogłoszenia:

oko

Inne mieszkania dostępne w tej inwestycji

Filtruj oferty x Resetuj filtry
-
-
-
Rzut
Nr ref.
Piętro
Pokoje
Powierzchnia Pow.
Cena
10-A05 1 3 61,97 m2 Zapytaj o cenę URSUS CENTRALNY - 10-A05 - Warszawa, Ursus, Gierdziejewskiego 23, 61.97m2
10-A07 1 2 46,70 m2 Zapytaj o cenę URSUS CENTRALNY - 10-A07 - Warszawa, Ursus, Gierdziejewskiego 23, 46.7m2
10-A08 1 3 55,93 m2 Zapytaj o cenę URSUS CENTRALNY - 10-A08 - Warszawa, Ursus, Gierdziejewskiego 23, 55.93m2
10-A09 2 3 61,97 m2 Zapytaj o cenę URSUS CENTRALNY - 10-A09 - Warszawa, Ursus, Gierdziejewskiego 23, 61.97m2
10-A12 2 3 55,93 m2 Zapytaj o cenę URSUS CENTRALNY - 10-A12 - Warszawa, Ursus, Gierdziejewskiego 23, 55.93m2
10-A13 3 3 61,97 m2 Zapytaj o cenę URSUS CENTRALNY - 10-A13 - Warszawa, Ursus, Gierdziejewskiego 23, 61.97m2
10-A15 3 2 46,70 m2 Zapytaj o cenę URSUS CENTRALNY - 10-A15 - Warszawa, Ursus, Gierdziejewskiego 23, 46.7m2
10-A16 3 3 55,93 m2 Zapytaj o cenę URSUS CENTRALNY - 10-A16 - Warszawa, Ursus, Gierdziejewskiego 23, 55.93m2
10-A17 4 3 61,97 m2 Zapytaj o cenę URSUS CENTRALNY - 10-A17 - Warszawa, Ursus, Gierdziejewskiego 23, 61.97m2
10-A19 4 2 46,70 m2 Zapytaj o cenę URSUS CENTRALNY - 10-A19 - Warszawa, Ursus, Gierdziejewskiego 23, 46.7m2
10-A20 4 3 55,93 m2 Zapytaj o cenę URSUS CENTRALNY - 10-A20 - Warszawa, Ursus, Gierdziejewskiego 23, 55.93m2
10-B21 0 3 60,77 m2 Zapytaj o cenę URSUS CENTRALNY - 10-B21 - Warszawa, Ursus, Gierdziejewskiego 23, 60.77m2
10-B22 0 2 47,01 m2 Zapytaj o cenę URSUS CENTRALNY - 10-B22 - Warszawa, Ursus, Gierdziejewskiego 23, 47.01m2
10-B23 0 2 46,72 m2 Zapytaj o cenę URSUS CENTRALNY - 10-B23 - Warszawa, Ursus, Gierdziejewskiego 23, 46.72m2
10-B24 1 3 60,89 m2 Zapytaj o cenę URSUS CENTRALNY - 10-B24 - Warszawa, Ursus, Gierdziejewskiego 23, 60.89m2
10-B25 1 2 47,04 m2 Zapytaj o cenę URSUS CENTRALNY - 10-B25 - Warszawa, Ursus, Gierdziejewskiego 23, 47.04m2
10-B26 1 3 63,37 m2 Zapytaj o cenę URSUS CENTRALNY - 10-B26 - Warszawa, Ursus, Gierdziejewskiego 23, 63.37m2
10-B27 2 3 60,89 m2 Zapytaj o cenę URSUS CENTRALNY - 10-B27 - Warszawa, Ursus, Gierdziejewskiego 23, 60.89m2
10-B28 2 2 47,04 m2 Zapytaj o cenę URSUS CENTRALNY - 10-B28 - Warszawa, Ursus, Gierdziejewskiego 23, 47.04m2
10-B29 2 3 63,37 m2 Zapytaj o cenę URSUS CENTRALNY - 10-B29 - Warszawa, Ursus, Gierdziejewskiego 23, 63.37m2
10-B30 3 3 60,89 m2 Zapytaj o cenę URSUS CENTRALNY - 10-B30 - Warszawa, Ursus, Gierdziejewskiego 23, 60.89m2
10-B31 3 2 47,04 m2 Zapytaj o cenę URSUS CENTRALNY - 10-B31 - Warszawa, Ursus, Gierdziejewskiego 23, 47.04m2
10-B34 4 2 46,90 m2 Zapytaj o cenę URSUS CENTRALNY - 10-B34 - Warszawa, Ursus, Gierdziejewskiego 23, 46.9m2
10-C40 0 2 45,79 m2 Zapytaj o cenę URSUS CENTRALNY - 10-C40 - Warszawa, Ursus, Gierdziejewskiego 23, 45.79m2
10-C41 0 2 43,77 m2 Zapytaj o cenę URSUS CENTRALNY - 10-C41 - Warszawa, Ursus, Gierdziejewskiego 23, 43.77m2
10-C43 1 3 64,73 m2 Zapytaj o cenę URSUS CENTRALNY - 10-C43 - Warszawa, Ursus, Gierdziejewskiego 23, 64.73m2
10-C44 1 4 82,13 m2 Zapytaj o cenę URSUS CENTRALNY - 10-C44 - Warszawa, Ursus, Gierdziejewskiego 23, 82.13m2
10-C47 1 3 57,19 m2 Zapytaj o cenę URSUS CENTRALNY - 10-C47 - Warszawa, Ursus, Gierdziejewskiego 23, 57.19m2
10-C48 2 3 64,73 m2 Zapytaj o cenę URSUS CENTRALNY - 10-C48 - Warszawa, Ursus, Gierdziejewskiego 23, 64.73m2
10-C49 2 4 82,13 m2 Zapytaj o cenę URSUS CENTRALNY - 10-C49 - Warszawa, Ursus, Gierdziejewskiego 23, 82.13m2
10-C52 2 3 57,19 m2 Zapytaj o cenę URSUS CENTRALNY - 10-C52 - Warszawa, Ursus, Gierdziejewskiego 23, 57.19m2
10-C53 3 3 64,73 m2 Zapytaj o cenę URSUS CENTRALNY - 10-C53 - Warszawa, Ursus, Gierdziejewskiego 23, 64.73m2
10-C54 3 4 82,13 m2 Zapytaj o cenę URSUS CENTRALNY - 10-C54 - Warszawa, Ursus, Gierdziejewskiego 23, 82.13m2
10-C55 3 2 45,84 m2 Zapytaj o cenę URSUS CENTRALNY - 10-C55 - Warszawa, Ursus, Gierdziejewskiego 23, 45.84m2
10-C56 3 2 43,81 m2 Zapytaj o cenę URSUS CENTRALNY - 10-C56 - Warszawa, Ursus, Gierdziejewskiego 23, 43.81m2
10-C57 3 3 57,19 m2 Zapytaj o cenę URSUS CENTRALNY - 10-C57 - Warszawa, Ursus, Gierdziejewskiego 23, 57.19m2
10-C58 4 3 64,73 m2 Zapytaj o cenę URSUS CENTRALNY - 10-C58 - Warszawa, Ursus, Gierdziejewskiego 23, 64.73m2
10-C59 4 4 82,13 m2 Zapytaj o cenę URSUS CENTRALNY - 10-C59 - Warszawa, Ursus, Gierdziejewskiego 23, 82.13m2
10-C60 4 2 45,84 m2 Zapytaj o cenę URSUS CENTRALNY - 10-C60 - Warszawa, Ursus, Gierdziejewskiego 23, 45.84m2
10-C61 4 2 43,81 m2 Zapytaj o cenę URSUS CENTRALNY - 10-C61 - Warszawa, Ursus, Gierdziejewskiego 23, 43.81m2
10-C63 5 3 64,73 m2 Zapytaj o cenę URSUS CENTRALNY - 10-C63 - Warszawa, Ursus, Gierdziejewskiego 23, 64.73m2
10-C65 5 2 45,84 m2 Zapytaj o cenę URSUS CENTRALNY - 10-C65 - Warszawa, Ursus, Gierdziejewskiego 23, 45.84m2
10-C69 6 3 64,78 m2 Zapytaj o cenę URSUS CENTRALNY - 10-C69 - Warszawa, Ursus, Gierdziejewskiego 23, 64.78m2
10-C70 6 2 45,84 m2 Zapytaj o cenę URSUS CENTRALNY - 10-C70 - Warszawa, Ursus, Gierdziejewskiego 23, 45.84m2
10-C71 6 2 43,81 m2 Zapytaj o cenę URSUS CENTRALNY - 10-C71 - Warszawa, Ursus, Gierdziejewskiego 23, 43.81m2
11-B037 1 3 60,92 m2 Zapytaj o cenę URSUS CENTRALNY - 11-B037 - Warszawa, Ursus, Gierdziejewskiego 23, 60.92m2
11-B061 7 3 60,77 m2 Zapytaj o cenę URSUS CENTRALNY - 11-B061 - Warszawa, Ursus, Gierdziejewskiego 23, 60.77m2
7-A002 0 2 42,72 m2 Zapytaj o cenę URSUS CENTRALNY - 7-A002 - Warszawa, Ursus, Gierdziejewskiego 23, 42.72m2
7-A003 0 2 37,97 m2 Zapytaj o cenę URSUS CENTRALNY - 7-A003 - Warszawa, Ursus, Gierdziejewskiego 23, 37.97m2
7-A007 1 3 58,56 m2 Zapytaj o cenę URSUS CENTRALNY - 7-A007 - Warszawa, Ursus, Gierdziejewskiego 23, 58.56m2
7-A008 1 3 62,26 m2 Zapytaj o cenę URSUS CENTRALNY - 7-A008 - Warszawa, Ursus, Gierdziejewskiego 23, 62.26m2
7-A011 2 2 44,90 m2 Zapytaj o cenę URSUS CENTRALNY - 7-A011 - Warszawa, Ursus, Gierdziejewskiego 23, 44.9m2
7-A013 2 3 58,56 m2 Zapytaj o cenę URSUS CENTRALNY - 7-A013 - Warszawa, Ursus, Gierdziejewskiego 23, 58.56m2
7-A023 4 2 44,90 m2 Zapytaj o cenę URSUS CENTRALNY - 7-A023 - Warszawa, Ursus, Gierdziejewskiego 23, 44.9m2
7-A025 4 3 58,56 m2 Zapytaj o cenę URSUS CENTRALNY - 7-A025 - Warszawa, Ursus, Gierdziejewskiego 23, 58.56m2
7-A026 4 3 60,11 m2 Zapytaj o cenę URSUS CENTRALNY - 7-A026 - Warszawa, Ursus, Gierdziejewskiego 23, 60.11m2
7-A029 5 2 44,90 m2 Zapytaj o cenę URSUS CENTRALNY - 7-A029 - Warszawa, Ursus, Gierdziejewskiego 23, 44.9m2
7-A031 5 3 58,56 m2 Zapytaj o cenę URSUS CENTRALNY - 7-A031 - Warszawa, Ursus, Gierdziejewskiego 23, 58.56m2
7-A035 6 2 44,90 m2 Zapytaj o cenę URSUS CENTRALNY - 7-A035 - Warszawa, Ursus, Gierdziejewskiego 23, 44.9m2
7-A037 6 3 58,56 m2 Zapytaj o cenę URSUS CENTRALNY - 7-A037 - Warszawa, Ursus, Gierdziejewskiego 23, 58.56m2
7-A041 7 2 44,90 m2 Zapytaj o cenę URSUS CENTRALNY - 7-A041 - Warszawa, Ursus, Gierdziejewskiego 23, 44.9m2
7-A048 0 2 44,84 m2 Zapytaj o cenę URSUS CENTRALNY - 7-A048 - Warszawa, Ursus, Gierdziejewskiego 23, 44.84m2
7-A049 0 2 42,67 m2 Zapytaj o cenę URSUS CENTRALNY - 7-A049 - Warszawa, Ursus, Gierdziejewskiego 23, 42.67m2
7-A054 1 2 44,91 m2 Zapytaj o cenę URSUS CENTRALNY - 7-A054 - Warszawa, Ursus, Gierdziejewskiego 23, 44.91m2
7-A055 1 2 41,87 m2 Zapytaj o cenę URSUS CENTRALNY - 7-A055 - Warszawa, Ursus, Gierdziejewskiego 23, 41.87m2
7-A060 2 2 44,91 m2 Zapytaj o cenę URSUS CENTRALNY - 7-A060 - Warszawa, Ursus, Gierdziejewskiego 23, 44.91m2
7-A061 2 2 43,76 m2 Zapytaj o cenę URSUS CENTRALNY - 7-A061 - Warszawa, Ursus, Gierdziejewskiego 23, 43.76m2
7-A073 4 2 43,76 m2 Zapytaj o cenę URSUS CENTRALNY - 7-A073 - Warszawa, Ursus, Gierdziejewskiego 23, 43.76m2
7-A078 5 2 44,91 m2 Zapytaj o cenę URSUS CENTRALNY - 7-A078 - Warszawa, Ursus, Gierdziejewskiego 23, 44.91m2
7-A084 6 2 44,91 m2 Zapytaj o cenę URSUS CENTRALNY - 7-A084 - Warszawa, Ursus, Gierdziejewskiego 23, 44.91m2
7-A085 6 2 43,76 m2 Zapytaj o cenę URSUS CENTRALNY - 7-A085 - Warszawa, Ursus, Gierdziejewskiego 23, 43.76m2
7-A090 7 2 44,91 m2 Zapytaj o cenę URSUS CENTRALNY - 7-A090 - Warszawa, Ursus, Gierdziejewskiego 23, 44.91m2
7-A091 7 2 43,76 m2 Zapytaj o cenę URSUS CENTRALNY - 7-A091 - Warszawa, Ursus, Gierdziejewskiego 23, 43.76m2
7-A093 7 2 36,65 m2 Zapytaj o cenę URSUS CENTRALNY - 7-A093 - Warszawa, Ursus, Gierdziejewskiego 23, 36.65m2
7-B094 0 3 58,33 m2 Zapytaj o cenę URSUS CENTRALNY - 7-B094 - Warszawa, Ursus, Gierdziejewskiego 23, 58.33m2
7-B096 0 2 38,04 m2 Zapytaj o cenę URSUS CENTRALNY - 7-B096 - Warszawa, Ursus, Gierdziejewskiego 23, 38.04m2
7-B099 1 3 58,42 m2 Zapytaj o cenę URSUS CENTRALNY - 7-B099 - Warszawa, Ursus, Gierdziejewskiego 23, 58.42m2
7-B104 2 3 58,42 m2 Zapytaj o cenę URSUS CENTRALNY - 7-B104 - Warszawa, Ursus, Gierdziejewskiego 23, 58.42m2
7-B109 3 3 58,42 m2 Zapytaj o cenę URSUS CENTRALNY - 7-B109 - Warszawa, Ursus, Gierdziejewskiego 23, 58.42m2
7-B110 3 2 45,37 m2 Zapytaj o cenę URSUS CENTRALNY - 7-B110 - Warszawa, Ursus, Gierdziejewskiego 23, 45.37m2
7-B114 4 3 58,42 m2 Zapytaj o cenę URSUS CENTRALNY - 7-B114 - Warszawa, Ursus, Gierdziejewskiego 23, 58.42m2
7-B119 5 3 58,42 m2 Zapytaj o cenę URSUS CENTRALNY - 7-B119 - Warszawa, Ursus, Gierdziejewskiego 23, 58.42m2
7-B120 5 2 45,37 m2 Zapytaj o cenę URSUS CENTRALNY - 7-B120 - Warszawa, Ursus, Gierdziejewskiego 23, 45.37m2
7-B122 6 3 58,42 m2 Zapytaj o cenę URSUS CENTRALNY - 7-B122 - Warszawa, Ursus, Gierdziejewskiego 23, 58.42m2
7-B125 7 3 58,42 m2 Zapytaj o cenę URSUS CENTRALNY - 7-B125 - Warszawa, Ursus, Gierdziejewskiego 23, 58.42m2
8-A003 1 3 59,75 m2 Zapytaj o cenę URSUS CENTRALNY - 8-A003 - Warszawa, Ursus, Gierdziejewskiego 23, 59.75m2
8-A004 1 2 41,65 m2 Zapytaj o cenę URSUS CENTRALNY - 8-A004 - Warszawa, Ursus, Gierdziejewskiego 23, 41.65m2
8-A005 1 2 48,83 m2 Zapytaj o cenę URSUS CENTRALNY - 8-A005 - Warszawa, Ursus, Gierdziejewskiego 23, 48.83m2
8-A007 1 3 56,51 m2 Zapytaj o cenę URSUS CENTRALNY - 8-A007 - Warszawa, Ursus, Gierdziejewskiego 23, 56.51m2
8-A008 2 3 59,75 m2 Zapytaj o cenę URSUS CENTRALNY - 8-A008 - Warszawa, Ursus, Gierdziejewskiego 23, 59.75m2
8-A010 2 2 48,83 m2 Zapytaj o cenę URSUS CENTRALNY - 8-A010 - Warszawa, Ursus, Gierdziejewskiego 23, 48.83m2
8-A013 3 3 59,75 m2 Zapytaj o cenę URSUS CENTRALNY - 8-A013 - Warszawa, Ursus, Gierdziejewskiego 23, 59.75m2
8-A014 3 2 41,65 m2 Zapytaj o cenę URSUS CENTRALNY - 8-A014 - Warszawa, Ursus, Gierdziejewskiego 23, 41.65m2
8-A018 4 3 59,75 m2 Zapytaj o cenę URSUS CENTRALNY - 8-A018 - Warszawa, Ursus, Gierdziejewskiego 23, 59.75m2
8-A020 4 2 48,83 m2 Zapytaj o cenę URSUS CENTRALNY - 8-A020 - Warszawa, Ursus, Gierdziejewskiego 23, 48.83m2
8-A023 5 3 59,75 m2 Zapytaj o cenę URSUS CENTRALNY - 8-A023 - Warszawa, Ursus, Gierdziejewskiego 23, 59.75m2
8-A027 5 3 56,51 m2 Zapytaj o cenę URSUS CENTRALNY - 8-A027 - Warszawa, Ursus, Gierdziejewskiego 23, 56.51m2
8-A028 6 3 59,75 m2 Zapytaj o cenę URSUS CENTRALNY - 8-A028 - Warszawa, Ursus, Gierdziejewskiego 23, 59.75m2
8-A029 6 2 41,65 m2 Zapytaj o cenę URSUS CENTRALNY - 8-A029 - Warszawa, Ursus, Gierdziejewskiego 23, 41.65m2
8-A033 7 3 59,75 m2 Zapytaj o cenę URSUS CENTRALNY - 8-A033 - Warszawa, Ursus, Gierdziejewskiego 23, 59.75m2
8-A035 7 2 48,83 m2 Zapytaj o cenę URSUS CENTRALNY - 8-A035 - Warszawa, Ursus, Gierdziejewskiego 23, 48.83m2
8-B038 1 3 61 m2 Zapytaj o cenę URSUS CENTRALNY - 8-B038 - Warszawa, Ursus, Gierdziejewskiego 23, 61m2
8-B039 1 2 45,32 m2 Zapytaj o cenę URSUS CENTRALNY - 8-B039 - Warszawa, Ursus, Gierdziejewskiego 23, 45.32m2
8-B040 1 3 61,61 m2 Zapytaj o cenę URSUS CENTRALNY - 8-B040 - Warszawa, Ursus, Gierdziejewskiego 23, 61.61m2
8-B042 2 2 45,32 m2 Zapytaj o cenę URSUS CENTRALNY - 8-B042 - Warszawa, Ursus, Gierdziejewskiego 23, 45.32m2
8-B043 2 3 61,61 m2 Zapytaj o cenę URSUS CENTRALNY - 8-B043 - Warszawa, Ursus, Gierdziejewskiego 23, 61.61m2
8-B045 3 2 45,32 m2 Zapytaj o cenę URSUS CENTRALNY - 8-B045 - Warszawa, Ursus, Gierdziejewskiego 23, 45.32m2
8-B046 3 3 61,61 m2 Zapytaj o cenę URSUS CENTRALNY - 8-B046 - Warszawa, Ursus, Gierdziejewskiego 23, 61.61m2
8-B047 4 3 61 m2 Zapytaj o cenę URSUS CENTRALNY - 8-B047 - Warszawa, Ursus, Gierdziejewskiego 23, 61m2
8-B048 4 2 45,32 m2 Zapytaj o cenę URSUS CENTRALNY - 8-B048 - Warszawa, Ursus, Gierdziejewskiego 23, 45.32m2
8-B049 4 3 61,61 m2 Zapytaj o cenę URSUS CENTRALNY - 8-B049 - Warszawa, Ursus, Gierdziejewskiego 23, 61.61m2
8-B050 5 3 61 m2 Zapytaj o cenę URSUS CENTRALNY - 8-B050 - Warszawa, Ursus, Gierdziejewskiego 23, 61m2
8-B051 5 2 45,32 m2 Zapytaj o cenę URSUS CENTRALNY - 8-B051 - Warszawa, Ursus, Gierdziejewskiego 23, 45.32m2
8-B052 5 3 61,61 m2 Zapytaj o cenę URSUS CENTRALNY - 8-B052 - Warszawa, Ursus, Gierdziejewskiego 23, 61.61m2
8-B053 6 3 61 m2 Zapytaj o cenę URSUS CENTRALNY - 8-B053 - Warszawa, Ursus, Gierdziejewskiego 23, 61m2
8-B054 6 2 45,32 m2 Zapytaj o cenę URSUS CENTRALNY - 8-B054 - Warszawa, Ursus, Gierdziejewskiego 23, 45.32m2
8-B055 6 3 61,61 m2 Zapytaj o cenę URSUS CENTRALNY - 8-B055 - Warszawa, Ursus, Gierdziejewskiego 23, 61.61m2
8-B056 7 3 61 m2 Zapytaj o cenę URSUS CENTRALNY - 8-B056 - Warszawa, Ursus, Gierdziejewskiego 23, 61m2
8-B057 7 2 45,32 m2 Zapytaj o cenę URSUS CENTRALNY - 8-B057 - Warszawa, Ursus, Gierdziejewskiego 23, 45.32m2
8-B058 7 3 61,61 m2 Zapytaj o cenę URSUS CENTRALNY - 8-B058 - Warszawa, Ursus, Gierdziejewskiego 23, 61.61m2
9-A002 1 2 43,94 m2 Zapytaj o cenę URSUS CENTRALNY - 9-A002 - Warszawa, Ursus, Gierdziejewskiego 23, 43.94m2
9-A003 1 3 67,51 m2 Zapytaj o cenę URSUS CENTRALNY - 9-A003 - Warszawa, Ursus, Gierdziejewskiego 23, 67.51m2
9-A004 1 3 64,34 m2 Zapytaj o cenę URSUS CENTRALNY - 9-A004 - Warszawa, Ursus, Gierdziejewskiego 23, 64.34m2
9-A005 1 2 45,51 m2 Zapytaj o cenę URSUS CENTRALNY - 9-A005 - Warszawa, Ursus, Gierdziejewskiego 23, 45.51m2
9-A006 2 2 43,94 m2 Zapytaj o cenę URSUS CENTRALNY - 9-A006 - Warszawa, Ursus, Gierdziejewskiego 23, 43.94m2
9-A007 2 3 67,52 m2 Zapytaj o cenę URSUS CENTRALNY - 9-A007 - Warszawa, Ursus, Gierdziejewskiego 23, 67.52m2
9-A008 2 3 64,35 m2 Zapytaj o cenę URSUS CENTRALNY - 9-A008 - Warszawa, Ursus, Gierdziejewskiego 23, 64.35m2
9-A009 2 2 45,51 m2 Zapytaj o cenę URSUS CENTRALNY - 9-A009 - Warszawa, Ursus, Gierdziejewskiego 23, 45.51m2
9-A010 3 2 43,94 m2 Zapytaj o cenę URSUS CENTRALNY - 9-A010 - Warszawa, Ursus, Gierdziejewskiego 23, 43.94m2
9-A011 3 3 67,52 m2 Zapytaj o cenę URSUS CENTRALNY - 9-A011 - Warszawa, Ursus, Gierdziejewskiego 23, 67.52m2
9-A012 3 3 64,35 m2 Zapytaj o cenę URSUS CENTRALNY - 9-A012 - Warszawa, Ursus, Gierdziejewskiego 23, 64.35m2
9-A015 4 3 67,52 m2 Zapytaj o cenę URSUS CENTRALNY - 9-A015 - Warszawa, Ursus, Gierdziejewskiego 23, 67.52m2
9-A017 4 2 45,51 m2 Zapytaj o cenę URSUS CENTRALNY - 9-A017 - Warszawa, Ursus, Gierdziejewskiego 23, 45.51m2
9-A018 5 2 43,94 m2 Zapytaj o cenę URSUS CENTRALNY - 9-A018 - Warszawa, Ursus, Gierdziejewskiego 23, 43.94m2
9-A021 5 2 45,48 m2 Zapytaj o cenę URSUS CENTRALNY - 9-A021 - Warszawa, Ursus, Gierdziejewskiego 23, 45.48m2
9-A022 6 2 43,94 m2 Zapytaj o cenę URSUS CENTRALNY - 9-A022 - Warszawa, Ursus, Gierdziejewskiego 23, 43.94m2
9-A025 7 2 43,94 m2 Zapytaj o cenę URSUS CENTRALNY - 9-A025 - Warszawa, Ursus, Gierdziejewskiego 23, 43.94m2
9-B028 0 2 43,64 m2 Zapytaj o cenę URSUS CENTRALNY - 9-B028 - Warszawa, Ursus, Gierdziejewskiego 23, 43.64m2
9-B029 0 2 44,81 m2 Zapytaj o cenę URSUS CENTRALNY - 9-B029 - Warszawa, Ursus, Gierdziejewskiego 23, 44.81m2
9-B030 0 2 37,69 m2 Zapytaj o cenę URSUS CENTRALNY - 9-B030 - Warszawa, Ursus, Gierdziejewskiego 23, 37.69m2
9-B032 1 2 45,90 m2 Zapytaj o cenę URSUS CENTRALNY - 9-B032 - Warszawa, Ursus, Gierdziejewskiego 23, 45.9m2
9-B033 1 2 42,36 m2 Zapytaj o cenę URSUS CENTRALNY - 9-B033 - Warszawa, Ursus, Gierdziejewskiego 23, 42.36m2
9-B034 1 2 43,72 m2 Zapytaj o cenę URSUS CENTRALNY - 9-B034 - Warszawa, Ursus, Gierdziejewskiego 23, 43.72m2
9-B036 1 4 74,64 m2 Zapytaj o cenę URSUS CENTRALNY - 9-B036 - Warszawa, Ursus, Gierdziejewskiego 23, 74.64m2
9-B037 1 3 62,20 m2 Zapytaj o cenę URSUS CENTRALNY - 9-B037 - Warszawa, Ursus, Gierdziejewskiego 23, 62.2m2
9-B038 1 2 45,98 m2 Zapytaj o cenę URSUS CENTRALNY - 9-B038 - Warszawa, Ursus, Gierdziejewskiego 23, 45.98m2
9-B039 1 2 48,51 m2 Zapytaj o cenę URSUS CENTRALNY - 9-B039 - Warszawa, Ursus, Gierdziejewskiego 23, 48.51m2
9-B040 1 2 45,30 m2 Zapytaj o cenę URSUS CENTRALNY - 9-B040 - Warszawa, Ursus, Gierdziejewskiego 23, 45.3m2
9-B041 2 2 45,90 m2 Zapytaj o cenę URSUS CENTRALNY - 9-B041 - Warszawa, Ursus, Gierdziejewskiego 23, 45.9m2
9-B042 2 2 42,36 m2 Zapytaj o cenę URSUS CENTRALNY - 9-B042 - Warszawa, Ursus, Gierdziejewskiego 23, 42.36m2
9-B043 2 2 43,72 m2 Zapytaj o cenę URSUS CENTRALNY - 9-B043 - Warszawa, Ursus, Gierdziejewskiego 23, 43.72m2
9-B045 2 4 74,64 m2 Zapytaj o cenę URSUS CENTRALNY - 9-B045 - Warszawa, Ursus, Gierdziejewskiego 23, 74.64m2
9-B047 2 2 45,98 m2 Zapytaj o cenę URSUS CENTRALNY - 9-B047 - Warszawa, Ursus, Gierdziejewskiego 23, 45.98m2
9-B048 2 2 48,51 m2 Zapytaj o cenę URSUS CENTRALNY - 9-B048 - Warszawa, Ursus, Gierdziejewskiego 23, 48.51m2
9-B049 2 2 45,30 m2 Zapytaj o cenę URSUS CENTRALNY - 9-B049 - Warszawa, Ursus, Gierdziejewskiego 23, 45.3m2
9-B050 3 2 45,90 m2 Zapytaj o cenę URSUS CENTRALNY - 9-B050 - Warszawa, Ursus, Gierdziejewskiego 23, 45.9m2
9-B051 3 2 42,36 m2 Zapytaj o cenę URSUS CENTRALNY - 9-B051 - Warszawa, Ursus, Gierdziejewskiego 23, 42.36m2
9-B052 3 2 43,72 m2 Zapytaj o cenę URSUS CENTRALNY - 9-B052 - Warszawa, Ursus, Gierdziejewskiego 23, 43.72m2
9-B054 3 4 74,64 m2 Zapytaj o cenę URSUS CENTRALNY - 9-B054 - Warszawa, Ursus, Gierdziejewskiego 23, 74.64m2
9-B055 3 3 62,20 m2 Zapytaj o cenę URSUS CENTRALNY - 9-B055 - Warszawa, Ursus, Gierdziejewskiego 23, 62.2m2
9-B056 3 2 45,98 m2 Zapytaj o cenę URSUS CENTRALNY - 9-B056 - Warszawa, Ursus, Gierdziejewskiego 23, 45.98m2
9-B057 3 2 48,51 m2 Zapytaj o cenę URSUS CENTRALNY - 9-B057 - Warszawa, Ursus, Gierdziejewskiego 23, 48.51m2
9-B058 3 2 45,30 m2 Zapytaj o cenę URSUS CENTRALNY - 9-B058 - Warszawa, Ursus, Gierdziejewskiego 23, 45.3m2
9-B059 4 2 45,90 m2 Zapytaj o cenę URSUS CENTRALNY - 9-B059 - Warszawa, Ursus, Gierdziejewskiego 23, 45.9m2
9-B060 4 2 42,36 m2 Zapytaj o cenę URSUS CENTRALNY - 9-B060 - Warszawa, Ursus, Gierdziejewskiego 23, 42.36m2
9-B061 4 2 43,72 m2 Zapytaj o cenę URSUS CENTRALNY - 9-B061 - Warszawa, Ursus, Gierdziejewskiego 23, 43.72m2
9-B063 4 4 74,64 m2 Zapytaj o cenę URSUS CENTRALNY - 9-B063 - Warszawa, Ursus, Gierdziejewskiego 23, 74.64m2
9-B064 4 3 62,20 m2 Zapytaj o cenę URSUS CENTRALNY - 9-B064 - Warszawa, Ursus, Gierdziejewskiego 23, 62.2m2
9-B065 4 2 45,98 m2 Zapytaj o cenę URSUS CENTRALNY - 9-B065 - Warszawa, Ursus, Gierdziejewskiego 23, 45.98m2
9-B066 4 2 48,51 m2 Zapytaj o cenę URSUS CENTRALNY - 9-B066 - Warszawa, Ursus, Gierdziejewskiego 23, 48.51m2
9-B067 4 2 45,30 m2 Zapytaj o cenę URSUS CENTRALNY - 9-B067 - Warszawa, Ursus, Gierdziejewskiego 23, 45.3m2
9-B068 5 2 45,90 m2 Zapytaj o cenę URSUS CENTRALNY - 9-B068 - Warszawa, Ursus, Gierdziejewskiego 23, 45.9m2
9-B069 5 2 42,36 m2 Zapytaj o cenę URSUS CENTRALNY - 9-B069 - Warszawa, Ursus, Gierdziejewskiego 23, 42.36m2
9-B070 5 2 43,72 m2 Zapytaj o cenę URSUS CENTRALNY - 9-B070 - Warszawa, Ursus, Gierdziejewskiego 23, 43.72m2
9-B072 5 4 74,64 m2 Zapytaj o cenę URSUS CENTRALNY - 9-B072 - Warszawa, Ursus, Gierdziejewskiego 23, 74.64m2
9-B073 5 3 62,20 m2 Zapytaj o cenę URSUS CENTRALNY - 9-B073 - Warszawa, Ursus, Gierdziejewskiego 23, 62.2m2
9-B074 5 2 45,98 m2 Zapytaj o cenę URSUS CENTRALNY - 9-B074 - Warszawa, Ursus, Gierdziejewskiego 23, 45.98m2
9-B075 5 2 48,51 m2 Zapytaj o cenę URSUS CENTRALNY - 9-B075 - Warszawa, Ursus, Gierdziejewskiego 23, 48.51m2
9-B076 5 2 45,30 m2 Zapytaj o cenę URSUS CENTRALNY - 9-B076 - Warszawa, Ursus, Gierdziejewskiego 23, 45.3m2
9-B077 6 2 45,90 m2 Zapytaj o cenę URSUS CENTRALNY - 9-B077 - Warszawa, Ursus, Gierdziejewskiego 23, 45.9m2
9-B078 6 2 42,36 m2 Zapytaj o cenę URSUS CENTRALNY - 9-B078 - Warszawa, Ursus, Gierdziejewskiego 23, 42.36m2
9-B079 6 2 43,72 m2 Zapytaj o cenę URSUS CENTRALNY - 9-B079 - Warszawa, Ursus, Gierdziejewskiego 23, 43.72m2
9-B082 6 3 62,20 m2 Zapytaj o cenę URSUS CENTRALNY - 9-B082 - Warszawa, Ursus, Gierdziejewskiego 23, 62.2m2
9-B083 6 2 45,98 m2 Zapytaj o cenę URSUS CENTRALNY - 9-B083 - Warszawa, Ursus, Gierdziejewskiego 23, 45.98m2
9-B084 6 2 48,51 m2 Zapytaj o cenę URSUS CENTRALNY - 9-B084 - Warszawa, Ursus, Gierdziejewskiego 23, 48.51m2
9-B085 6 2 45,30 m2 Zapytaj o cenę URSUS CENTRALNY - 9-B085 - Warszawa, Ursus, Gierdziejewskiego 23, 45.3m2
9-B086 7 2 45,90 m2 Zapytaj o cenę URSUS CENTRALNY - 9-B086 - Warszawa, Ursus, Gierdziejewskiego 23, 45.9m2
9-B087 7 2 42,36 m2 Zapytaj o cenę URSUS CENTRALNY - 9-B087 - Warszawa, Ursus, Gierdziejewskiego 23, 42.36m2
9-B088 7 2 43,72 m2 Zapytaj o cenę URSUS CENTRALNY - 9-B088 - Warszawa, Ursus, Gierdziejewskiego 23, 43.72m2
9-B090 7 4 74,64 m2 Zapytaj o cenę URSUS CENTRALNY - 9-B090 - Warszawa, Ursus, Gierdziejewskiego 23, 74.64m2
9-B091 7 3 62,20 m2 Zapytaj o cenę URSUS CENTRALNY - 9-B091 - Warszawa, Ursus, Gierdziejewskiego 23, 62.2m2
9-B092 7 2 46,08 m2 Zapytaj o cenę URSUS CENTRALNY - 9-B092 - Warszawa, Ursus, Gierdziejewskiego 23, 46.08m2
9-B093 7 2 48,51 m2 Zapytaj o cenę URSUS CENTRALNY - 9-B093 - Warszawa, Ursus, Gierdziejewskiego 23, 48.51m2
9-B094 7 2 45,30 m2 Zapytaj o cenę URSUS CENTRALNY - 9-B094 - Warszawa, Ursus, Gierdziejewskiego 23, 45.3m2

Podobne nieruchomości