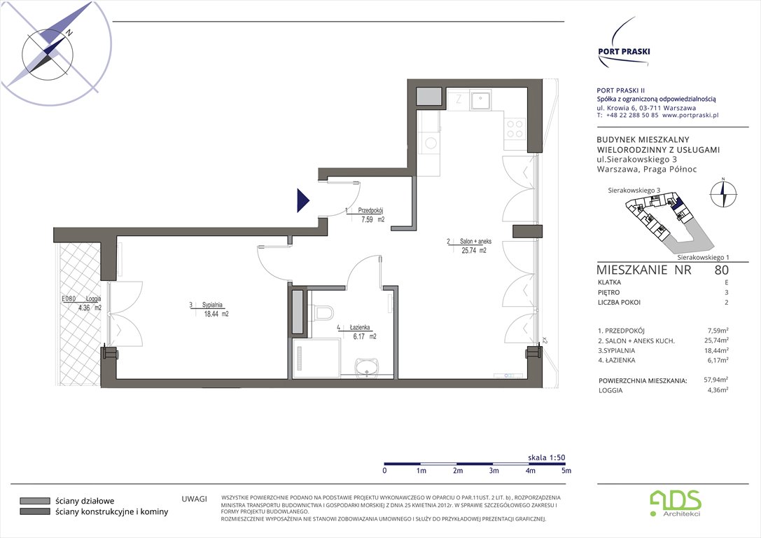
Szczegóły oferty Sierak3_80 Sprawdź wszystkie oferty w tej inwestycji >>>

Informacje dodatkowe:
plac zabaw, wózkarnia, teren zamknięty, winda, przyłącze telefoniczne, stojaki rowerowe, przyłącze internetowe, ochrona, przyłącze telewizyjne, usługi w budynku, teren strzeżony, garaż
Okolica:
szkoła, park / las, tramwaj, centrum handlowe, poczta, sklep spożywczy, dworzec kolejowy, metro, przedszkole, autobus, plac zabaw, apteka, niska zabudowa, policja, żłobek

Lokalizacja

Warszawa, Praga - Północ, Sierakowskiego 1-3

Opis oferty

Budynki Sierakowskiego 1 oraz 3 tworzą wspólną całość wyróżniającą się estetyką, funkcjonalnością i jakością wykonania. Łączą w sobie wysoki standard z nowoczesnym wyglądem. Elewacja wizualnie podzielona jest na części odwzorowujące układ kamieniczny praskiej zabudowy. Elewacje są wykończone płytką klinkierową, kamieniem naturalnym oraz wysokiej jakości nowoczesnymi płytami kompozytowymi. Dzięki temu inwestycja nabrała wyjątkowego charakteru i doskonale wpisuje się w klimat Starej Pragi. Oba budynki oferują szeroki wybór apartamentów o zróżnicowanych metrażach, co sprawia, że każdy znajdzie tu przestrzeń idealnie dopasowaną do własnych potrzeb i oczekiwań. Budynek został zaprojektowany przez pracownię architektoniczną ADS Architekci Sp. z o.o. W ofercie sprzedażowej dostępne są apartamenty i mieszkania, komórki lokatorskie, boksy rowerowe i miejsca postojowe w garażu podziemnym. Na parterze budynków znajduja się lokale usługowe.
Numer oferty: Sierak3_80

Statystyki ogłoszenia:

oko

Inne mieszkania dostępne w tej inwestycji

Filtruj oferty x Resetuj filtry
-
-
-
Rzut
Nr ref.
Piętro
Pokoje
Powierzchnia Pow.
Cena
PORT II_B1_83 6 2 Zapytaj o cenę Sierakowskiego 1 i 3 - PORT II_B1_83 - Warszawa, Praga - Północ, Sierakowskiego 1-3
Sierak1_12 4 2 52,46 m2 Zapytaj o cenę Sierakowskiego 1 i 3 - Sierak1_12 - Warszawa, Praga - Północ, Sierakowskiego 1-3, 52.46m2
Sierak1_15 5 2 52,46 m2 Zapytaj o cenę Sierakowskiego 1 i 3 - Sierak1_15 - Warszawa, Praga - Północ, Sierakowskiego 1-3, 52.46m2
Sierak1_16 6 3 217,57 m2 Zapytaj o cenę Sierakowskiego 1 i 3 - Sierak1_16 - Warszawa, Praga - Północ, Sierakowskiego 1-3, 217.57m2
Sierak1_18 6 2 52,46 m2 Zapytaj o cenę Sierakowskiego 1 i 3 - Sierak1_18 - Warszawa, Praga - Północ, Sierakowskiego 1-3, 52.46m2
Sierak1_19 1 3 69,62 m2 Zapytaj o cenę Sierakowskiego 1 i 3 - Sierak1_19 - Warszawa, Praga - Północ, Sierakowskiego 1-3, 69.62m2
Sierak1_23 2 3 69,62 m2 Zapytaj o cenę Sierakowskiego 1 i 3 - Sierak1_23 - Warszawa, Praga - Północ, Sierakowskiego 1-3, 69.62m2
Sierak1_27 3 3 69,62 m2 Zapytaj o cenę Sierakowskiego 1 i 3 - Sierak1_27 - Warszawa, Praga - Północ, Sierakowskiego 1-3, 69.62m2
Sierak1_31 4 3 69,62 m2 Zapytaj o cenę Sierakowskiego 1 i 3 - Sierak1_31 - Warszawa, Praga - Północ, Sierakowskiego 1-3, 69.62m2
Sierak1_35 5 3 69,62 m2 Zapytaj o cenę Sierakowskiego 1 i 3 - Sierak1_35 - Warszawa, Praga - Północ, Sierakowskiego 1-3, 69.62m2
Sierak1_37 5 3 98,16 m2 Zapytaj o cenę Sierakowskiego 1 i 3 - Sierak1_37 - Warszawa, Praga - Północ, Sierakowskiego 1-3, 98.16m2
Sierak1_39 6 3 69,62 m2 Zapytaj o cenę Sierakowskiego 1 i 3 - Sierak1_39 - Warszawa, Praga - Północ, Sierakowskiego 1-3, 69.62m2
Sierak1_42 7 3 69,62 m2 Zapytaj o cenę Sierakowskiego 1 i 3 - Sierak1_42 - Warszawa, Praga - Północ, Sierakowskiego 1-3, 69.62m2
Sierak1_48 2 3 77,15 m2 Zapytaj o cenę Sierakowskiego 1 i 3 - Sierak1_48 - Warszawa, Praga - Północ, Sierakowskiego 1-3, 77.15m2
Sierak1_51 3 3 77,15 m2 Zapytaj o cenę Sierakowskiego 1 i 3 - Sierak1_51 - Warszawa, Praga - Północ, Sierakowskiego 1-3, 77.15m2
Sierak1_54 4 3 77,15 m2 Zapytaj o cenę Sierakowskiego 1 i 3 - Sierak1_54 - Warszawa, Praga - Północ, Sierakowskiego 1-3, 77.15m2
Sierak1_55 5 5 112,65 m2 Zapytaj o cenę Sierakowskiego 1 i 3 - Sierak1_55 - Warszawa, Praga - Północ, Sierakowskiego 1-3, 112.65m2
Sierak1_58 6 3 115,62 m2 Zapytaj o cenę Sierakowskiego 1 i 3 - Sierak1_58 - Warszawa, Praga - Północ, Sierakowskiego 1-3, 115.62m2
Sierak1_58 6 3 115 m2 Zapytaj o cenę Sierakowskiego 1 i 3 - Sierak1_58 - Warszawa, Praga - Północ, Sierakowskiego 1-3, 115m2
Sierak1_60 6 3 77,15 m2 Zapytaj o cenę Sierakowskiego 1 i 3 - Sierak1_60 - Warszawa, Praga - Północ, Sierakowskiego 1-3, 77.15m2
Sierak1_63 7 3 116,23 m2 Zapytaj o cenę Sierakowskiego 1 i 3 - Sierak1_63 - Warszawa, Praga - Północ, Sierakowskiego 1-3, 116.23m2
Sierak1_9 3 2 52,46 m2 Zapytaj o cenę Sierakowskiego 1 i 3 - Sierak1_9 - Warszawa, Praga - Północ, Sierakowskiego 1-3, 52.46m2
Sierak3_102 6 3 59,54 m2 Zapytaj o cenę Sierakowskiego 1 i 3 - Sierak3_102 - Warszawa, Praga - Północ, Sierakowskiego 1-3, 59.54m2
Sierak3_104 6 3 66,46 m2 Zapytaj o cenę Sierakowskiego 1 i 3 - Sierak3_104 - Warszawa, Praga - Północ, Sierakowskiego 1-3, 66.46m2
Sierak3_105 7 3 59,54 m2 Zapytaj o cenę Sierakowskiego 1 i 3 - Sierak3_105 - Warszawa, Praga - Północ, Sierakowskiego 1-3, 59.54m2
Sierak3_109 7 4 98,83 m2 Zapytaj o cenę Sierakowskiego 1 i 3 - Sierak3_109 - Warszawa, Praga - Północ, Sierakowskiego 1-3, 98.83m2
Sierak3_12 5 3 59,65 m2 Zapytaj o cenę Sierakowskiego 1 i 3 - Sierak3_12 - Warszawa, Praga - Północ, Sierakowskiego 1-3, 59.65m2
Sierak3_15 6 3 59,65 m2 Zapytaj o cenę Sierakowskiego 1 i 3 - Sierak3_15 - Warszawa, Praga - Północ, Sierakowskiego 1-3, 59.65m2
Sierak3_16 7 3 63,64 m2 Zapytaj o cenę Sierakowskiego 1 i 3 - Sierak3_16 - Warszawa, Praga - Północ, Sierakowskiego 1-3, 63.64m2
Sierak3_27 4 3 54,23 m2 Zapytaj o cenę Sierakowskiego 1 i 3 - Sierak3_27 - Warszawa, Praga - Północ, Sierakowskiego 1-3, 54.23m2
Sierak3_28 5 3 59,31 m2 Zapytaj o cenę Sierakowskiego 1 i 3 - Sierak3_28 - Warszawa, Praga - Północ, Sierakowskiego 1-3, 59.31m2
Sierak3_30 5 3 54,23 m2 Zapytaj o cenę Sierakowskiego 1 i 3 - Sierak3_30 - Warszawa, Praga - Północ, Sierakowskiego 1-3, 54.23m2
Sierak3_31 6 3 59,31 m2 Zapytaj o cenę Sierakowskiego 1 i 3 - Sierak3_31 - Warszawa, Praga - Północ, Sierakowskiego 1-3, 59.31m2
Sierak3_33 6 3 54,23 m2 Zapytaj o cenę Sierakowskiego 1 i 3 - Sierak3_33 - Warszawa, Praga - Północ, Sierakowskiego 1-3, 54.23m2
Sierak3_34 7 3 59,31 m2 Zapytaj o cenę Sierakowskiego 1 i 3 - Sierak3_34 - Warszawa, Praga - Północ, Sierakowskiego 1-3, 59.31m2
Sierak3_36 7 3 54,23 m2 Zapytaj o cenę Sierakowskiego 1 i 3 - Sierak3_36 - Warszawa, Praga - Północ, Sierakowskiego 1-3, 54.23m2
Sierak3_53 6 3 86,01 m2 Zapytaj o cenę Sierakowskiego 1 i 3 - Sierak3_53 - Warszawa, Praga - Północ, Sierakowskiego 1-3, 86.01m2
Sierak3_86 5 2 57,94 m2 Zapytaj o cenę Sierakowskiego 1 i 3 - Sierak3_86 - Warszawa, Praga - Północ, Sierakowskiego 1-3, 57.94m2
Sierak3_88 6 4 95,60 m2 Zapytaj o cenę Sierakowskiego 1 i 3 - Sierak3_88 - Warszawa, Praga - Północ, Sierakowskiego 1-3, 95.6m2
Sierak3_9 4 3 59,65 m2 Zapytaj o cenę Sierakowskiego 1 i 3 - Sierak3_9 - Warszawa, Praga - Północ, Sierakowskiego 1-3, 59.65m2
Sierak3_93 3 3 59,54 m2 Zapytaj o cenę Sierakowskiego 1 i 3 - Sierak3_93 - Warszawa, Praga - Północ, Sierakowskiego 1-3, 59.54m2
Sierak3_96 4 3 59,54 m2 Zapytaj o cenę Sierakowskiego 1 i 3 - Sierak3_96 - Warszawa, Praga - Północ, Sierakowskiego 1-3, 59.54m2
Sierak3_99 5 3 59,54 m2 Zapytaj o cenę Sierakowskiego 1 i 3 - Sierak3_99 - Warszawa, Praga - Północ, Sierakowskiego 1-3, 59.54m2

Podobne nieruchomości