Sprawdź wszystkie oferty w tej inwestycji >>>

Szczegóły oferty 11Przyszkolna 14 Data dodania: wczoraj

  • Kategoria Mieszkania na sprzedaż
  • Lokalizacja mazowieckie, Płock, Góry, Kutnowska 28P, 28R
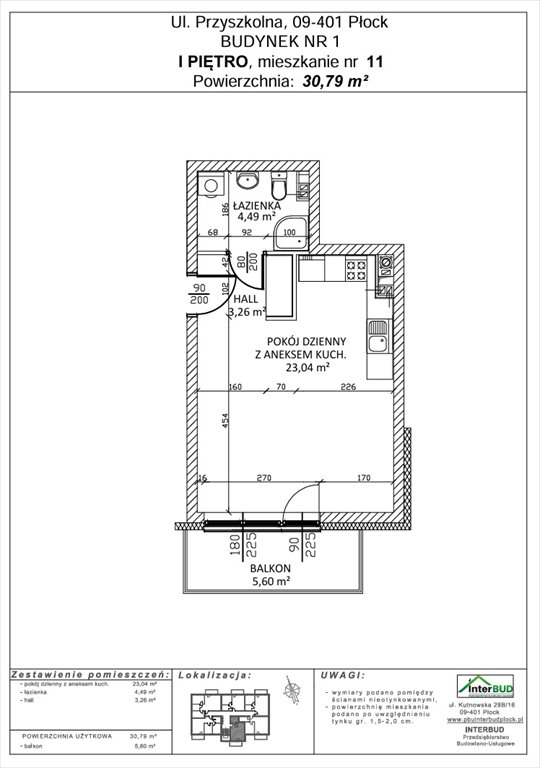
  • Powierzchnia całkowita30,79 m2
  • Cena

    300 000 zł

    Reklama ico Sprawdź ratę Sprawdź ratę RSSO 6,11% na dz. 16.03.26 trade ico trade ico trade
  • Cena za m2 9 743 zł/m2
  • Cennik na stronie dewelopera Zobacz ceny >>
  • Liczba pokoi 1
  • Piętro 1
  • Rok budowy 2027
  • Materiał pustak
  • Kanalizacjamiejska
  • Ogrzewaniegazowe
Informacje dodatkowe:
plac zabaw, miejsce naziemne, wózkarnia, stojaki rowerowe, przyłącze internetowe, przyłącze telewizyjne, garaż
Okolica:
szkoła, park / las, sklep spożywczy, autobus, plac zabaw, niska zabudowa

Lokalizacja

Płock, Góry, Kutnowska 28P, 28R

Opis oferty

Oferta dotyczy mieszkania nr 11 (ul. Przyszkolna 14, 09-401 Płock). Mieszkanie znajduje się na pierwszym piętrze i posiada północny balkon. Jest to jednopokojowa „kawalerka”. Mieszkanie wykończone, do przemalowania i wprowadzenia się. Bardzo duże, ładne meble kuchenne z około 4-letnim AGD. Wraz z mieszkaniem sprzedajemy miejsce postojowe w garażu podziemnym [udział w lokalu użytkowym – garaż – z prawem do korzystania ze wskazanego miejsca] oraz prawo do wyłącznego korzystania z miejsca postojowego zewnętrznego na podstawie umowy quoad usum Osiedle Przylesie To miejsce, gdzie równowaga między naturą a komfortem mieszkania staje się codziennością. Mieszkaj tuż przy lesie i Gostynińsko-Włocławskim Parku Krajobrazowym. Cisza, spokój i przestrzeń, a jednocześnie zaledwie kilka minut od centrum Płocka! Tylko 23 nowe mieszkania w każdym budynku. Powierzchnie mieszkań 37, 50, 62 i 120m2. Odbiór mieszkań w lutym 2027 roku.
Numer oferty: 11Przyszkolna 14

Statystyki ogłoszenia:

oko

Inne mieszkania dostępne w tej inwestycji

Filtruj oferty x Resetuj filtry
-
-
-
Rzut
Nr ref.
Piętro
Pokoje
Powierzchnia Pow.
Cena
1 Dąb 1A 0 3 49,97 m2 430 000 zł Przylesie 2 - 1 Dąb 1A - Płock, Góry, Kutnowska 28P  28R, 49.97m2
10 Dąb 1B 1 3 62,08 m2 530 000 zł Przylesie 2 - 10 Dąb 1B - Płock, Góry, Kutnowska 28P  28R, 62.08m2
12 Dąb 1A 2 2 37,83 m2 335 000 zł Przylesie 2 - 12 Dąb 1A - Płock, Góry, Kutnowska 28P  28R, 37.83m2
21 Dąb 1A 3 2 36,63 m2 320 000 zł Przylesie 2 - 21 Dąb 1A - Płock, Góry, Kutnowska 28P  28R, 36.63m2
22 Kutnowska 28M 3 3 61,67 m2 500 000 zł Przylesie 2 - 22 Kutnowska 28M - Płock, Góry, Kutnowska 28P  28R, 61.67m2
23 Dąb 1B 3 5 128,61 m2 820 000 zł Przylesie 2 - 23 Dąb 1B - Płock, Góry, Kutnowska 28P  28R, 128.61m2
23 Kutnowska 28M 3 5 128,61 m2 808 000 zł Przylesie 2 - 23 Kutnowska 28M - Płock, Góry, Kutnowska 28P  28R, 128.61m2