Sprawdź wszystkie oferty w tej inwestycji >>>

Szczegóły oferty 12 Dąb 1A Data dodania: wczoraj

  • Kategoria Mieszkania na sprzedaż
  • Lokalizacja mazowieckie, Płock, Góry, Kutnowska 28P, 28R
  • Powierzchnia całkowita37,83 m2
  • Cena

    335 000 zł

    Reklama ico Sprawdź ratę Sprawdź ratę RSSO 6,11% na dz. 16.03.26 trade ico trade ico trade
  • Cena za m2 8 855 zł/m2
  • Cennik na stronie dewelopera Zobacz ceny >>
  • Liczba pokoi 2
  • Piętro 2
  • Rok budowy 2027
  • Materiał pustak
  • Kanalizacjamiejska
  • Ogrzewaniegazowe
Informacje dodatkowe:
plac zabaw, miejsce naziemne, wózkarnia, stojaki rowerowe, przyłącze internetowe, przyłącze telewizyjne, garaż
Okolica:
szkoła, park / las, sklep spożywczy, autobus, plac zabaw, niska zabudowa

Lokalizacja

Płock, Góry, Kutnowska 28P, 28R

Opis oferty

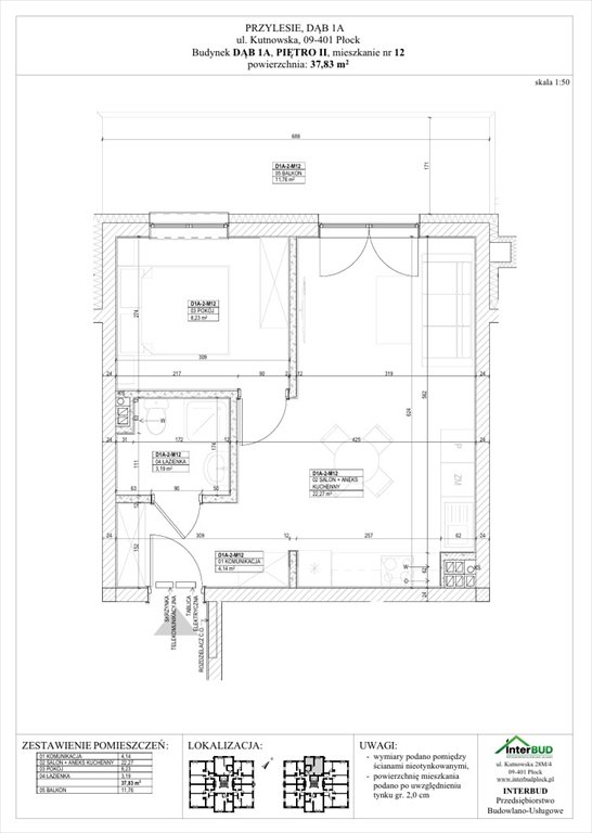
Mieszkanie znajduje się na 2 piętrze i składa się z: * salonu+aneks kuchenny (22,27 m2), * pokoju (8,23 m2), * łazienki (3,19 m2), * balkonu (11,76 m2) Osiedle Przylesie To miejsce, gdzie równowaga między naturą a komfortem mieszkania staje się codziennością. Mieszkaj tuż przy lesie i Gostynińsko-Włocławskim Parku Krajobrazowym. Cisza, spokój i przestrzeń, a jednocześnie zaledwie kilka minut od centrum Płocka! Powierzchnie mieszkań 37, 50, 62 i 120m2. Zakończenie inwestycji i odbiór mieszkań planowany jest na luty 2027. Dąb 1A oraz Dąb 1B to jednoklatkowe budynki zawierające po 23 mieszkania oraz 24 komórki lokatorskie w piwnicy. Pod budynkami znajduje się garaż podziemny posiadający 34 miejsca postojowe. Bloki składają się z pięciu kondygnacji nadziemnych (parter, trzy piętra i górny poziom mieszkań dwupoziomowych) oraz jednej podziemnej i nie posiadają windy. Przed każdym blokiem znajdują się miejsca postojowe zewnętrzne. Część miejsc, po 6 na budynek sprzedajemy na zasadzie przypisania prawa do wyłącznego korzystania na podstawie quoad usum. Każdy blok posiada kotłownię gazową opalaną gazem propan. Kotłownia zasila centralne ogrzewanie oraz ogrzeje wodę użytkową. Mieszkania wyposażone zostaną w urządzenia mierzące indywidualne zużycie ciepła oraz wody ciepłej i zimnej. W mieszkaniach nie będzie instalacji gazowej. Do kuchni doprowadzona zostanie tak zwana “siła” do zasilania elektrycznych kuchni indukcyjnych. Przewidziane jest przyłącze światłowodu wykonane przez firmę Orange, a deweloper zapewnia rozprowadzenie przewodów światłowodowych po bloku do skrzynek teletechnicznych w lokalach. Na wyposażeniu bloku będzie także antena satelitarna odbierająca telewizję “naziemną” oraz umożliwiająca podłączenie dekodera popularnych firm telewizyjnych bez konieczności montażu dodatkowych urządzeń na balkonach. Instalacja dopuszcza używanie tylko jednego dekodera na mieszkanie. Na parter zaprowadzą schody oraz podnośnik dla niepełnosprawnych. Cztery lokale na parterze będą miały rozleglejsze niż balkon tarasy położone na dachu zielonym. Powierzchnię tarasów stanowić będzie dekoracyjna płyta chodnikowa ze wzorem do indywidualnego ustalenia z przyszłym właścicielem mieszkania. Mieszkania parterowe na przeciwległej elewacji będą miały balkony około dwóch metrów nad gruntem. Przekazywane mieszkania znajdować się będą w stanie deweloperskim tj.: z zamontowanymi grzejnikami, kontaktami, kostkami oświetlenia i włącznikami, parapetami plastikowymi [możliwy montaż innych modeli po przekazaniu do zamontowania lub rezygnacja z montażu], ze ścianami pokrytymi tynkami gipsowo-wapiennymi [cementowe w łazienkach]. Na podłodze: wylewki betonowe. Zamontowane zostaną drzwi wejściowe wzmocnione antywłamaniowe do lokalu, skrzynka teletechniczna wraz z tablicą korkową [nad drzwiami], domofon oraz instalacja wodno-kanalizacyjna podejścia instalacyjne urządzeń. Na korytarzu – w zamykanych stalowymi drzwiami szachtach – znajdować się będą urządzenia pomiarowe: ciepłomierz, wodomierze oraz licznik energii elektrycznej. Osiedle Przylesie To miejsce, gdzie równowaga między naturą a komfortem mieszkania staje się codziennością. Mieszkaj tuż przy lesie i Gostynińsko-Włocławskim Parku Krajobrazowym. Cisza, spokój i przestrzeń, a jednocześnie zaledwie kilka minut od centrum Płocka! Tylko 23 nowe mieszkania w każdym budynku. Powierzchnie mieszkań 37, 50, 62 i 120m2. Odbiór mieszkań w lutym 2027 roku.
Numer oferty: 12 Dąb 1A

Statystyki ogłoszenia:

oko

Inne mieszkania dostępne w tej inwestycji

Filtruj oferty x Resetuj filtry
-
-
-
Rzut
Nr ref.
Piętro
Pokoje
Powierzchnia Pow.
Cena
1 Dąb 1A 0 3 49,97 m2 430 000 zł Przylesie 2 - 1 Dąb 1A - Płock, Góry, Kutnowska 28P  28R, 49.97m2
10 Dąb 1B 1 3 62,08 m2 530 000 zł Przylesie 2 - 10 Dąb 1B - Płock, Góry, Kutnowska 28P  28R, 62.08m2
11Przyszkolna 14 1 1 30,79 m2 300 000 zł Przylesie 2 - 11Przyszkolna 14 - Płock, Góry, Kutnowska 28P  28R, 30.79m2
21 Dąb 1A 3 2 36,63 m2 320 000 zł Przylesie 2 - 21 Dąb 1A - Płock, Góry, Kutnowska 28P  28R, 36.63m2
22 Kutnowska 28M 3 3 61,67 m2 500 000 zł Przylesie 2 - 22 Kutnowska 28M - Płock, Góry, Kutnowska 28P  28R, 61.67m2
23 Dąb 1B 3 5 128,61 m2 820 000 zł Przylesie 2 - 23 Dąb 1B - Płock, Góry, Kutnowska 28P  28R, 128.61m2
23 Kutnowska 28M 3 5 128,61 m2 808 000 zł Przylesie 2 - 23 Kutnowska 28M - Płock, Góry, Kutnowska 28P  28R, 128.61m2