• Kategoria Domy na sprzedaż
  • Lokalizacja podkarpackie, Rzeszów, Przybyszówka, Projektant, Magórska
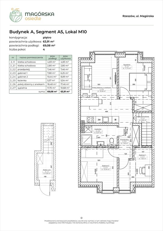
  • Powierzchnia całkowita63,91 m2
  • Cena

    489 000 zł

    Reklama ico Sprawdź ratę Sprawdź ratę RSSO 6,54%
    na dz. 24.11.25
    trade ico trade ico trade
  • Cena za m2 7 651 zł/m2
  • Cennik na stronie dewelopera Zobacz ceny >>
  • Liczba pokoi 4
  • Rok budowy 2025
  • Materiał pustak
  • Kanalizacjamiejska
  • Kanalizacjamiejska
  • Ogrzewaniegazowe
Informacje dodatkowe:
teren zamknięty, przyłącze internetowe
Okolica:
szkoła, park / las, przychodnia / szpital, centrum handlowe, poczta, sklep spożywczy, przedszkole, autobus, plac zabaw, apteka, niska zabudowa, żłobek

Lokalizacja

Rzeszów, Przybyszówka, Projektant, Magórska

Opis oferty

Zamieszkaj mądrze - wybierz lokalizację, która łączy wygodę z wyjątkowym klimatem. Osiedle Magórska to inwestycja, na którą zasługujesz! Inwestycja składa się z 12 budynków mieszkalnych w zabudowie szeregowej, rozmieszczonych w dwóch równoległych liniach zabudowy. Projekt został zaplanowany z myślą o funkcjonalności, komforcie i nowoczesnej estetyce architektonicznej. Całość znajduje się na ogrodzonym, kameralnym osiedlu zlokalizowanym w zachodniej części Rzeszowa (Przybyszówka, osiedle Projektant). Dostępne mieszkania: Aktualnie w ofercie dostępne są jedynie mieszkania zlokalizowane na pierwszym piętrze. Charakterystyka mieszkań: -Powierzchnia użytkowa: 63,91 m2 -Funkcjonalny rozkład: 4 pokoje -Pełne ogrzewanie podłogowe na całej powierzchni mieszkania -Naturalne oświetlenie i korzystna ekspozycja względem stron świata -Każde mieszkanie posiada przypisane miejsce postojowe w cenie Wcześniejsze mieszkania na parterze zostały już sprzedane – obecnie oferujemy ostatnie dostępne lokale na piętrze. Lokalizacja: Osiedle Magórska to inwestycja położona w rozwijającej się części Rzeszowa, oferująca idealne połączenie spokoju przedmieść z wygodnym dostępem do centrum miasta. Atuty lokalizacji: -dogodny dojazd do centrum miasta oraz szybki dostęp do trasy ekspresowej S19 / H4 -w sąsiedztwie zabudowa jednorodzinna – spokojna i zielona okolica -w pobliżu: szkoły, przedszkola, sklepy, punkty usługowe, przystanki komunikacji miejskiej -rozwinięta infrastruktura osiedlowa -teren inwestycji w całości ogrodzony – osiedle zamknięte
Numer oferty: A5M10

Statystyki ogłoszenia:

oko

Inne domy dostępne w tej inwestycji

Filtruj oferty x Resetuj filtry
-
-
Rzut
Nr ref.
Piętro
Pokoje
Powierzchnia Pow.
Cena
A2M4 4 63,91 m2 569 000 zł Osiedle Magórska - A2M4 - Rzeszów, Przybyszówka, Magórska, 63.91m2
A3M6 4 63,91 m2 569 000 zł Osiedle Magórska - A3M6 - Rzeszów, Przybyszówka, Magórska, 63.91m2
A4M8 4 63,91 m2 489 000 zł Osiedle Magórska - A4M8 - Rzeszów, Przybyszówka, Magórska, 63.91m2
B4M8 4 63,91 m2 489 000 zł Osiedle Magórska - B4M8 - Rzeszów, Przybyszówka, Magórska, 63.91m2
B5M10 4 63,91 m2 489 000 zł Osiedle Magórska - B5M10 - Rzeszów, Przybyszówka, Magórska, 63.91m2