Sprawdź wszystkie oferty w tej inwestycji >>>

Szczegóły oferty B032 Data dodania: 29 dni temu

Informacje dodatkowe:
plac zabaw, miejsce naziemne, wózkarnia, stacja ładowania pojazdów, winda, stojaki rowerowe, przyłącze internetowe, ochrona, przyłącze telewizyjne, usługi w budynku, teren strzeżony, garaż
Okolica:
szkoła, park / las, przychodnia / szpital, centrum handlowe, sklep spożywczy, dworzec kolejowy, przedszkole, autobus, plac zabaw, apteka, żłobek

Lokalizacja

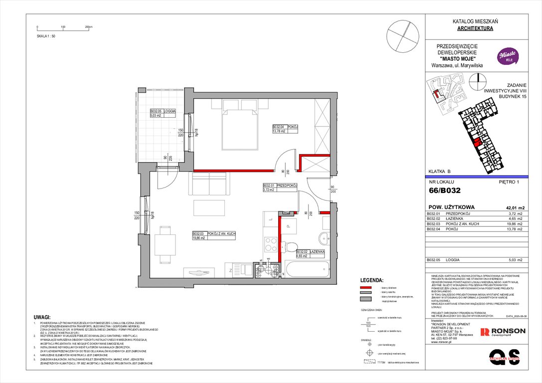
Warszawa, Białołęka, Marywilska 68

Dni otwarte

 

Dzień otwarty: 

 

Mikołajkowy Dzień Otwarty – 6 grudnia, godz. 10:00–14:00. 

 

Zapraszamy do biura sprzedaży przy ul. Marywilskiej 68.

 

Promocja: Do każdego mieszkania GARAŻ i SCHOWEK GRATIS. Termin oddania III kwartał 2026.

 

 

Opis oferty

Miasto Moje, dzięki swojej wieloetapowej skali, jest miasteczkiem samym w sobie  Twórcom tego miejsca przyświecała filozofia miasta 15-minutowego, wedle której większość swoich codziennych potrzeb związanych z zakupami, aktywnością fizyczną i rozrywką mieszkańcy mogą realizować w najbliższym sąsiedztwie. Już ponad 1300 mieszkańców znalazło tu swoje miejsce do życia. Mogą cieszyć się wraz ze swoimi rodzinami takimi atrakcjami jak boisko, liczne place zabaw, strefy relaksacyjne, statek piracki dla dzieci i wiele innych. Możemy tu znaleźć doskonale dobraną zieleń, która zaplanowana została tak, by poszczególne strefy osiedla kwitły o różnych porach roku. Osiedle Miasto Moje posiada pełen dostęp do usług, zaspokajających niezbędne potrzeby dnia codziennego. W tym momencie w sprzedaży jest ostatni, 8 etap tego bestsellerowego osiedla. Nie czekaj i poznaj wszystkie jego zalety! .
Numer oferty: B032

Statystyki ogłoszenia:

oko

Inne mieszkania dostępne w tej inwestycji

Filtruj oferty x Resetuj filtry
-
-
-
Rzut
Nr ref.
Piętro
Pokoje
Powierzchnia Pow.
Cena
A004 1 2 39,87 m2 643 089 zł Miasto Moje - A004 - Warszawa, Białołęka, Marywilska 68, 39.87m2
A005 1 3 57,43 m2 781 353 zł Miasto Moje - A005 - Warszawa, Białołęka, Marywilska 68, 57.43m2
A006 1 3 58,67 m2 798 178 zł Miasto Moje - A006 - Warszawa, Białołęka, Marywilska 68, 58.67m2
A006 1 2 58,67 m2 798 178 zł Miasto Moje - A006 - Warszawa, Białołęka, Marywilska 68, 58.67m2
A007 2 2 39,87 m2 645 327 zł Miasto Moje - A007 - Warszawa, Białołęka, Marywilska 68, 39.87m2
A011 3 3 57,44 m2 787 622 zł Miasto Moje - A011 - Warszawa, Białołęka, Marywilska 68, 57.44m2
A024 4 3 58,67 m2 807 784 zł Miasto Moje - A024 - Warszawa, Białołęka, Marywilska 68, 58.67m2
B015 1 2 45,55 m2 666 160 zł Miasto Moje - B015 - Warszawa, Białołęka, Marywilska 68, 45.55m2
B017 63,11 m2 841 786 zł Miasto Moje - B017 - Warszawa, Białołęka, Marywilska 68, 63.11m2
B019 2 2 38,53 m2 621 040 zł Miasto Moje - B019 - Warszawa, Białołęka, Marywilska 68, 38.53m2
B021 3 2 45,55 m2 671 095 zł Miasto Moje - B021 - Warszawa, Białołęka, Marywilska 68, 45.55m2
B025 4 2 38,53 m2 625 364 zł Miasto Moje - B025 - Warszawa, Białołęka, Marywilska 68, 38.53m2
B026 4 3 63,11 m2 852 124 zł Miasto Moje - B026 - Warszawa, Białołęka, Marywilska 68, 63.11m2
B031 1 3 58,72 m2 800 466 zł Miasto Moje - B031 - Warszawa, Białołęka, Marywilska 68, 58.72m2
B033 3 3 63,71 m2 848 908 zł Miasto Moje - B033 - Warszawa, Białołęka, Marywilska 68, 63.71m2
B033 1 3 63,71 m2 848 908 zł Miasto Moje - B033 - Warszawa, Białołęka, Marywilska 68, 63.71m2
B035 2 2 42,01 m2 643 044 zł Miasto Moje - B035 - Warszawa, Białołęka, Marywilska 68, 42.01m2
B038 3 2 42,01 m2 645 338 zł Miasto Moje - B038 - Warszawa, Białołęka, Marywilska 68, 42.01m2
B040 4 3 58,72 m2 810 101 zł Miasto Moje - B040 - Warszawa, Białołęka, Marywilska 68, 58.72m2
B042 4 3 63,71 m2 859 335 zł Miasto Moje - B042 - Warszawa, Białołęka, Marywilska 68, 63.71m2
B045 5 3 63,71 m2 866 286 zł Miasto Moje - B045 - Warszawa, Białołęka, Marywilska 68, 63.71m2
C027 0 2 49,26 m2 698 350 zł Miasto Moje - C027 - Warszawa, Białołęka, Marywilska 68, 49.26m2
C028 1 2 45 m2 659 162 zł Miasto Moje - C028 - Warszawa, Białołęka, Marywilska 68, 45m2
C046 4 2 45,18 m2 669 139 zł Miasto Moje - C046 - Warszawa, Białołęka, Marywilska 68, 45.18m2
C050 1 3 58,51 m2 800 601 zł Miasto Moje - C050 - Warszawa, Białołęka, Marywilska 68, 58.51m2
C051 2 3 61,29 m2 823 685 zł Miasto Moje - C051 - Warszawa, Białołęka, Marywilska 68, 61.29m2
C052 2 3 61,26 m2 827 290 zł Miasto Moje - C052 - Warszawa, Białołęka, Marywilska 68, 61.26m2
C053 2 2 40,15 m2 647 562 zł Miasto Moje - C053 - Warszawa, Białołęka, Marywilska 68, 40.15m2
C055 58,51 m2 803 813 zł Miasto Moje - C055 - Warszawa, Białołęka, Marywilska 68, 58.51m2
C056 3 3 61,29 m2 830 347 zł Miasto Moje - C056 - Warszawa, Białołęka, Marywilska 68, 61.29m2
C057 3 3 61,26 m2 833 981 zł Miasto Moje - C057 - Warszawa, Białołęka, Marywilska 68, 61.26m2
C058 3 2 40,15 m2 649 817 zł Miasto Moje - C058 - Warszawa, Białołęka, Marywilska 68, 40.15m2
C061 4 3 61,29 m2 833 679 zł Miasto Moje - C061 - Warszawa, Białołęka, Marywilska 68, 61.29m2
C062 4 3 61,26 m2 837 327 zł Miasto Moje - C062 - Warszawa, Białołęka, Marywilska 68, 61.26m2
C067 5 3 61,26 m2 840 673 zł Miasto Moje - C067 - Warszawa, Białołęka, Marywilska 68, 61.26m2
C068 5 2 40,15 m2 654 325 zł Miasto Moje - C068 - Warszawa, Białołęka, Marywilska 68, 40.15m2
C070 5 3 58,51 m2 813 449 zł Miasto Moje - C070 - Warszawa, Białołęka, Marywilska 68, 58.51m2
D073 0 1 27,66 m2 462 742 zł Miasto Moje - D073 - Warszawa, Białołęka, Marywilska 68, 27.66m2
D074 1 3 62,13 m2 834 316 zł Miasto Moje - D074 - Warszawa, Białołęka, Marywilska 68, 62.13m2
D075 1 2 38,57 m2 620 789 zł Miasto Moje - D075 - Warszawa, Białołęka, Marywilska 68, 38.57m2
D076 1 3 58,54 m2 795 217 zł Miasto Moje - D076 - Warszawa, Białołęka, Marywilska 68, 58.54m2
D082 3 3 58,54 m2 801 598 zł Miasto Moje - D082 - Warszawa, Białołęka, Marywilska 68, 58.54m2
D085 4 3 58,54 m2 804 788 zł Miasto Moje - D085 - Warszawa, Białołęka, Marywilska 68, 58.54m2
D087 5 2 38,57 m2 629 463 zł Miasto Moje - D087 - Warszawa, Białołęka, Marywilska 68, 38.57m2

Podobne nieruchomości