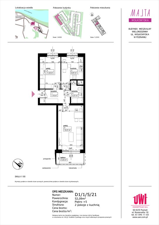
Szczegóły oferty D1_1_5_21 Sprawdź wszystkie oferty w tej inwestycji >>>

  • Kategoria Mieszkania na sprzedaż
  • Lokalizacja wielkopolskie, Poznań, Rataje, ul. Klemensa Mikuły 1 i 3
  • Powierzchnia całkowita52,09 m2
  • Cena

    734 469 zł

    Reklama ico Sprawdź ratę Sprawdź ratę RSSO 6,25% na dz. 19.01.26 trade ico trade ico trade
  • Cena za m2 14 100 zł/m2
  • Liczba pokoi 2
  • Piętro 5
  • Rok budowy 2026
  • Materiał ytong
  • Kanalizacjamiejska
  • Ogrzewaniemiejskie
Informacje dodatkowe:
plac zabaw, miejsce naziemne, winda, przyłącze telefoniczne, stojaki rowerowe, przyłącze internetowe, przyłącze telewizyjne, usługi w budynku
Okolica:
szkoła, park / las, tramwaj, przychodnia / szpital, centrum handlowe, poczta, sklep spożywczy, przedszkole, autobus, plac zabaw, apteka, niska zabudowa, policja, żłobek

Lokalizacja

Poznań, Rataje, ul. Klemensa Mikuły 1 i 3

Opis oferty

Osiedle MALTA Wołkowyska to wyjątkowy punkt na mapie Poznania. Po pierwsze lokalizacja – blisko centrum, a jednak z dala od zgiełku miasta. To połączenie spokojnej okolicy w centrum miasta z doskonałą komunikacją z pozostałą częścią Poznania. O krok od jeziora, lasu, przestrzeni do relaksu, rozwijania pasji i zainteresowań. Zabudowa osiedla jest doskonale zaplanowana i przemyślana tak, by zapewniać wygodę mieszkańcom. Tutaj znajdziesz mieszkanie dopasowane do Twoich potrzeb: od kompaktowych, przytulnych kawalerek po wielopokojowe, ustawne mieszkania. Każde z nich zaprojektowane w zgodzie z najnowszymi trendami, a ich aranżacja to czysta przyjemność. Potrzebujesz i cenisz sobie przestrzeń – otwierasz kuchnię na salon. Chcesz zapewnić swoim dzieciom miejsce do niezapomnianych zabaw – wybierasz mieszkanie na parterze z przestronnym przydomowym ogródkiem. W łazience może powstać domowe SPA, a na balkonie tworzysz aranżację pełną kwiatów i zieleni, spokojny kącik do zaszycia się z ulubioną książką. Panoramiczne tarasy, ogrody zimowe czy balkony to wizytówka tego etapu inwestycji. Pomyśleliśmy też o rekreacji. Atrakcyjność inwestycji zwiększa malownicza okolica Jeziora Maltańskiego wprowadzająca niezwykły klimat, zapewniająca piękne widoki, codzienny spokój oraz kontakt z naturą. Nowoczesna hala garażowa, oferująca komfortowe rozwiązania dla różnorodnych potrzeb. Pojedyncze miejsca postojowe o powierzchni 12,50 m2 zapewniają wygodę dla indywidualnych kierowców, podczas gdy rodzinne miejsca o powierzchni 25,00 m2 dostarczają przestrzeni dla całych rodzin. W trosce o ekologię i aktywny tryb życia, niektóre miejsca wyposażone są w stojaki rowerowe, zachęcając do korzystania z rowerów. Dodatkową wyjątkową atrakcją osiedla MALTA Wołkowyska są lokale usługowe, które dostarczają wygody dla mieszkańców osiedla. W aktualnie realizowanej przez UWI części osiedla – znajduje się 359 mieszkań. Ale to nie jedyni odbiorcy naszych lokali, ponieważ już na pierwszym i drugim etapie osiedla zamieszkałych jest blisko 300 mieszkań. Natomiast w bezpośrednim sąsiedztwie osiedla realizowanego przez UWI, wybudowano kolejne 200 mieszkań. Pozostaje jeszcze obszerne osiedle domków jednorodzinnych. Potencjał osiedla na zaspokojenie potrzeb dla lokali usługowych jest zatem bardzo duży. Osiedle MALTA Wołkowyska to doskonałe miejsce, gdzie funkcjonalność spotyka się z innowacyjnym podejściem do zrównoważonej mobilności. Mieszkanie, to miejsce w którym spędzamy dużo czasu, gdzie liczy się komfort i wygoda. Dlatego dołożyliśmy wszelkich starań projektując ich przestrzeń, by nie sprawiały najmniejszych problemów przy aranżacji, a jedynym ograniczeniem była Twoja wyobraźnia!
Numer oferty: D1_1_5_21

Statystyki ogłoszenia:

oko

Inne mieszkania dostępne w tej inwestycji

Filtruj oferty x Resetuj filtry
-
-
-
Rzut
Nr ref.
Piętro
Pokoje
Powierzchnia Pow.
Cena
A2_1_0_1 0 1 96,99 m2 1 276 485 zł MALTA Wołkowyska etap 3 - A2_1_0_1 - Poznań, Rataje, Klemensa Mikuły 1 i 3, 96.99m2
A2_2_5_16 5 2 52,34 m2 737 994 zł MALTA Wołkowyska etap 3 - A2_2_5_16 - Poznań, Rataje, Klemensa Mikuły 1 i 3, 52.34m2
A2_3_2_11 2 3 59,43 m2 814 191 zł MALTA Wołkowyska etap 3 - A2_3_2_11 - Poznań, Rataje, Klemensa Mikuły 1 i 3, 59.43m2
B_1_0_1 0 1 156,52 m2 2 059 960 zł MALTA Wołkowyska etap 3 - B_1_0_1 - Poznań, Rataje, Klemensa Mikuły 1 i 3, 156.52m2
B_1_2_7 2 3 62,34 m2 847 824 zł MALTA Wołkowyska etap 3 - B_1_2_7 - Poznań, Rataje, Klemensa Mikuły 1 i 3, 62.34m2
B_1_3_12 3 3 62,34 m2 847 824 zł MALTA Wołkowyska etap 3 - B_1_3_12 - Poznań, Rataje, Klemensa Mikuły 1 i 3, 62.34m2
B_1_4_18 4 3 62,34 m2 860 292 zł MALTA Wołkowyska etap 3 - B_1_4_18 - Poznań, Rataje, Klemensa Mikuły 1 i 3, 62.34m2
B_3_0_1 0 1 88,14 m2 1 160 011 zł MALTA Wołkowyska etap 3 - B_3_0_1 - Poznań, Rataje, Klemensa Mikuły 1 i 3, 88.14m2
B_3_1_3 1 2 41,21 m2 605 787 zł MALTA Wołkowyska etap 3 - B_3_1_3 - Poznań, Rataje, Klemensa Mikuły 1 i 3, 41.21m2
B_4_0_1 0 1 354,84 m2 4 670 049 zł MALTA Wołkowyska etap 3 - B_4_0_1 - Poznań, Rataje, Klemensa Mikuły 1 i 3, 354.84m2
B_4_4_18 4 2 44,71 m2 648 295 zł MALTA Wołkowyska etap 3 - B_4_4_18 - Poznań, Rataje, Klemensa Mikuły 1 i 3, 44.71m2
C_1_4_16 4 2 52,09 m2 724 051 zł MALTA Wołkowyska etap 3 - C_1_4_16 - Poznań, Rataje, Klemensa Mikuły 1 i 3, 52.09m2
C_1_5_21 5 2 52,09 m2 734 469 zł MALTA Wołkowyska etap 3 - C_1_5_21 - Poznań, Rataje, Klemensa Mikuły 1 i 3, 52.09m2
C_2_0_2 0 2 41,02 m2 594 790 zł MALTA Wołkowyska etap 3 - C_2_0_2 - Poznań, Rataje, Klemensa Mikuły 1 i 3, 41.02m2
C_2_4_15 4 3 52,10 m2 734 610 zł MALTA Wołkowyska etap 3 - C_2_4_15 - Poznań, Rataje, Klemensa Mikuły 1 i 3, 52.1m2
C_2_5_18 5 3 52,10 m2 745 030 zł MALTA Wołkowyska etap 3 - C_2_5_18 - Poznań, Rataje, Klemensa Mikuły 1 i 3, 52.1m2
C_3_1_6 1 3 52,04 m2 712 948 zł MALTA Wołkowyska etap 3 - C_3_1_6 - Poznań, Rataje, Klemensa Mikuły 1 i 3, 52.04m2
C_3_4_15 4 3 52,04 m2 723 356 zł MALTA Wołkowyska etap 3 - C_3_4_15 - Poznań, Rataje, Klemensa Mikuły 1 i 3, 52.04m2
C_3_5_18 5 3 52,04 m2 733 764 zł MALTA Wołkowyska etap 3 - C_3_5_18 - Poznań, Rataje, Klemensa Mikuły 1 i 3, 52.04m2
D1_1_1_5 1 4 76,20 m2 952 500 zł MALTA Wołkowyska etap 3 - D1_1_1_5 - Poznań, Rataje, Klemensa Mikuły 1 i 3, 76.2m2
D1_1_4_16 4 2 52,09 m2 724 051 zł MALTA Wołkowyska etap 3 - D1_1_4_16 - Poznań, Rataje, Klemensa Mikuły 1 i 3, 52.09m2
D1_1_4_19 4 3 60,75 m2 844 425 zł MALTA Wołkowyska etap 3 - D1_1_4_19 - Poznań, Rataje, Klemensa Mikuły 1 i 3, 60.75m2
D1_1_5_23 5 2 53,39 m2 774 155 zł MALTA Wołkowyska etap 3 - D1_1_5_23 - Poznań, Rataje, Klemensa Mikuły 1 i 3, 53.39m2
D2_2_0_1 0 3 75,89 m2 948 625 zł MALTA Wołkowyska etap 3 - D2_2_0_1 - Poznań, Rataje, Klemensa Mikuły 1 i 3, 75.89m2
D2_2_0_2 0 1 31,71 m2 475 650 zł MALTA Wołkowyska etap 3 - D2_2_0_2 - Poznań, Rataje, Klemensa Mikuły 1 i 3, 31.71m2
D2_2_0_3 0 2 49,15 m2 683 185 zł MALTA Wołkowyska etap 3 - D2_2_0_3 - Poznań, Rataje, Klemensa Mikuły 1 i 3, 49.15m2
D2_2_1_6 1 1 31,71 m2 475 650 zł MALTA Wołkowyska etap 3 - D2_2_1_6 - Poznań, Rataje, Klemensa Mikuły 1 i 3, 31.71m2

Podobne nieruchomości