Sprawdź wszystkie oferty w tej inwestycji >>>

Szczegóły oferty 84 Data dodania: dzisiaj

Informacje dodatkowe:
garaż
Okolica:
szkoła, park / las, tramwaj, centrum handlowe, poczta, sklep spożywczy, dworzec kolejowy, metro, przedszkole, autobus, apteka

Lokalizacja

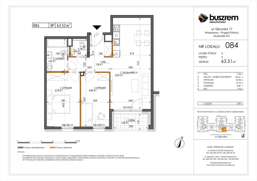
Warszawa, Praga Północ, Kijowska 17

Opis oferty

Z Pragi do Centrum Mieszkając przy Kijowskiej 17 Jesteś świetnie skomunikowany z całym miastem. Zaledwie 13 minut spaceru dzieli Cię od stacji metra Stadion Narodowy, a w zasięgu kilku przystanków znajdują się także Szwedzka i Wileńska. Praga oferuje aż dziewięć linii tramwajowych i pięć autobusowych, dzięki którym dotrzesz do najważniejszych punktów Warszawy bez korków i stresu. Wkrótce pojawi się również linia metra M3 – z nowymi stacjami, w tym Warszawa Wschodnia, tuż obok powstającego osiedla. Doskonałym uzupełnieniem są połączenia kolejowe z dworców: Warszawa Wschodnia, Warszawa Wileńska i Warszawa Zoo. A jeśli wybierzesz samochód – centrum miasta jest w zasięgu kilku minut dzięki mostom Śląsko-Dąbrowskiemu, Poniatowskiego i Świętokrzyskiemu. Tu wszystko masz blisko. Praga to nie kompromis – to wygoda życia w sercu tętniącej Warszawy. Nowoczesna inwestycja z charakterem Dla tych, którzy chcą Pragi, ale w wersji PREMIUM. Kijowska 17 to siedmiopiętrowy (ośmiokondygnacyjny) budynek mieszkalno-usługowy w formie trzech połączonych ze sobą wież – pierwszy etap nowego, starannie zaprojektowanego kompleksu. Zamiast pustych dachów – zielone tarasy. Zamiast obietnic o byciu eko – fotowoltaika, która faktycznie obniża koszty części wspólnych. A w garażach? Tutaj znajdziesz przygotowane miejsce, w którym możesz zamontować własne gniazdo do ładowania auta elektrycznego, roweru czy hulajnogi. To już nie jest moda czy zachcianka. To przemyślany wybór. To przestrzeń wpisująca się w rytm naszej codzienności. Architektura osiedla harmonijnie wpisuje się w postindustrialny klimat Pragi. Fasady z okładzin imitujących cegły klinkierowe i tynków barwionych w masie nadają budynkowi wyjątkowego, ciepłego charakteru. Każdy detal projektu został dopracowany z myślą o komforcie i funkcjonalności mieszkańców.
Numer oferty: 84

Statystyki ogłoszenia:

oko

Inne mieszkania dostępne w tej inwestycji

Filtruj oferty x Resetuj filtry
-
-
-
Rzut
Nr ref.
Piętro
Pokoje
Powierzchnia Pow.
Cena
10 1 2 42,44 m2 742 700 zł Kijowska 17 - 10 - Warszawa, Praga Północ, Kijowska 17, 42.44m2
102 5 2 41,77 m2 726 798 zł Kijowska 17 - 102 - Warszawa, Praga Północ, Kijowska 17, 41.77m2
103 5 2 45,63 m2 789 399 zł Kijowska 17 - 103 - Warszawa, Praga Północ, Kijowska 17, 45.63m2
104 5 3 65,48 m2 1 100 064 zł Kijowska 17 - 104 - Warszawa, Praga Północ, Kijowska 17, 65.48m2
105 5 2 45,69 m2 790 437 zł Kijowska 17 - 105 - Warszawa, Praga Północ, Kijowska 17, 45.69m2
106 5 2 42,09 m2 732 366 zł Kijowska 17 - 106 - Warszawa, Praga Północ, Kijowska 17, 42.09m2
107 5 4 73,13 m2 1 287 088 zł Kijowska 17 - 107 - Warszawa, Praga Północ, Kijowska 17, 73.13m2
109 6 2 41,72 m2 730 100 zł Kijowska 17 - 109 - Warszawa, Praga Północ, Kijowska 17, 41.72m2
11 1 3 68,92 m2 1 130 288 zł Kijowska 17 - 11 - Warszawa, Praga Północ, Kijowska 17, 68.92m2
110 6 2 45,89 m2 798 486 zł Kijowska 17 - 110 - Warszawa, Praga Północ, Kijowska 17, 45.89m2
111 6 3 65,81 m2 1 112 189 zł Kijowska 17 - 111 - Warszawa, Praga Północ, Kijowska 17, 65.81m2
112 6 2 45,92 m2 799 008 zł Kijowska 17 - 112 - Warszawa, Praga Północ, Kijowska 17, 45.92m2
113 6 2 42,11 m2 741 136 zł Kijowska 17 - 113 - Warszawa, Praga Północ, Kijowska 17, 42.11m2
116 7 2 41,74 m2 751 320 zł Kijowska 17 - 116 - Warszawa, Praga Północ, Kijowska 17, 41.74m2
117 7 2 45,82 m2 824 760 zł Kijowska 17 - 117 - Warszawa, Praga Północ, Kijowska 17, 45.82m2
118 7 3 65,79 m2 1 151 325 zł Kijowska 17 - 118 - Warszawa, Praga Północ, Kijowska 17, 65.79m2
119 7 2 45,69 m2 822 420 zł Kijowska 17 - 119 - Warszawa, Praga Północ, Kijowska 17, 45.69m2
120 7 2 42,15 m2 758 700 zł Kijowska 17 - 120 - Warszawa, Praga Północ, Kijowska 17, 42.15m2
123 0 2 43,87 m2 767 725 zł Kijowska 17 - 123 - Warszawa, Praga Północ, Kijowska 17, 43.87m2
124 0 2 44,41 m2 777 175 zł Kijowska 17 - 124 - Warszawa, Praga Północ, Kijowska 17, 44.41m2
125 0 2 50,11 m2 876 925 zł Kijowska 17 - 125 - Warszawa, Praga Północ, Kijowska 17, 50.11m2
126 0 2 45,86 m2 802 550 zł Kijowska 17 - 126 - Warszawa, Praga Północ, Kijowska 17, 45.86m2
127 0 1 27,24 m2 482 148 zł Kijowska 17 - 127 - Warszawa, Praga Północ, Kijowska 17, 27.24m2
128 0 1 26,30 m2 465 510 zł Kijowska 17 - 128 - Warszawa, Praga Północ, Kijowska 17, 26.3m2
130 1 3 69,10 m2 1 133 240 zł Kijowska 17 - 130 - Warszawa, Praga Północ, Kijowska 17, 69.1m2
131 1 2 42,61 m2 745 675 zł Kijowska 17 - 131 - Warszawa, Praga Północ, Kijowska 17, 42.61m2
132 1 2 47,92 m2 824 224 zł Kijowska 17 - 132 - Warszawa, Praga Północ, Kijowska 17, 47.92m2
133 1 2 44,46 m2 764 712 zł Kijowska 17 - 133 - Warszawa, Praga Północ, Kijowska 17, 44.46m2
134 1 2 44,83 m2 766 593 zł Kijowska 17 - 134 - Warszawa, Praga Północ, Kijowska 17, 44.83m2
136 1 2 46,27 m2 777 336 zł Kijowska 17 - 136 - Warszawa, Praga Północ, Kijowska 17, 46.27m2
140 2 3 68,67 m2 1 126 188 zł Kijowska 17 - 140 - Warszawa, Praga Północ, Kijowska 17, 68.67m2
146 2 2 46,34 m2 797 048 zł Kijowska 17 - 146 - Warszawa, Praga Północ, Kijowska 17, 46.34m2
149 3 3 49,60 m2 1 190 000 zł Kijowska 17 - 149 - Warszawa, Praga Północ, Kijowska 17, 49.6m2
15 2 2 46,32 m2 778 176 zł Kijowska 17 - 15 - Warszawa, Praga Północ, Kijowska 17, 46.32m2
154 3 2 46,31 m2 787 270 zł Kijowska 17 - 154 - Warszawa, Praga Północ, Kijowska 17, 46.31m2
156 3 2 40,96 m2 926 000 zł Kijowska 17 - 156 - Warszawa, Praga Północ, Kijowska 17, 40.96m2
157 4 2 41,14 m2 765 204 zł Kijowska 17 - 157 - Warszawa, Praga Północ, Kijowska 17, 41.14m2
16 2 2 45,04 m2 770 184 zł Kijowska 17 - 16 - Warszawa, Praga Północ, Kijowska 17, 45.04m2
162 4 2 46,29 m2 791 559 zł Kijowska 17 - 162 - Warszawa, Praga Północ, Kijowska 17, 46.29m2
17 2 2 44,71 m2 755 599 zł Kijowska 17 - 17 - Warszawa, Praga Północ, Kijowska 17, 44.71m2
170 5 2 46,41 m2 807 534 zł Kijowska 17 - 170 - Warszawa, Praga Północ, Kijowska 17, 46.41m2
172 5 2 41,13 m2 715 662 zł Kijowska 17 - 172 - Warszawa, Praga Północ, Kijowska 17, 41.13m2
178 6 2 46,42 m2 812 350 zł Kijowska 17 - 178 - Warszawa, Praga Północ, Kijowska 17, 46.42m2
18 2 2 44,64 m2 754 416 zł Kijowska 17 - 18 - Warszawa, Praga Północ, Kijowska 17, 44.64m2
180 6 2 41 m2 717 500 zł Kijowska 17 - 180 - Warszawa, Praga Północ, Kijowska 17, 41m2
186 7 4 73,74 m2 1 305 198 zł Kijowska 17 - 186 - Warszawa, Praga Północ, Kijowska 17, 73.74m2
187 7 2 40,82 m2 738 842 zł Kijowska 17 - 187 - Warszawa, Praga Północ, Kijowska 17, 40.82m2
2 0 2 49,40 m2 815 100 zł Kijowska 17 - 2 - Warszawa, Praga Północ, Kijowska 17, 49.4m2
21 2 3 68,26 m2 1 126 290 zł Kijowska 17 - 21 - Warszawa, Praga Północ, Kijowska 17, 68.26m2
23 3 2 40,99 m2 927 000 zł Kijowska 17 - 23 - Warszawa, Praga Północ, Kijowska 17, 40.99m2
25 3 2 46,52 m2 790 840 zł Kijowska 17 - 25 - Warszawa, Praga Północ, Kijowska 17, 46.52m2
26 3 2 50,50 m2 858 500 zł Kijowska 17 - 26 - Warszawa, Praga Północ, Kijowska 17, 50.5m2
27 3 2 44,85 m2 766 935 zł Kijowska 17 - 27 - Warszawa, Praga Północ, Kijowska 17, 44.85m2
28 3 2 44,65 m2 763 515 zł Kijowska 17 - 28 - Warszawa, Praga Północ, Kijowska 17, 44.65m2
29 3 2 48,24 m2 820 080 zł Kijowska 17 - 29 - Warszawa, Praga Północ, Kijowska 17, 48.24m2
30 3 3 49,76 m2 1 194 240 zł Kijowska 17 - 30 - Warszawa, Praga Północ, Kijowska 17, 49.76m2
31 4 2 41,73 m2 726 102 zł Kijowska 17 - 31 - Warszawa, Praga Północ, Kijowska 17, 41.73m2
33 4 2 46,39 m2 793 269 zł Kijowska 17 - 33 - Warszawa, Praga Północ, Kijowska 17, 46.39m2
34 4 2 50,35 m2 858 468 zł Kijowska 17 - 34 - Warszawa, Praga Północ, Kijowska 17, 50.35m2
35 4 2 44,77 m2 770 044 zł Kijowska 17 - 35 - Warszawa, Praga Północ, Kijowska 17, 44.77m2
42 5 2 50,56 m2 864 576 zł Kijowska 17 - 42 - Warszawa, Praga Północ, Kijowska 17, 50.56m2
43 5 2 44,70 m2 768 840 zł Kijowska 17 - 43 - Warszawa, Praga Północ, Kijowska 17, 44.7m2
44 5 2 44,68 m2 768 496 zł Kijowska 17 - 44 - Warszawa, Praga Północ, Kijowska 17, 44.68m2
45 5 2 48,14 m2 823 194 zł Kijowska 17 - 45 - Warszawa, Praga Północ, Kijowska 17, 48.14m2
47 6 2 41,23 m2 729 771 zł Kijowska 17 - 47 - Warszawa, Praga Północ, Kijowska 17, 41.23m2
49 6 2 46,52 m2 809 448 zł Kijowska 17 - 49 - Warszawa, Praga Północ, Kijowska 17, 46.52m2
5 1 2 46,53 m2 739 827 zł Kijowska 17 - 5 - Warszawa, Praga Północ, Kijowska 17, 46.53m2
50 6 2 44,88 m2 785 400 zł Kijowska 17 - 50 - Warszawa, Praga Północ, Kijowska 17, 44.88m2
51 6 2 44,87 m2 785 225 zł Kijowska 17 - 51 - Warszawa, Praga Północ, Kijowska 17, 44.87m2
52 6 2 44,37 m2 776 475 zł Kijowska 17 - 52 - Warszawa, Praga Północ, Kijowska 17, 44.37m2
55 7 2 41,04 m2 738 720 zł Kijowska 17 - 55 - Warszawa, Praga Północ, Kijowska 17, 41.04m2
56 7 4 74,18 m2 1 312 986 zł Kijowska 17 - 56 - Warszawa, Praga Północ, Kijowska 17, 74.18m2
58 7 2 44,71 m2 804 780 zł Kijowska 17 - 58 - Warszawa, Praga Północ, Kijowska 17, 44.71m2
59 7 2 44,92 m2 808 560 zł Kijowska 17 - 59 - Warszawa, Praga Północ, Kijowska 17, 44.92m2
6 1 2 45,03 m2 720 480 zł Kijowska 17 - 6 - Warszawa, Praga Północ, Kijowska 17, 45.03m2
64 0 1 30,92 m2 547 284 zł Kijowska 17 - 64 - Warszawa, Praga Północ, Kijowska 17, 30.92m2
65 0 1 30,53 m2 534 275 zł Kijowska 17 - 65 - Warszawa, Praga Północ, Kijowska 17, 30.53m2
66 1 1 30,33 m2 512 577 zł Kijowska 17 - 66 - Warszawa, Praga Północ, Kijowska 17, 30.33m2
68 1 3 65,77 m2 1 078 628 zł Kijowska 17 - 68 - Warszawa, Praga Północ, Kijowska 17, 65.77m2
69 1 2 45,60 m2 752 400 zł Kijowska 17 - 69 - Warszawa, Praga Północ, Kijowska 17, 45.6m2
7 1 2 44,44 m2 706 596 zł Kijowska 17 - 7 - Warszawa, Praga Północ, Kijowska 17, 44.44m2
72 1 3 70,07 m2 1 163 162 zł Kijowska 17 - 72 - Warszawa, Praga Północ, Kijowska 17, 70.07m2
73 1 3 63,58 m2 1 080 860 zł Kijowska 17 - 73 - Warszawa, Praga Północ, Kijowska 17, 63.58m2
74 1 3 64,03 m2 1 088 510 zł Kijowska 17 - 74 - Warszawa, Praga Północ, Kijowska 17, 64.03m2
75 1 3 73,54 m2 1 220 764 zł Kijowska 17 - 75 - Warszawa, Praga Północ, Kijowska 17, 73.54m2
79 2 3 65,59 m2 1 075 676 zł Kijowska 17 - 79 - Warszawa, Praga Północ, Kijowska 17, 65.59m2
8 1 2 44,41 m2 746 088 zł Kijowska 17 - 8 - Warszawa, Praga Północ, Kijowska 17, 44.41m2
80 2 2 45,62 m2 752 730 zł Kijowska 17 - 80 - Warszawa, Praga Północ, Kijowska 17, 45.62m2
83 2 3 70,23 m2 1 172 841 zł Kijowska 17 - 83 - Warszawa, Praga Północ, Kijowska 17, 70.23m2
85 2 3 63,76 m2 1 090 296 zł Kijowska 17 - 85 - Warszawa, Praga Północ, Kijowska 17, 63.76m2
86 2 3 73,79 m2 1 239 672 zł Kijowska 17 - 86 - Warszawa, Praga Północ, Kijowska 17, 73.79m2
88 3 2 41,17 m2 915 000 zł Kijowska 17 - 88 - Warszawa, Praga Północ, Kijowska 17, 41.17m2
89 3 2 45,60 m2 779 760 zł Kijowska 17 - 89 - Warszawa, Praga Północ, Kijowska 17, 45.6m2
9 1 2 47,88 m2 813 960 zł Kijowska 17 - 9 - Warszawa, Praga Północ, Kijowska 17, 47.88m2
90 3 3 65,60 m2 1 095 520 zł Kijowska 17 - 90 - Warszawa, Praga Północ, Kijowska 17, 65.6m2
91 3 2 45,90 m2 789 480 zł Kijowska 17 - 91 - Warszawa, Praga Północ, Kijowska 17, 45.9m2
92 3 2 42,03 m2 924 030 zł Kijowska 17 - 92 - Warszawa, Praga Północ, Kijowska 17, 42.03m2
93 3 4 78,67 m2 1 788 012 zł Kijowska 17 - 93 - Warszawa, Praga Północ, Kijowska 17, 78.67m2
94 3 4 82,34 m2 1 875 000 zł Kijowska 17 - 94 - Warszawa, Praga Północ, Kijowska 17, 82.34m2
95 4 2 41,73 m2 721 929 zł Kijowska 17 - 95 - Warszawa, Praga Północ, Kijowska 17, 41.73m2
96 4 2 45,81 m2 787 932 zł Kijowska 17 - 96 - Warszawa, Praga Północ, Kijowska 17, 45.81m2
97 4 3 65,84 m2 1 099 528 zł Kijowska 17 - 97 - Warszawa, Praga Północ, Kijowska 17, 65.84m2
98 4 2 45,89 m2 789 308 zł Kijowska 17 - 98 - Warszawa, Praga Północ, Kijowska 17, 45.89m2
99 4 2 42,09 m2 728 157 zł Kijowska 17 - 99 - Warszawa, Praga Północ, Kijowska 17, 42.09m2

Podobne nieruchomości