Lokal użytkowy 24,5 m² w centrum Warszawy, Chmielna Warszawa, Śródmieście, Chmielna 21 - 24,51m2
2 600
zł
106,08 zł/m2
POWIERZCHNIA
24,51 m2
PRZEZNACZENIE
usługi
PIĘTRO
parter / 3
Szczegóły
- Kategoria Lokale użytkowe na wynajem
- Lokalizacja mazowieckie, Warszawa, Śródmieście, Chmielna 21
- Powierzchnia całkowita24,51 m2
-
Cena
2 600 zł
-
Czynsz administracyjny
0 zł
- Cena za m2 106,08 zł/m2
- Liczba pomieszczeń 3
- Piętro Parter
- Liczba pięter w budynku 3
- Przeznaczenie usługi, handel, gabinet
Lokalizacja
Opis oferty
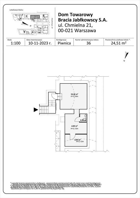
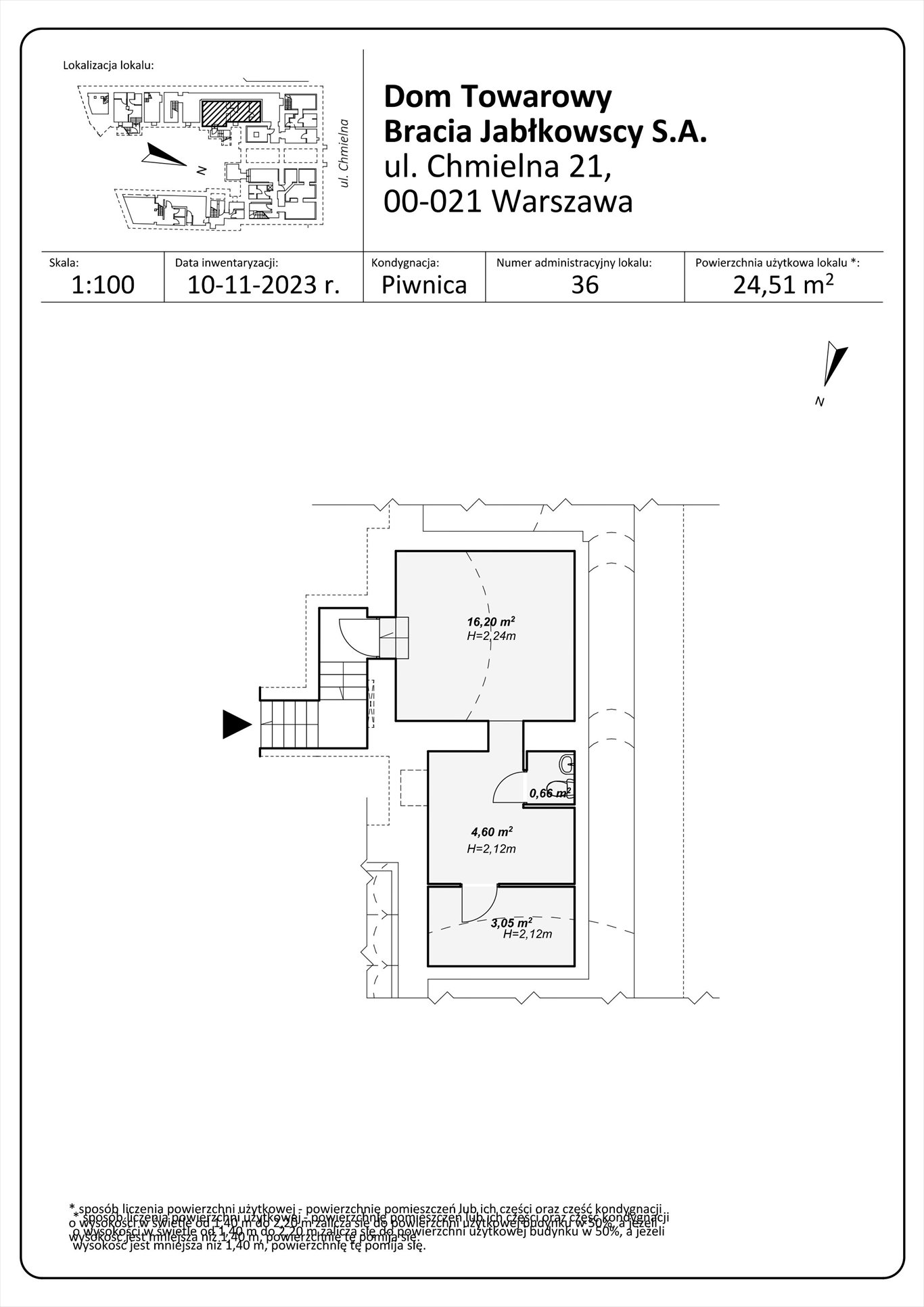
Oferujemy do wynajęcia lokal o powierzchni 24,51 mkw. należący do Spółki Dom Towarowy Bracia Jabłkowscy S.A., położony w suterenie prawej oficyny zabytkowej Kamienicy Jabłkowskich przy ul. Chmielnej 21 – tuż obok Placu 5 Rogów.
Lokal składa się z trzech pomieszczeń o powierzchni 16,20 m², 4,60 m² i 3,05 m² oraz łazienki (szczegółowy plan dostępny w galerii). Ogrzewanie jest elektryczne, jednak dzięki korzystnie wynegocjowanym stawkom koszty energii elektrycznej pozostają niewygórowane – rozliczane według faktycznego zużycia energii.
Minimalny okres najmu: 2 lata
Czynsz: 2 600 zł netto
Koszty eksploatacyjne: 500 zł netto
Lokal idealnie sprawdzi się jako pracownia, gabinet usługowy lub magazyn pomocniczy w centrum miasta.
Lokal do wynajęcia bez wyposażenia.
Kontakt:
tel. 609pokaż telefon lub 22 8pokaż telefon, adres email: biurskontaktuj się
Statystyki ogłoszenia:
Podobne nieruchomości