Lokal użytkowy na wynajem
Warszawa, Śródmieście,
Marszałkowska
6 900 PLN
73 zł/m2
Opis
Więcej
Zadbana, 5-piętrowa kamienica z cegły z 1953 roku , położona w ścisłym centrum Warszawy przy ulicy Marszałkowskiej, na odcinku między Placem Unii Lubelskiej a Placem Zbawiciela. Tuż obok budynku znajdują się przystanki autobusowe i tramwajowe, a nieopodal także stacja metra . Wieczorem warto odwiedzić reastauracje takie jak Venezia czy Chleb i Wino, a także skorzystać z oferty Teatru Rozmaitości. W budynku wymieniono instalacje, a także windę na nowoczesną, marki Schindler. Wejście przez podwójny domofon i zamykane podwórko.
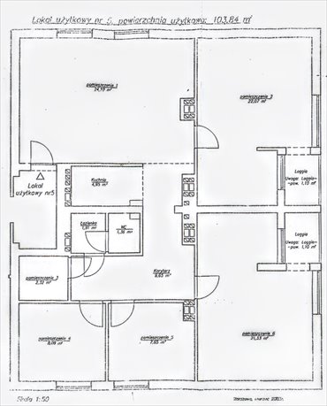
Lokal - przestronny, widny, rozkładowy, o powierzchni 100 m 2 . Doskonały na kancelarię prawną lub eleganckie biuro. Położony na 3 piętrze budynku. Składa się z 4 pokoi. Największy pokój 26 m 2 jest przechodni; doskonale nadaje się np. na salę konferencyjną. Okna wychodzą na wewnętrzne podwórko (południe). Z salonu wejście do pokoju 18,5 m 2 z balkonem 3,5 m 2 od strony południowej - podwórko. 2 pokoje 22 m 2 i 9 m 2 mają okna wychodzące na Litewską. W pokojach posadzka z parkietu.
Oddzielna, widna kuchnia 13 m 2 jest w pełni umeblowana i wyposażona w sprzęt AGD - zmywarkę, pralkę, lodówkę, piekarnik, płytę ceramiczną. Okno kuchni wychodzi na ulicę (północ). Łazienka 4,7 m 2 jest wyposażona w wannę, umywalkę i bidet, a toaleta stanowi oddzielne pomieszczenie 1,5 m 2 . W przestronnym przedpokoju zamontowano domofon oraz drzwi antywłamaniowe. Do lokalu przynależy duża piwnica ok. 12 m 2 , z której może korzystać najemca. Samochód można parkować na wewnętrznym podwórku zamykanym na pilota.
Lokal będzie dostępny bez mebli.
Lokal dostępny - można oglądać - zapraszam.
Akces Nieruchomości, Warszawa, mieszkanie, wynajem
::DODATKOWE INFORMACJE
Rodzaj budynku: socrealizm (lata 45-60)
Głośność: bardzo ciche
Gaz: brak
Woda: miejska
Dojazd: ulica asfaltowa
Dojazd - opis: metro: stacja Politechnika;
tramwaje: 4, 10, 14, 18;
autobusy: 117, 210
Otoczenie: tereny zurbanizowane
Ogrzewanie: co miejskie
Linie telefoniczne: TAK
Internet: TAK
Komunikacja publ.: tramwaj, autobus
Winda: TAK
Liczba wind: 1
Rozkład: dwustronnie rozkładowe
Sąsiedztwo: tereny zurbanizowane
Usytuowanie: środkowe
Drzwi antywłamaniowe: TAK
Możliwość parkowania: tak
Naziemn. miejsc parking.: 1
Opis miejsc parking.: na wewnętrznym podwórku
Położenie lokalu: na uboczu
Witryna wystawowa: brak
Wejście: frontowe
Liczba wejść: 1
Okolica: Teatr Rozmaitości, Plac Unii Lubelskiej, Plac Zbawiciela
Kategoria biurowca: C
Min. okres naj. (mies.): 12
Opłaty wg liczników: internet, śmieci, CO, woda, prąd
Indeksacja: roczna
Piwnica/komórka [m2]: 12
Stan lokalu: dobry
Okna: PCV nowe
Instalacje: nowe
Balkon/taras: jest
Rok budowy: 1953
Rodzaj lokalu: jednopoziomowy
Przeznaczenie lokalu: biurowe
Miejsce na reklamę: elewacja
Liczba pokoi: 4
Wysokość pomieszczeń [m]: 3,2000
Liczba pomieszczeń biurowych: 4
Powierzchnia pomieszczeń biurowych od [m2]: 9
Powierzchnia pomieszczeń biurowych do [m2]: 2613
Liczba pomieszczeń socjalnych: 1
Powierzchnia pomieszczeń socjalnych [m2]: 13
Uw. do pom. socjalnych: oddzielna, widna kuchnia
Liczba pomieszczeń sanitarnych: 2
Powierzchnia pomieszczeń sanitarnych [m2]: 6,2000
Uw. do pom. sanitarnych: łazienka z wanną, umywalką i bidetem i wc
Kaucja zabezp. [zł]: 6500
::LINK DO STRONY
http://www.akcespolska.com/oferta/43201?iduser=15
::KONTAKT DO AGENTA
Andrzej Dmochowski
22 844 22 02
602 22 99 53
a.dmochowski@akcespolska.com
::DANE BIURA
AKCES Nieruchomości Ursynów
Aleja Komisji Edukacji Narodowej 96
02-777 Warszawa
22 855 02 20
www.akcespolska.com
Pośrednik odpowiedzialny zawodowo za wykonanie umowy pośrednictwa: Andrzej Dmochowski (licencja nr: 1278)
Oferta wysłana z systemu Galactica Virgo
- Lokal użytkowy:
- na wynajem
- Powierzchnia całkowita:
- 95 m2
- Lokalizacja:
- województwo: mazowieckie powiat: Warszawa miejscowość: Warszawa dzielnica: Śródmieście ulica: Marszałkowska