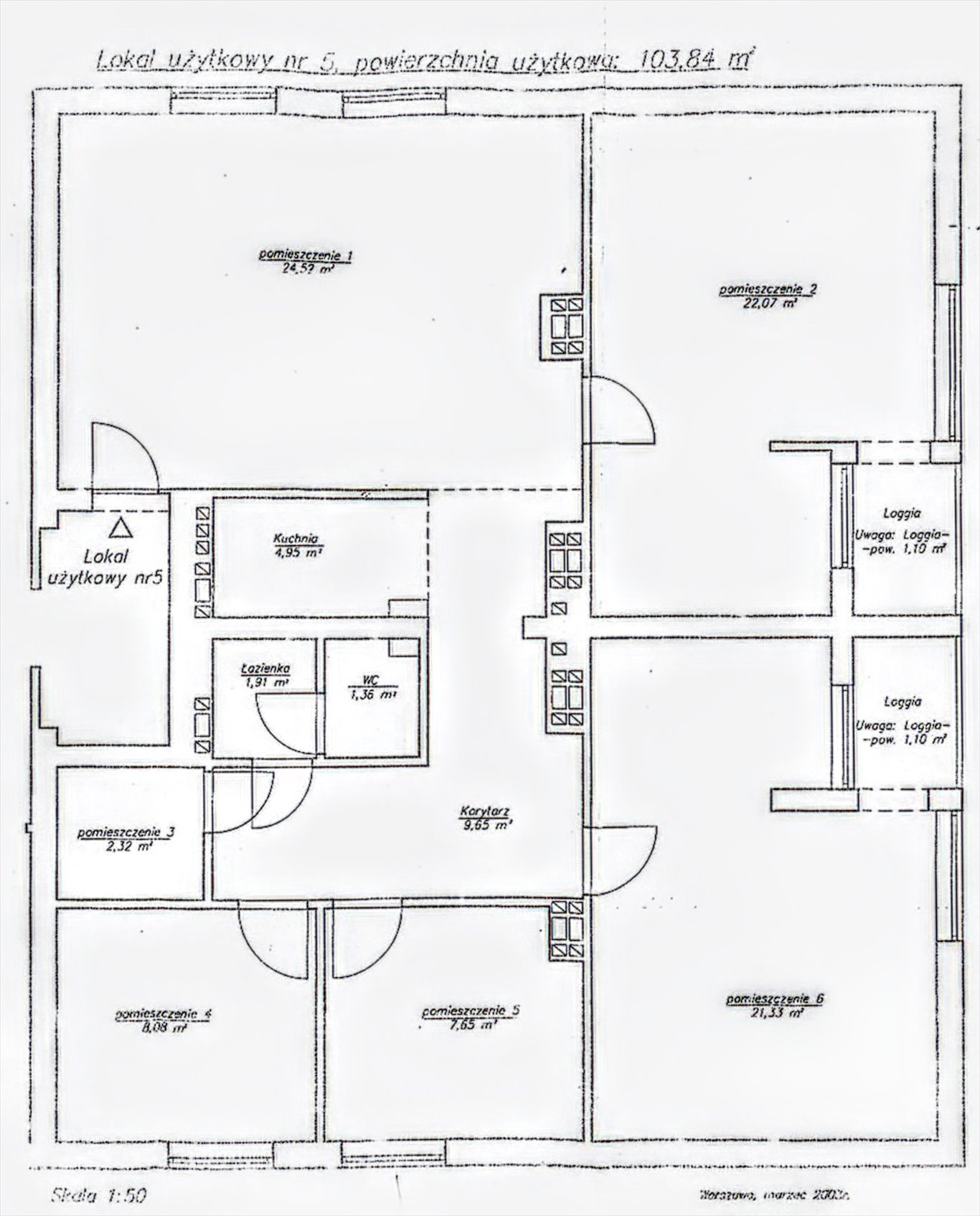
Lokal użytkowy na wynajem Warszawa, Śródmieście, Pl. Mirowski 14 - 103,84m2
6 500
zł
62,60 zł/m2
POWIERZCHNIA
103,84 m2
PRZEZNACZENIE
biuro
PIĘTRO
1 / 6
Szczegóły Data dodania: 3 dni temu
- Kategoria Lokale użytkowe na wynajem
- Lokalizacja mazowieckie, Warszawa, Śródmieście, Pl. Mirowski 14
- Powierzchnia całkowita103,84 m2
-
Cena
6 500 zł
-
Czynsz administracyjny
0 zł
- Cena za m2 62,60 zł/m2
- Liczba pomieszczeń 6
- Piętro 1
- Liczba pięter w budynku 6
- Rok budowy 1977
- Przeznaczenie biuro
- Informacje dodatkowe:
- kanalizacja, ogrzewanie, winda osobowa, winda towarowa, zaplecze socjalne
- Okolica:
- apteka, autobus, bazarek osiedlowy, metro, niska zabudowa, poczta, przychodnia, tramwaj
Lokalizacja
Opis oferty
PRZETARG NA NAJEM LOKALU UŻYTKOWEGO PRZY PL. MIROWSKIM 14 W WARSZAWIE
Spółdzielnia Mieszkaniowa "Żelazna Brama" (pl. Mirowski 14, 00-138 Warszawa; wynajmie w drodze pisemnego przetargu nieograniczonego lokal użytkowy nr U5 o powierzchni 103,84 m2 usytuowany na pierwszym piętrze budynku przy pl. Mirowskim 14 w Warszawie.
Lokal w sąsiedztwie Hali Mirowskiej przy placu Mirowskim 14, gdzie znajdują się liczne punkty handlowe i usługowe.
Oferty należy składać do dnia 19.01.2026 r. do godziny 16:00 w Sekretariacie Spółdzielni przy pl. Mirowskim 14 w Warszawie (wejście od ul. Elektoralnej nad sklepem Rossmann) w zaklejonej kopercie z dopiskiem "Przetarg na najem lokalu użytkowego nr U5 przy Pl. Mirowski 14".
Oferty będą otwarte w dniu 19.01.2026 r. o godzinie 17:00. Oferent powinien być dostępny pod numerem telefonu wskazanym w ofercie w ciągu dwóch godzin od terminu otwarcia ofert.
Oferta powinna zawierać:
imię i nazwisko lub nazwę firmy, adres siedziby, numer telefonu, adres e-mail;
aktualny wypis z CEIDG lub KRS;
rodzaj działalności jaka będzie prowadzona w lokalu;
oferowaną stawkę czynszu netto za 1 m2lokalu oraz oferowaną stawkę czynszu netto za 1 m2 piwnicy;
następujące zaświadczenia wystawione nie wcześniej niż jeden miesiąc przed terminem składania ofert:
− zaświadczenie z Urzędu Skarbowego o niezaleganiu w podatkach;
− zaświadczenie z ZUS o niezaleganiu w opłacaniu składek;
− zaświadczenie (lub dokument) z banku, w którym oferent prowadzi rachunek potwierdzające sytuację finansową oferenta zapewniającą wypłacalność;
oświadczenie oferenta o zapoznaniu się ze stanem technicznym lokalu i wzorem umowy najmu;
oświadczenie oferenta o przeprowadzeniu prac wykończeniowych i adaptacyjnych lokalu (w tym montażu klimatyzacji i oświetlenia awaryjnego) na własny koszt;
datę i podpis oferenta lub osób go reprezentujących oraz upoważnienie do reprezentowania oferenta – jeżeli ofertę podpisuje osoba nie wskazana w CEIDG lub KRS.
Ważne informacje:
czynsz nie obejmuje następujących opłat przypadających na lokal: kosztów mediów, podatku od nieruchomości oraz opłaty za szyld reklamowy mocowany do elewacji nad witryną lokalu;
lokal do własnej aranżacji;
szczegółowych wiadomości dotyczących przetargu i najmowanego lokalu można uzyskać kontaktując się bezpośrednio ze Spółdzielnią;
lokal można obejrzeć po umówieniu terminu ze Spółdzielnią;
Spółdzielnia nie wyraża zgody na prowadzenie w lokalu działalności gospodarczej uciążliwej dla mieszkańców;
warunkiem podpisania umowy najmu jest wpłata kaucji stanowiącej równowartość dwukrotności czynszu brutto;
złożona oferta nie podlega zwrotowi;
Spółdzielnia zastrzega sobie prawo do unieważnienia przetargu bez podania przyczyn.
Statystyki ogłoszenia:
Podobne nieruchomości