Nowoczesny lokal biurowy 129 m2 w centrum Warszawy Warszawa, Śródmieście, Śródmieście - 129,0m2
POWIERZCHNIA
129,00 m2
PRZEZNACZENIE
biuro
PIĘTRO
-
Szczegóły oferty BW-14331 Data dodania: wczoraj
- Kategoria Lokale użytkowe na wynajem
- Lokalizacja mazowieckie, Warszawa, Śródmieście, Śródmieście
- Powierzchnia całkowita129 m2
-
Cena
7 869 zł
- Cena za m2 61 zł/m2
- Przeznaczenie biuro
Lokalizacja
Opis oferty
Centrum, Al. Jerozolimskie / Pl. Zawiszy.
Kamienica biurowa w bardzo dobrej lokalizacji pod względem komunikacji miejskiej.
W standardzie m.in sieć komputerowa, klimatyzacja, ochrona, recepcja.
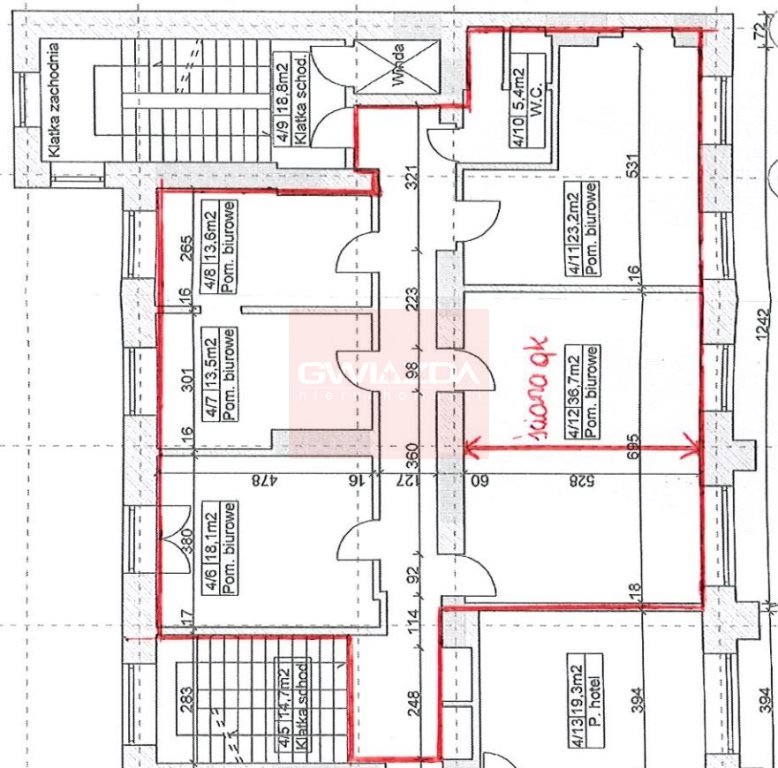
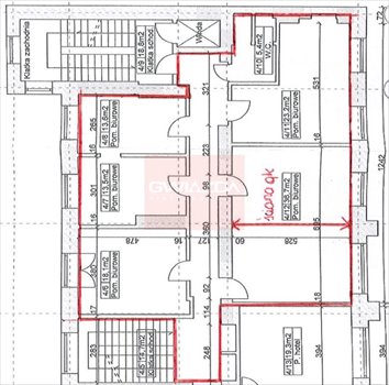
Do wynajęcia powierzchnia biurowa na piętrze trzecim 129 mkw. podzielona obecnie na gabinety z własnym WC.
Do dyspozycji Najemcy są również naziemne miejsca parkingowe w cenie 300 zł/-m-c netto.
Najem biur 61 zł/mkw. plus 22 zł/mkw. koszty eksploatacyjne.
Dodatkowo płatna energia elektryczna.
::LINK DO STRONY
http://www.gwiazda.info/oferta.aspx?id=14349
Oferta wysłana z systemu Galactica Virgo
Numer oferty: BW-14331
Statystyki ogłoszenia:
Podobne nieruchomości