ico powierzchnia

POWIERZCHNIA

97,91 m2

ico przeznaczenie

PRZEZNACZENIE

biuro

ico pietro

PIĘTRO

parter / 6

Szczegóły oferty 2517 Data dodania: 11 dni temu

  • Kategoria Lokale użytkowe na wynajem
  • Lokalizacja podlaskie, Łomża, Akademicka
  • Powierzchnia całkowita97,91 m2
  • Cena

    3 000 zł

  • Cena za m2 30,64 zł/m2
  • Liczba pomieszczeń 1
  • Piętro Parter
  • Liczba pięter w budynku 6
  • Dostępne od29.01.2026r.
  • Rok budowy 2025
  • Forma własności własność
  • Przeznaczenie biuro
Informacje dodatkowe:
ogrzewanie

Lokalizacja

Łomża, Akademicka

Opis oferty

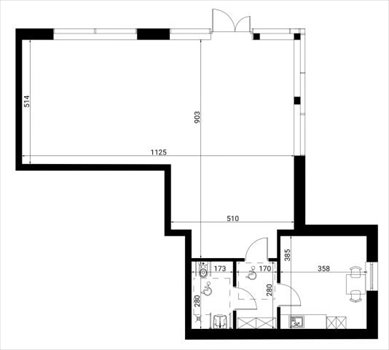
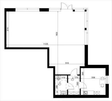
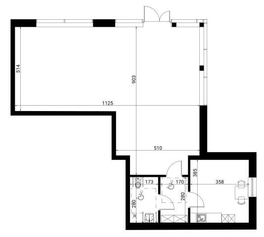
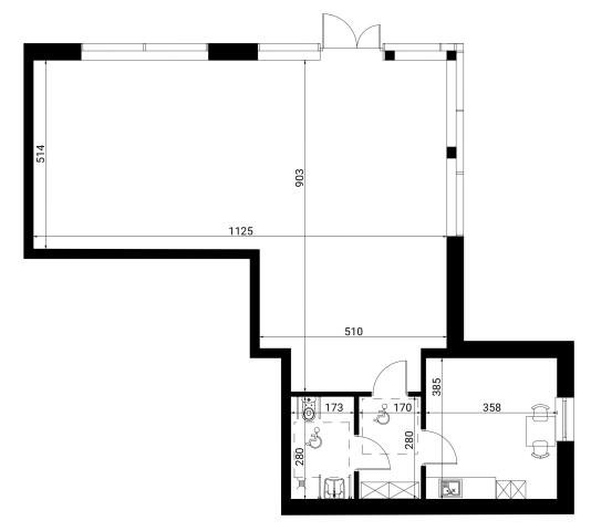
Oferta wynajmu lokalu usługowego (stan deweloperski), położonego w Łomży, ul. Akademicka 42 (nowe budownictwo, blok z 2025r.).

Charakterystyka:

- hala usługowa około: 74,51 m2, wejście bezpośrednio z chodnika,

- pomieszczenie socjalne około: 13,80 m2,

- hall: 4,80 m2,

- WC około: 4,80 m2.

Dla wygody nowego najemcy, na parkingu znajdującym się bezpośrednio po wyjściu z lokalu, dedykowanych jest aż 5 miejsc postojowych zewnętrznych, numery odpowiednio: 17, 18, 19, 20, 21.

Media: woda, kanalizacja - miejskie.

Niekwestionowanym atutem nieruchomości jest jej lokalizacja, a także przeznaczenie.

W bliskiej okolicy nowy najemca odnajdzie: zabudowę wielorodzinną, optymalną infrastrukturę drogową (swobodny dojazd do każdej częścią miasta Łomży), sklepy, punkty handlowo-usługowe, etc.

Oferowana nieruchomość może być przeznaczona zarówno jako lokal biurowy, lub handlowo-usługowy.

Opłaty w dniu podpisania umowy najmu: 

- 3.000 zł + 800 zł (czynsz do Wspólnoty Mieszkaniowej) + opłaty za media wg. indywidualnego zużycia (opłata dla właściciela),

- 3.000 zł kaucja zwrotna,

- 2.000 zł (opłata biura nieruchomości).

Podana kwota 3.000 zł jest ceną netto, należy doliczyć VAT 23%.

Jeżeli zainteresowała Cię ta oferta, zadzwoń i umów się na jej prezentację.

Zapraszam do kontaktu.

Potrzebujesz dodatkowego finansowania kupowanej nieruchomości? W ramach współpracy z naszym biurem bezpłatnie doradzimy wybór najlepszej oferty kredytowej. Szczegóły u naszych pracowników.

Treść niniejszego ogłoszenia nie stanowi oferty handlowej w rozumieniu Kodeksu Cywilnego.


Numer oferty: 2517
Nr licencji zawodowej: 17180

Statystyki ogłoszenia:

oko

Podobne nieruchomości