Nowoczesne biuro 483 m² w Krakowie, Czyżyny, gotowe do wynajęcia Kraków, Czyżyny, Czyżyny - 482,51m2
Oferta na wyłączność
29 313 zł 60,75 zł/m2POWIERZCHNIA
482,51 m2
PRZEZNACZENIE
biuro
PIĘTRO
3 / 3
Szczegóły oferty 2206/6342/OLW
- Kategoria Lokale użytkowe na wynajem
- Lokalizacja małopolskie, Kraków, Czyżyny, Czyżyny
- Powierzchnia całkowita482,51 m2
-
Cena
6 514 EUR (29 313 zł)
- Cena za m2 13,50 EUR (60,75 zł/m2)
- Liczba pomieszczeń 7
- Piętro 3
- Liczba pięter w budynku 3
- Rok budowy 2015
- Przeznaczenie biuro
- Informacje dodatkowe:
- klimatyzacja, sieć komputerowa
Lokalizacja
Opis oferty
Emmerson poleca:
Śliczne biuro przy ul. Prof. M. Życzkowskiego/ okolice Jana Pawła II - Czyżyny
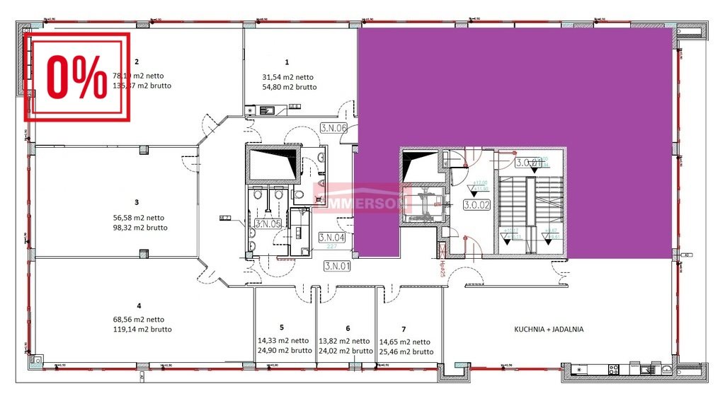
Lokal biurowy do wynajęcia o powierzchni 447,77 m2 netto (powierzchnia najmu brutto: 482,51 m²) na III piętrze budynku biurowego zlokalizowanego w Krakowski Park Technologiczny czyli w specjalnej strefie ekonomicznej.
Lokal jest nowocześnie urządzony i wyposażony w materiały wysokiej jakości.
Gotowy do wejścia od zaraz!!!
Czynsz bazowy: 13,50 EUR/m2 /mies. netto.
Opłata eksploatacyjna: 12,50 PLN/m2 /mies. netto.
Miejsca parkingowe naziemne: 200 PLN netto/miejsce/mies.
Współczynnik powierzchni wspólnej budynku 5%
Można wynająć go w całości lub poszczególne pomieszczenia z dostępem do części wspólnych (kuchni z jadalnią oraz toalety)
Budynek biurowy, oferuje do wynajęcia powierzchnie klasy A w znakomitym sąsiedztwie biznesowym.
Dzięki doskonałej lokalizacji oraz dobrze rozwiniętej w tym rejonie sieci komunikacyjnej, możliwe jest dotarcie do centrum miasta w 10 minut.
Odległość od Dworca PKP/PKS czy Rynku Głównego wynosi zaledwie 4km a bliskość obwodnicy (autostrady A4) Krakowa gwarantuje szybkie połączenie z lotniskiem w Balicach.
Pionową obsługę komunikacyjną zapewnia klatka schodowa oraz winda.
Powyższa oferta ma charakter informacyjny i nie stanowi oferty handlowej w rozumieniu art. 66 par. 1 Kodeksu Cywilnego oraz innych właściwych przepisów prawnych.
Zachęcam do oglądania:
Sabina Jeleniewicz
516pokaż telefon
sabina.jelskontaktuj się Oferta wysłana z programu dla biur nieruchomości ASARI CRM (asaricrm.com)
Numer oferty: 2206/6342/OLW
Nr licencji zawodowej: 4534
Śliczne biuro przy ul. Prof. M. Życzkowskiego/ okolice Jana Pawła II - Czyżyny
Lokal biurowy do wynajęcia o powierzchni 447,77 m2 netto (powierzchnia najmu brutto: 482,51 m²) na III piętrze budynku biurowego zlokalizowanego w Krakowski Park Technologiczny czyli w specjalnej strefie ekonomicznej.
Lokal jest nowocześnie urządzony i wyposażony w materiały wysokiej jakości.
Gotowy do wejścia od zaraz!!!
Czynsz bazowy: 13,50 EUR/m2 /mies. netto.
Opłata eksploatacyjna: 12,50 PLN/m2 /mies. netto.
Miejsca parkingowe naziemne: 200 PLN netto/miejsce/mies.
Współczynnik powierzchni wspólnej budynku 5%
Można wynająć go w całości lub poszczególne pomieszczenia z dostępem do części wspólnych (kuchni z jadalnią oraz toalety)
Budynek biurowy, oferuje do wynajęcia powierzchnie klasy A w znakomitym sąsiedztwie biznesowym.
Dzięki doskonałej lokalizacji oraz dobrze rozwiniętej w tym rejonie sieci komunikacyjnej, możliwe jest dotarcie do centrum miasta w 10 minut.
Odległość od Dworca PKP/PKS czy Rynku Głównego wynosi zaledwie 4km a bliskość obwodnicy (autostrady A4) Krakowa gwarantuje szybkie połączenie z lotniskiem w Balicach.
Pionową obsługę komunikacyjną zapewnia klatka schodowa oraz winda.
Powyższa oferta ma charakter informacyjny i nie stanowi oferty handlowej w rozumieniu art. 66 par. 1 Kodeksu Cywilnego oraz innych właściwych przepisów prawnych.
Zachęcam do oglądania:
Sabina Jeleniewicz
516pokaż telefon
sabina.jelskontaktuj się Oferta wysłana z programu dla biur nieruchomości ASARI CRM (asaricrm.com)
Numer oferty: 2206/6342/OLW
Nr licencji zawodowej: 4534
Statystyki ogłoszenia:
Podobne nieruchomości