W pełni wyposażony lokal biurowy 200 m² z dwoma kondygnacjami Białystok, Warszawska - 200,0m2
8 900
zł
44,50 zł/m2
POWIERZCHNIA
200,00 m2
PRZEZNACZENIE
biuro
PIĘTRO
parter / 2
Szczegóły oferty 2452/4158/OLW
- Kategoria Lokale użytkowe na wynajem
- Lokalizacja podlaskie, Białystok, Warszawska
- Powierzchnia całkowita200 m2
-
Cena
8 900 zł
- Cena za m2 44,50 zł/m2
- Piętro Parter
- Liczba pięter w budynku 2
- Rok budowy 1945
- Forma własności własność
- Przeznaczenie biuro
- Informacje dodatkowe:
- klimatyzacja, sieć komputerowa
Lokalizacja
Opis oferty
Szukasz przestrzeni na biuro, kancelarię lub siedzibę firmy? To idealna propozycja! Funkcjonalny i gotowy do użytkowania lokal o dużym potencjale aranżacyjnym, przystosowany do prowadzenia działalności biurowej.
Najważniejsze atuty lokalu:
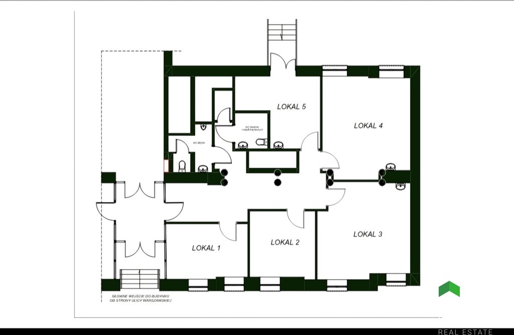
Lokal 1,2,5 mają po 20m2,
Lokal 3,4 mają po 35m2.
Zadzwoń i umów się na prezentację! Lokal dostępny do obejrzenia w dogodnym terminie.
Podana cena jest ceną netto.
Numer oferty w biurze nieruchomości: 2452/4158/OLW
- Zadzwoń już dziś i umów się na bezpłatną prezentację -
- Wynajmuj bezpiecznie z Express House - Oferta wysłana z programu dla biur nieruchomości ASARI CRM (asaricrm.com)
Numer oferty: 2452/4158/OLW
Najważniejsze atuty lokalu:
- powierzchnia 200 m² – dwie kondygnacje: parter i piwnica,
- układ pomieszczeń idealny pod biura – możliwość wydzielenia kilku niezależnych gabinetów,
- doskonała lokalizacja – wejście bezpośrednio z ulicy oraz dodatkowe wejście od zaplecza,
- komfort pracy – dostęp do internetu, klimatyzacja, wentylacja, instalacja pod nagłośnienie,
- elastyczna aranżacja – łatwe dostosowanie przestrzeni do indywidualnych potrzeb,
- zaplecze socjalne – możliwość urządzenia kuchni, archiwum, magazynu.
- parter: przestrzeń biurowa (gabinetowa i open space), pomieszczenie socjalne, zaplecze, 2 toalety,
- piwnica: dodatkowa przestrzeń magazynowa / archiwum, toaleta.
- czynsz: 8900 zł netto/mies.,
- opłaty eksploatacyjne: 2000 zł/mies. (ogrzewanie, wywóz śmieci, sprzątanie, odśnieżanie, konserwacja, 2 miejsca parkingowe),
- media (woda, prąd): według zużycia,
- kaucja: jednomiesięczny czynsz,
- umowa: min. 3 lata.
Lokal 1,2,5 mają po 20m2,
Lokal 3,4 mają po 35m2.
Zadzwoń i umów się na prezentację! Lokal dostępny do obejrzenia w dogodnym terminie.
Podana cena jest ceną netto.
Numer oferty w biurze nieruchomości: 2452/4158/OLW
- Zadzwoń już dziś i umów się na bezpłatną prezentację -
- Wynajmuj bezpiecznie z Express House - Oferta wysłana z programu dla biur nieruchomości ASARI CRM (asaricrm.com)
Numer oferty: 2452/4158/OLW
Statystyki ogłoszenia:
Podobne nieruchomości