Mieszkanie trzypokojowe na sprzedaż Wrocław, Fabryczna, Nowodworska - 51,94m2
701 190
zł
13 500 zł/m2
POWIERZCHNIA
51,94 m2
PIĘTRO
1 / 5
LICZBA POKOI
3
PARKING
miejsce parkingowe
Szczegóły oferty EX966722 Data dodania: 15 dni temu
- Kategoria Mieszkania na sprzedaż
- Lokalizacja dolnośląskie, Wrocław, Fabryczna, Nowodworska
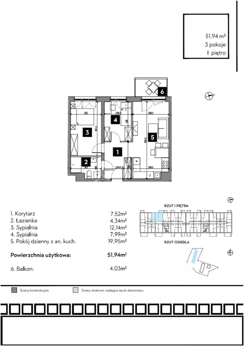
- Powierzchnia całkowita51,94 m2
-
Cena
701 190 zł
- Cena za m2 13 500 zł/m2
- Liczba pokoi 3
- Piętro 1
- Liczba pięter w budynku 5
- Typ budynkuinny
- Rok budowy 2025
- Informacje dodatkowe:
- miejsce parkingowe, balkon
Lokalizacja
Opis oferty
Nowoczesne mieszkanie 51,94 m2 z balkonem 4,03 m2 na nowym osiedlu przy ul. Nowodworskiej. Przestrzeń stworzona z myślą o wygodzie i funkcjonalności.
MIESZKANIE
Trzypokojowe mieszkanie na 1. piętrze z windą, sprzedawane w stanie deweloperskim.
Przemyślany rozkład:
salon z aneksem kuchennym 19,95 m2
dwie sypialnie (7,99m2 i 12,14 m2)
łazienka 4,34m2
korytarz 7,52 m2
balkon 4,03 m2 idealny do porannej kawy i wieczornego relaksu.
CENA: 701 190 zł (13 500 zł/m²)
Brak prowizji i podatku PCC.
Termin zakończenia budowy: IV kwartał 2025r.
Symbol A1/1/6
LOKALIZACJA
Północna część Nowego Dworu to połączenie spokoju i doskonałej komunikacji.
2 minuty do sklepu,
3 minuty do przystanku MPK z bezpośrednim dojazdem do centrum,
5 minut rowerem do Parku Tysiąclecia,
16 minut samochodem do Rynku
Dzielnica, która przyciąga młodych wrocławian i rodziny szukające komfortu w dobrze skomunikowanej lokalizacji.
DODATKOWE ATUTY
cichobieżna winda,
Smart Home
ogrzewanie podłogowe miejskie,
miejsca postojowego w garażu podziemnym od 35 000 zł.
możliwość wykończenia pod klucz
Możliwość pomocy w projekcie i doborze wykonawców. Zapraszam na spotkanie!
Marietta Romanowska
tel. 664pokaż telefon
*Oferta ma charakter informacyjny i nie stanowi oferty handlowej w rozumieniu art. 66 § 1 Kodeksu Cywilnego.
Zainteresowany? Zadzwoń teraz i umów się na spotkanie online
Numer oferty: EX966722
Statystyki ogłoszenia:
Podobne nieruchomości