Przestronne 3-pokojowe mieszkanie z balkonem i panoramicznym widokiem Warszawa, Wola, Jana Olbrachta - 54,31m2
650 000
zł
11 968,33 zł/m2
POWIERZCHNIA
54,31 m2
PIĘTRO
7 / 10
LICZBA POKOI
3
PARKING
-
Szczegóły oferty OB330593 Data dodania: 2 dni temu
- Kategoria Mieszkania na sprzedaż
- Lokalizacja mazowieckie, Warszawa, Wola, Jana Olbrachta
- Powierzchnia całkowita54,31 m2
-
Cena
650 000 zł
-
Czynsz administracyjny
750 zł
- Cena za m2 11 968,33 zł/m2
- Liczba pokoi 3
- Piętro 7
- Liczba pięter w budynku 10
- Typ budynkublok
- Rok budowy 1973
- Materiał inny
- Informacje dodatkowe:
- winda
Lokalizacja
Opis oferty
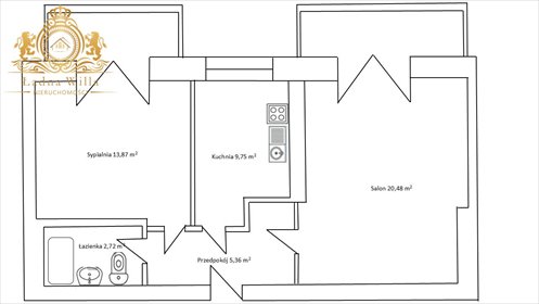
Na sprzedaż kompaktowe, rozkładowe 3-pokojowe mieszkanie o powierzchni 54,31 m², zlokalizowane w budynku z lat 70-tych przy ul. Jana Olbrachta w zielonej części na Woli (Ulrychów), blisko do metra M2 (Księcia Janusza). W skład mieszkania wchodzą:
salon (ok. 16 m²) z wyjściem na balkon z panoramicznym widokiem na ogródki działkowe
dwa oddzielne pokoje (ok. 10 m² i 9 m²),
oddzielna, widna kuchnia,
łazienka z kabiną prysznicową,
osobne WC,
przestronny przedpokój (z miejscami na dwie szafy wnękowe).
Lokal dwustronny, ekspozycja okien: wschód, zachód, co zapewnia doskonałe nasłonecznienie przez cały dzień.
Na podłogach znajduje się drewniany parkiet (mozaika) w bardzo dobrym stanie. Wysokość pomieszczeń 250 cm, okna częściowo wymienione na nowe PCV (w kuchni i największym pokoju), nowe drzwi wejściowe. Mieszkanie do częściowego lub kapitalnego remontu.
Budynek 10-kondygnacyjny z lat 70-tych, winda. Po termoizolacji, klatki schodowe w dobrym stanie (schludne i czyste). Tylko trzy lokale na piętrze.
Wokół zadbane otoczenie, zabudowa podobnymi budynkami mieszkalnymi i dużo zieleni. Bardzo dobra lokalizacja - wszystko w zasięgu krótkiego spaceru.
W pobliżu znajdują się: przedszkole, szkoła podstawowa, kościół,
sklepy spożywcze (Żabka, Biedronka), piekarnie, punkty usługowe, bazarek.
W zasięgu krótkiego spaceru: Park Moczydło-idealne miejsce na spacery i aktywny wypoczynek, Park Szymanowskiego, Park Powstańców Warszawy, Park Urlicha.
W bliskiej odległości przystanki autobusowe, stacja metra Księcia Janusza - ok. 10 minut pieszo (700m).
Informacje dodatkowe:
- spółdzielcze własnościowe prawo do lokalu, obecnie brak możliwości założenia księgi wieczystej (grunty nieuregulowane)
- możliwość nabycia za gotówkę lub pożyczkę hipoteczną na inną nieruchomość;
- opłaty na rzecz Spółdzielni (wraz z zaliczkami na media: woda zimna i ciepła, co, wywóz śmieci), ok. 750 zł/miesięcznie.
Oferta godna uwagi. Zapraszam na prezentację.
Numer oferty: OB330593
Osoba odpowiedzialna zawodowo: Przemysław Pariaszewski
salon (ok. 16 m²) z wyjściem na balkon z panoramicznym widokiem na ogródki działkowe
dwa oddzielne pokoje (ok. 10 m² i 9 m²),
oddzielna, widna kuchnia,
łazienka z kabiną prysznicową,
osobne WC,
przestronny przedpokój (z miejscami na dwie szafy wnękowe).
Lokal dwustronny, ekspozycja okien: wschód, zachód, co zapewnia doskonałe nasłonecznienie przez cały dzień.
Na podłogach znajduje się drewniany parkiet (mozaika) w bardzo dobrym stanie. Wysokość pomieszczeń 250 cm, okna częściowo wymienione na nowe PCV (w kuchni i największym pokoju), nowe drzwi wejściowe. Mieszkanie do częściowego lub kapitalnego remontu.
Budynek 10-kondygnacyjny z lat 70-tych, winda. Po termoizolacji, klatki schodowe w dobrym stanie (schludne i czyste). Tylko trzy lokale na piętrze.
Wokół zadbane otoczenie, zabudowa podobnymi budynkami mieszkalnymi i dużo zieleni. Bardzo dobra lokalizacja - wszystko w zasięgu krótkiego spaceru.
W pobliżu znajdują się: przedszkole, szkoła podstawowa, kościół,
sklepy spożywcze (Żabka, Biedronka), piekarnie, punkty usługowe, bazarek.
W zasięgu krótkiego spaceru: Park Moczydło-idealne miejsce na spacery i aktywny wypoczynek, Park Szymanowskiego, Park Powstańców Warszawy, Park Urlicha.
W bliskiej odległości przystanki autobusowe, stacja metra Księcia Janusza - ok. 10 minut pieszo (700m).
Informacje dodatkowe:
- spółdzielcze własnościowe prawo do lokalu, obecnie brak możliwości założenia księgi wieczystej (grunty nieuregulowane)
- możliwość nabycia za gotówkę lub pożyczkę hipoteczną na inną nieruchomość;
- opłaty na rzecz Spółdzielni (wraz z zaliczkami na media: woda zimna i ciepła, co, wywóz śmieci), ok. 750 zł/miesięcznie.
Oferta godna uwagi. Zapraszam na prezentację.
Numer oferty: OB330593
Osoba odpowiedzialna zawodowo: Przemysław Pariaszewski
Statystyki ogłoszenia:
Podobne nieruchomości