ico powierzchnia

POWIERZCHNIA

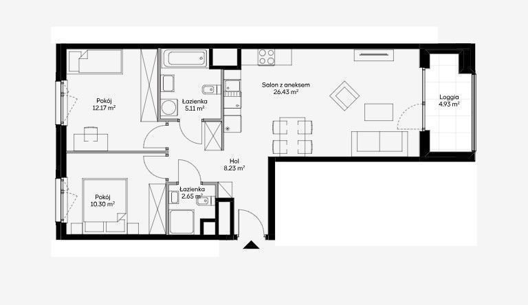
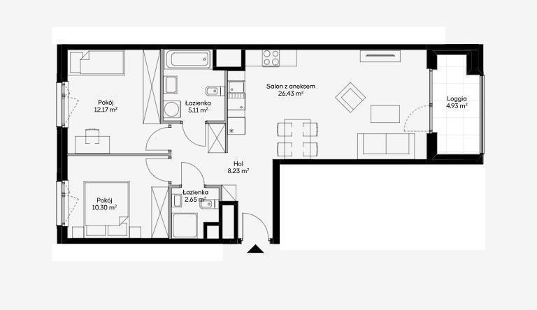
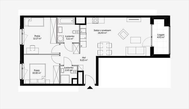
64,87 m2

ico pietro

PIĘTRO

5 / 7

ico liczba pokoi

LICZBA POKOI

3

ico parking

PARKING

-

Szczegóły oferty 442940013 Data dodania: 8 dni temu

  • Kategoria Mieszkania na sprzedaż
  • Lokalizacja mazowieckie, Warszawa, Wola, Czyste, Kolejowa
  • Powierzchnia całkowita64,87 m2
  • Cena

    1 505 000 zł

    Reklama ico Sprawdź ratę Sprawdź ratę RSSO 6,25% na dz. 19.01.26 trade ico trade ico trade
  • Cena za m2 23 200,25 zł/m2
  • Liczba pokoi 3
  • Piętro 5
  • Liczba pięter w budynku 7
  • Typ budynkuinny
  • Materiał inny

Lokalizacja

Warszawa, Wola, Czyste, Kolejowa

Opis oferty

Osiedle zlokalizowane jest przy ul. Kolejowej, a więc w ścisłym centrum Warszawy. Przestrzeń osiedla zorganizowana będzie zgodnie ze skandynawskim porządkiem, dlatego w ramach przestrzeni wspólnej powstanie przestronny park z placem zabaw, siłownią zewnętrzną, stołami do gier i tężnią. Nie zabraknie zielonych rozwiązań. Mieszkania będą wyposażone w system smart home Appartme by Skanska, dzięki któremu za pomocą aplikacji można kontrolować zużycie energii i ciepła. Zamontowane w oknach filtry antysmogowe pozwolą na oddychanie czystym powietrzem a woda retencjonowana w zbiornikach na deszczówkę nawodni tereny zielone

Powyższa prezentacja nie stanowi oferty w rozumieniu odpowiednich przepisów kodeksu cywilnego

Więcej ofert na stronach: kobrynski.pl, www.grewal.com.pl
Kontakt: 516pokaż telefon


Numer oferty: 442940013
Nr licencji zawodowej: 4145

Statystyki ogłoszenia:

oko

Podobne nieruchomości