Nowoczesne 3-pokojowe z ogrodem, parking i niski czynsz Rzeszów, św. Walentego - 67,47m2
690 000
zł
10 226,77 zł/m2
POWIERZCHNIA
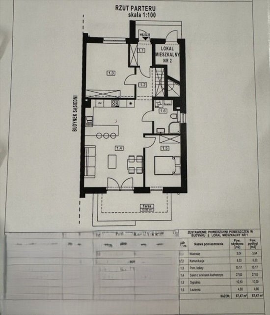
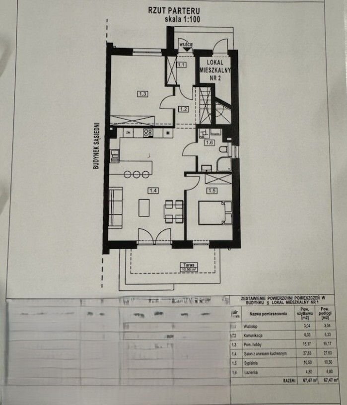
67,47 m2
PIĘTRO
parter / 1
LICZBA POKOI
3
PARKING
-
Szczegóły oferty 279680
- Kategoria Mieszkania na sprzedaż
- Lokalizacja podkarpackie, Rzeszów, św. Walentego
- Powierzchnia całkowita67,47 m2
-
Cena
690 000 zł
- Cena za m2 10 226,77 zł/m2
- Liczba pokoi 3
- Piętro Parter
- Liczba pięter w budynku 1
- Typ budynkuinny
- Rok budowy 2024
Lokalizacja
Opis oferty
Na sprzedaż wyjątkowe, 3-pokojowe mieszkanie o powierzchni 67,47 m² z przynależnym ogrodem (ok. 40 m²), położone w skrajnym segmencie w zabudowie szeregowej w prestiżowej dzielnicy Rzeszowa - przy ul. Św. Walentego.
Mieszkanie zostało oddane do użytku w sierpniu 2024 r. i wykończone jest w podwyższonym standardzie deweloperskim. Jego przemyślany układ zapewnia wygodę i funkcjonalność, a oddzielne, niezależne wejście gwarantuje komfort i prywatność.
Najważniejsze atuty nieruchomości:
✔ Bezczynszowe - niskie koszty utrzymania,
✔ Prywatny ogród (nasłoneczniony do zachodu słońca),
✔ Ogrzewanie podłogowe na całej powierzchni,
✔ 2 dedykowane miejsca parkingowe,
✔ Gotowa infrastruktura pod światłowód,
✔ Zamknięte osiedle z nowymi udogodnieniami (nasadzenia roślin, parking rowerowy, plac zabaw).
Świetna lokalizacja
Mieszkanie znajduje się w dynamicznie rozwijającej się części Rzeszowa, oferując:
- Szybki dojazd do centrum miasta,
- Bliskość terenów zielonych i rekreacyjnych,
- Nowoczesne szkoły i przedszkola w pobliżu,
- Komfort życia w spokojnym, kameralnym osiedlu.
Mieszkanie gotowe do zamieszkania - zapraszam do kontaktu i prezentacji!
Agent prowadzący:
Ewelina Pietras
tel.: 533pokaż telefon
Rzeszowskie Nieruchomości, ul. Mickiewicza 12
Numer oferty: 279680
Mieszkanie zostało oddane do użytku w sierpniu 2024 r. i wykończone jest w podwyższonym standardzie deweloperskim. Jego przemyślany układ zapewnia wygodę i funkcjonalność, a oddzielne, niezależne wejście gwarantuje komfort i prywatność.
Najważniejsze atuty nieruchomości:
✔ Bezczynszowe - niskie koszty utrzymania,
✔ Prywatny ogród (nasłoneczniony do zachodu słońca),
✔ Ogrzewanie podłogowe na całej powierzchni,
✔ 2 dedykowane miejsca parkingowe,
✔ Gotowa infrastruktura pod światłowód,
✔ Zamknięte osiedle z nowymi udogodnieniami (nasadzenia roślin, parking rowerowy, plac zabaw).
Świetna lokalizacja
Mieszkanie znajduje się w dynamicznie rozwijającej się części Rzeszowa, oferując:
- Szybki dojazd do centrum miasta,
- Bliskość terenów zielonych i rekreacyjnych,
- Nowoczesne szkoły i przedszkola w pobliżu,
- Komfort życia w spokojnym, kameralnym osiedlu.
Mieszkanie gotowe do zamieszkania - zapraszam do kontaktu i prezentacji!
Agent prowadzący:
Ewelina Pietras
tel.: 533pokaż telefon
Rzeszowskie Nieruchomości, ul. Mickiewicza 12
Numer oferty: 279680
Statystyki ogłoszenia:
Podobne nieruchomości