ico powierzchnia

POWIERZCHNIA

66,77 m2

ico pietro

PIĘTRO

parter / 4

ico liczba pokoi

LICZBA POKOI

3

ico parking

PARKING

-

Szczegóły oferty 62500084

  • Kategoria Mieszkania na sprzedaż
  • Lokalizacja łódzkie, Piotrków Trybunalski, Park Belzacki
  • Powierzchnia całkowita66,77 m2
  • Cena

    507 452 zł

    Reklama ico Sprawdź ratę Sprawdź ratę RSSO 6,71%
    na dz. 24.11.25
    trade ico trade ico trade
  • Cena za m2 7 600 zł/m2
  • Liczba pokoi 3
  • Piętro Parter
  • Liczba pięter w budynku 4
  • Typ budynkuinny
  • Rok budowy 2025
  • Forma własności własność
  • Materiał cegła
  • Kuchniaoddzielna
Informacje dodatkowe:
ogrzewanie centralne, ochrona, winda, internet

Lokalizacja

Piotrków Trybunalski, Park Belzacki

Opis oferty

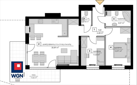
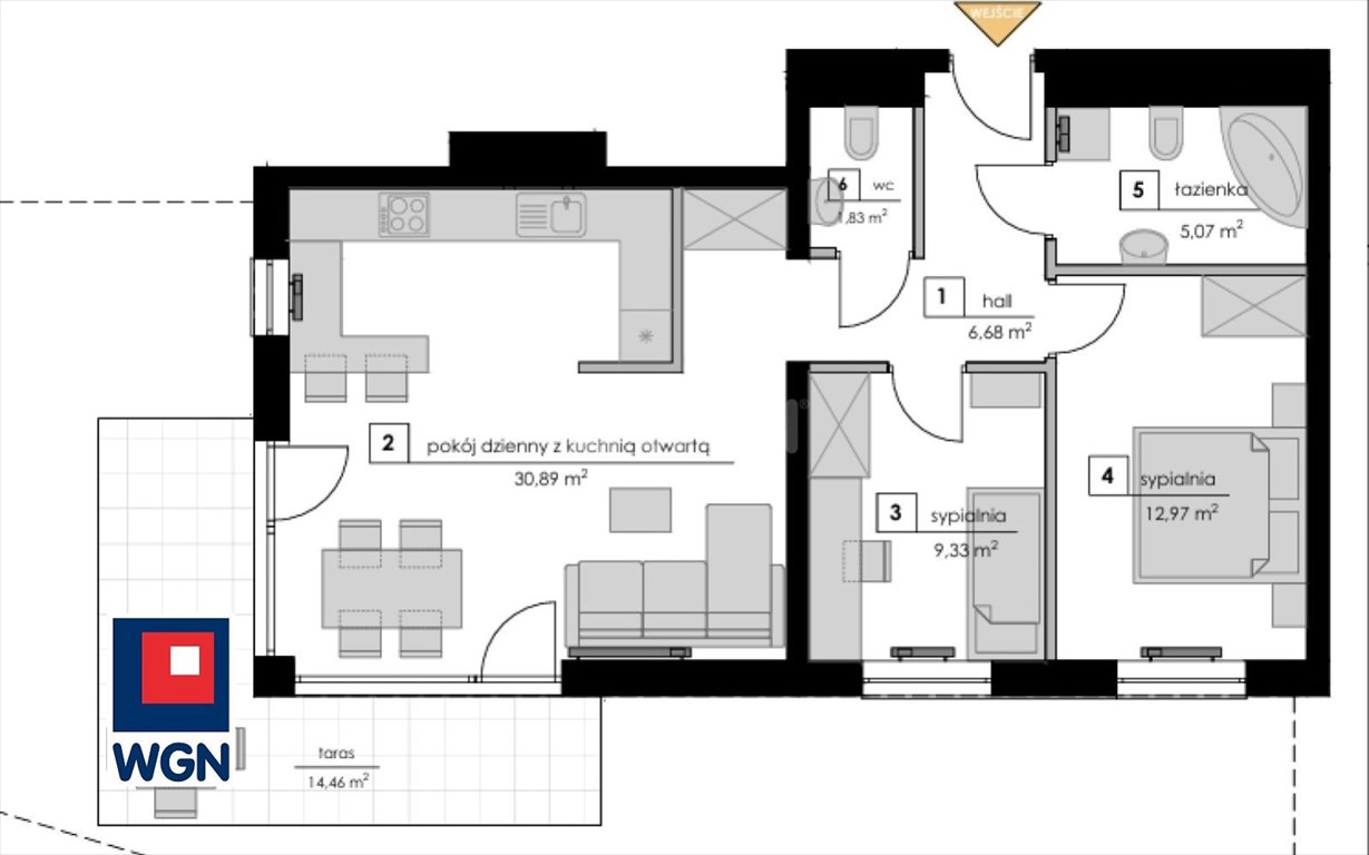
~Przedmiotem sprzedaży jest mieszkanie nr 166, budynek F, o powierzchni 66,73 m2, położone na parterze nowo budowanego bloku. ~Do mieszkania przynależy ogródek 130,66 m2 (dopłata). Realizacja inwestycji to czwarty kwartał 2025 roku. 1. hall: 6,68 m2; ~ 2. pokój dzienny z kuchnią: 30,89 m2; ~ 3. wc: 1,83 m2; ~ 5. łazienka: 5,07 m2; ~ 4. sypialnia: 9,33 m2; ~ 5. sypialnia: 12,97 m2; Każde mieszkanie będzie posiadać rolety zewnętrzne automatyczne, podłączenia do instalacji klimatyzatora, duże balkony, światłowód, ogrzewanie podłogowe w łazienkach. Osiedle to komfortowo zaprojektowany kompleks nowoczesnych budynków mieszkalnych o czterech kondygnacjach naziemnych tworzący doskonałą przestrzeń do zamieszkania. Jest to wyróżniająca się inwestycja mieszkaniowa na mapie zachodniej części Piotrkowa Trybunalskiego. ~Doskonała lokalizacja blisko zabytkowego parku, oraz komfort osiedla Belzacka Park, to propozycja dla wszystkich poszukujących bliskości natury, z jednoczesnym dostępem do uroków miejskiego stylu życia. Świetne połączenie komunikacyjne, blisko wylotu na autostradę. Pełna gama mieszkań od dwupokojowych po trzypokojowe o różnorodnych powierzchniach. ~Dodatkowym atutem jest możliwość łączenia lokali w większe mieszkania, dzięki zastosowaniu odpowiedniego układu konstrukcyjnego. Mieszkania w III etapie (budynek E i F): metraż: 41,29 - cena 7.600 zł brutto ~metraż: 40,13 - cena 7. 600 zł brutto ~metraż: 53,53 - cena 7.600 zł. brutto ~metraż: 66,77 - cena 7.600 zł brutto ~metraż: 68,34 - cena 7.600 zł brutto Miejsce w garażu podziemnym wynosi 45. 000 zł (63 miejsc w garażu podziemnym) ~Mieszkania na parterze dodatkowa opłata - 50 zł za metr kwadratowy ogródka. Zapraszamy do rezerwacji mieszkań. Pełne wynagrodzenie Biura pokrywa Sprzedający. Rynek pierwotny. Zakup zwolniony z podatku PCC. Pod budynkami garaż do którego wygodnie zjedziecie Państwo windą, natomiast przy budynkach zaplanowano zewnętrzne miejsca parkingowe. ~Budowane osiedla znajduje się w pobliżu: Centrum Handlowego Auchan ~Przedszkoli ~Szkół podstawowych i ponadpodstawowych ~Basenu ~Kortów tenisowych i OSiR ~Autostrady i węzła Piotrków Trybunalski zachód ~Przystanku autobusowego (w planach jest budowa pętli autobusowej) MASZ PYTANIA- Skontaktuj się z nami. Kompleksowo i bezpłatnie pomagamy w wyborze kredytu hipotecznego. WGN Piotrków Trybunalski zapewnia rynkowe ceny, bezpieczeństwo korzystnej transakcji oraz pomoc notariusza. Wyróżniamy się pełnym zaangażowaniem, ekspercką wiedzą i najwyższym poziomem usług ~opartych na ponad 30-letnim doświadczeniu. Stosujemy Kodeks Etyki Zawodowej Polskiej Federacji Rynku Nieruchomości. U nas pełna obsługa i bezpieczeństwo. Tylko oferty aktualne na www.wgnpiotrkow.pl. Zapraszamy ! Kompleksowa i bezpłatna pomoc w wyborze kredytu hipotecznego. U nas na miejscu, bezpłatnie Sprawdzisz ofertę Banków. Informacje dotyczące nieruchomości zostały sporządzone na podstawie oświadczeń i nie są ofertą w rozumieniu przepisów prawa, mają charakter wyłącznie informacyjny i mogą podlegać aktualizacji, zalecamy ich osobistą weryfikację. ~
Numer oferty: 62500084
Nr licencji zawodowej: nr 17049

Statystyki ogłoszenia:

oko

Podobne nieruchomości