Funkcjonalne 3-pokojowe mieszkanie z balkonem i widokiem Olsztyn, Cicha - 47,9m2
Oferta na wyłączność
419 000 zł 8 747,39 zł/m2POWIERZCHNIA
47,90 m2
PIĘTRO
7 / 10
LICZBA POKOI
3
PARKING
-
Szczegóły oferty 294/8805/OMS Data dodania: 4 dni temu
- Kategoria Mieszkania na sprzedaż
- Lokalizacja warmińsko-mazurskie, Olsztyn, Cicha
- Powierzchnia całkowita47,90 m2
-
Cena
419 000 zł
- Cena za m2 8 747,39 zł/m2
- Liczba pokoi 3
- Piętro 7
- Liczba pięter w budynku 10
- Typ budynkuinny
- Rok budowy 1970
- Forma własności spółdzielcze własnościowe
- Materiał wielka płyta
- Kuchniaoddzielna
- Informacje dodatkowe:
- winda, ogrzewanie miejskie, balkon, piwnica, umeblowane
- Okolica:
- szkoła, przedszkole, las, park
Lokalizacja
Opis oferty
OFERTA TYLKO W NASZYM BIURZE!
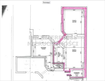
Na sprzedaż funkcjonalne mieszkanie o powierzchni 47,9 m² położone w Olsztynie na Zatorzu, przy ul. Cichej 3B.
Lokal znajduje się na siódmym piętrze w dziesięciopiętrowym budynku wyposażonym w windę, co zapewnia wygodę codziennego użytkowania, a jednocześnie daje przyjemne poczucie przestrzeni oraz widok ponad okoliczną zabudową.
Mieszkanie ma bardzo praktyczny i poszukiwany układ pomieszczeń. Na powierzchnię składają się trzy niezależne pokoje, w tym salon z wyjściem na balkon, dwie oddzielne sypialnie, osobna kuchnia, łazienka oraz przedpokój. Taki rozkład sprawia, że lokal jest komfortowy zarówno dla rodziny, jak i jako inwestycja pod wynajem, gdzie niezależność pomieszczeń stanowi duży atut. Wnętrze zostało urządzone w sposób funkcjonalny i estetyczny, dzięki czemu przestrzeń jest wygodna w codziennym użytkowaniu i daje możliwość szybkiego wprowadzenia się bez konieczności przeprowadzania większych prac.
Istotnym atutem nieruchomości jest wymieniona instalacja elektryczna oraz wodno-kanalizacyjna, co zwiększa bezpieczeństwo oraz ogranicza przyszłe koszty związane z modernizacją. Do mieszkania przynależy również piwnica, która zapewnia dodatkową przestrzeń do przechowywania rzeczy sezonowych czy sprzętu.
Lokalizacja na Zatorzu to miejsce, które od lat cieszy się dużym zainteresowaniem ze względu na bardzo dobrą komunikację z pozostałą częścią miasta. W najbliższej okolicy znajdują się szkoły, sklepy oraz liczne punkty handlowo-usługowe, co pozwala na wygodne funkcjonowanie bez konieczności dalekich dojazdów. Dodatkowym atutem jest łatwy dostęp do dworca PKP, co docenią zarówno osoby dojeżdżające do pracy, jak i inwestorzy poszukujący mieszkania atrakcyjnego pod wynajem.
Budynek znajduje się w zasobach Spółdzielni Mieszkaniowej "Młody Robotnik", a czynsz administracyjny dla trzech osób wynosi obecnie około 878 zł.
To propozycja dla osób poszukujących mieszkania o wygodnym układzie, w dobrze skomunikowanej części miasta, z pełną infrastrukturą w zasięgu codziennego życia.
Zapraszamy do umawiania się na prezentacje z Łukaszem pod nr tel. 512pokaż telefon.
Pomagamy również w uzyskaniu finansowania kredytowego na zakup nieruchomości oraz zaprojektowaniu wnętrza.
WISDOM Nieruchomości
Jerzego Lanca 3/3
10-528 Olsztyn
577pokaż telefon, 505pokaż telefon,
biuro@wisskontaktuj się
www.wisdom-nieruchomosci.pl
// Powyższa oferta ma charakter informacyjny i nie stanowi oferty handlowej w rozumieniu art. 66 par. 1 Kodeksu Cywilnego i może ulec zmianie. //
Właścicielem ogłoszenia jest WISDOM Nieruchomości.
Wszelkie prawa zastrzeżone. Kopiowanie, rozpowszechnianie i korzystanie z materiałów zawartych w ogłoszeniu w zakresie wykraczającym poza zapisy ustawy z 4 lutego 1994 r. "O prawie autorskim i prawach pokrewnych (Dz. U. 1994, nr 24 poz. 83 z późn. zm.)" jest zabronione i może stanowić podstawę do roszczeń z odpowiedzialności cywilnej oraz karnej. Oferta wysłana z programu dla biur nieruchomości ASARI CRM (asaricrm.com)
Numer oferty: 294/8805/OMS
Na sprzedaż funkcjonalne mieszkanie o powierzchni 47,9 m² położone w Olsztynie na Zatorzu, przy ul. Cichej 3B.
Lokal znajduje się na siódmym piętrze w dziesięciopiętrowym budynku wyposażonym w windę, co zapewnia wygodę codziennego użytkowania, a jednocześnie daje przyjemne poczucie przestrzeni oraz widok ponad okoliczną zabudową.
Mieszkanie ma bardzo praktyczny i poszukiwany układ pomieszczeń. Na powierzchnię składają się trzy niezależne pokoje, w tym salon z wyjściem na balkon, dwie oddzielne sypialnie, osobna kuchnia, łazienka oraz przedpokój. Taki rozkład sprawia, że lokal jest komfortowy zarówno dla rodziny, jak i jako inwestycja pod wynajem, gdzie niezależność pomieszczeń stanowi duży atut. Wnętrze zostało urządzone w sposób funkcjonalny i estetyczny, dzięki czemu przestrzeń jest wygodna w codziennym użytkowaniu i daje możliwość szybkiego wprowadzenia się bez konieczności przeprowadzania większych prac.
Istotnym atutem nieruchomości jest wymieniona instalacja elektryczna oraz wodno-kanalizacyjna, co zwiększa bezpieczeństwo oraz ogranicza przyszłe koszty związane z modernizacją. Do mieszkania przynależy również piwnica, która zapewnia dodatkową przestrzeń do przechowywania rzeczy sezonowych czy sprzętu.
Lokalizacja na Zatorzu to miejsce, które od lat cieszy się dużym zainteresowaniem ze względu na bardzo dobrą komunikację z pozostałą częścią miasta. W najbliższej okolicy znajdują się szkoły, sklepy oraz liczne punkty handlowo-usługowe, co pozwala na wygodne funkcjonowanie bez konieczności dalekich dojazdów. Dodatkowym atutem jest łatwy dostęp do dworca PKP, co docenią zarówno osoby dojeżdżające do pracy, jak i inwestorzy poszukujący mieszkania atrakcyjnego pod wynajem.
Budynek znajduje się w zasobach Spółdzielni Mieszkaniowej "Młody Robotnik", a czynsz administracyjny dla trzech osób wynosi obecnie około 878 zł.
To propozycja dla osób poszukujących mieszkania o wygodnym układzie, w dobrze skomunikowanej części miasta, z pełną infrastrukturą w zasięgu codziennego życia.
Zapraszamy do umawiania się na prezentacje z Łukaszem pod nr tel. 512pokaż telefon.
Pomagamy również w uzyskaniu finansowania kredytowego na zakup nieruchomości oraz zaprojektowaniu wnętrza.
WISDOM Nieruchomości
Jerzego Lanca 3/3
10-528 Olsztyn
577pokaż telefon, 505pokaż telefon,
biuro@wisskontaktuj się
www.wisdom-nieruchomosci.pl
// Powyższa oferta ma charakter informacyjny i nie stanowi oferty handlowej w rozumieniu art. 66 par. 1 Kodeksu Cywilnego i może ulec zmianie. //
Właścicielem ogłoszenia jest WISDOM Nieruchomości.
Wszelkie prawa zastrzeżone. Kopiowanie, rozpowszechnianie i korzystanie z materiałów zawartych w ogłoszeniu w zakresie wykraczającym poza zapisy ustawy z 4 lutego 1994 r. "O prawie autorskim i prawach pokrewnych (Dz. U. 1994, nr 24 poz. 83 z późn. zm.)" jest zabronione i może stanowić podstawę do roszczeń z odpowiedzialności cywilnej oraz karnej. Oferta wysłana z programu dla biur nieruchomości ASARI CRM (asaricrm.com)
Numer oferty: 294/8805/OMS
Statystyki ogłoszenia:
Podobne nieruchomości