ico powierzchnia

POWIERZCHNIA

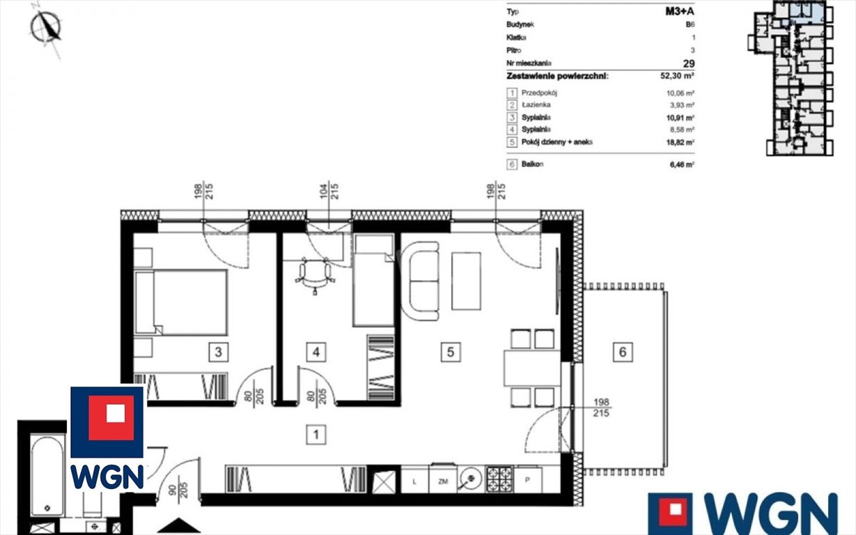
52,30 m2

ico pietro

PIĘTRO

3 / 4

ico liczba pokoi

LICZBA POKOI

3

ico parking

PARKING

-

Szczegóły oferty 2950088

  • Kategoria Mieszkania na sprzedaż
  • Lokalizacja lubelskie, Lublin, Dziesiąta Wieś, Dziesiąta Wieś
  • Powierzchnia całkowita52,30 m2
  • Cena

    496 850 zł

    Reklama ico Sprawdź ratę Sprawdź ratę RSSO 6,71%
    na dz. 24.11.25
    trade ico trade ico trade
  • Cena za m2 9 500 zł/m2
  • Liczba pokoi 3
  • Piętro 3
  • Liczba pięter w budynku 4
  • Typ budynkuinny
  • Rok budowy 2027
  • Forma własności własność
  • Materiał inny
  • Kuchniaoddzielna
Informacje dodatkowe:
ogrzewanie centralne, winda

Lokalizacja

Lublin, Dziesiąta Wieś, Dziesiąta Wieś

Opis oferty

Na sprzedaż: mieszkanie 3-pokojowe z balkonem, 52,30m2, Dzielnica Dziesiąta Lokalizacja: nowo wybudowane osiedle. Powierzchnia mieszkania: 52,30m2 Piętro: 3 Liczba pokoi: 3 aneks kuchenny Balkon: 6,46 m2 Ogrzewanie: podłogowe gazowe System smart home instalowany na życzenie Opis nieruchomości: Oferujemy na sprzedaż mieszkanie nr 29 o powierzchni 52,30m2, zlokalizowane na trzecim piętrze nowoczesnego budynku w dzielnicy Dziesiąta Wieś. W skład mieszkania wchodzi przestronny salon z aneksem kuchennym, dwie sypialnie, łazienka oraz przedpokój. Najważniejsze zalety: * funkcjonalny i nowoczesny układ pomieszczeń * nowoczesna architektura budynku * dostępne miejsca postojowe * dostępne komórki lokatorskie ( 3500m2) *oddanie budynku 1 kwartał 2027r Lokalizacja i otoczenie Położenie nieruchomości to doskonała propozycja dla osób, które cenią spokojne otoczenie, dobrą komunikację i bliskość centrum miasta. Świetna komunikacja - szybki dojazd do centrum Lublina, dzielnic takich jak Dziesiąta, Wrotków czy Abramowice; w pobliżu przystanki MPK z licznymi liniami autobusowymi. Blisko trasy wylotowej - dogodny dostęp do drogi ekspresowej S19 i obwodnicy, co ułatwia podróże poza miasto. Rozwinięta infrastruktura - w okolicy znajdują się szkoły, przedszkola, sklepy spożywcze, punkty usługowe, przychodnie oraz apteki. Zieleń i rekreacja - w pobliżu tereny spacerowe, ścieżki rowerowe oraz miejsca idealne do odpoczynku na świeżym powietrzu. Spokojne, zadbane osiedle - zabudowa jednorodzinna i niskie bloki tworzą przyjazną, bezpieczną przestrzeń do życia. Idealna lokalizacja dla rodzin i inwestorów - równowaga między ciszą a wygodnym dostępem do miejskich udogodnień. Architektura i układ osiedla Kompleks składa się budynków mieszkalnych o prostej, nowoczesnej bryle, jasnej kolorystyce elewacji, przestronnych balkonach, harmonijnie wpisuje się w otaczającą zieleń Powierzchnie mieszkań: od 29 do 69 m2, dostępne układy: 2, 3 i 4 pokojowe. Udogodnienia i infrastruktura Budynki wyposażone w windy cichobieżne, udogodnienia dla osób z niepełnosprawnością Miejsca parkingowe: podziemne, dostępne komórki lokatorskie. Przestrzeń wspólna: starannie zaprojektowana zieleń, chodniki, drogi dojazdowe, stojaki rowerowe, plac zabaw dla dzieci. Zapraszam do kontaktu w celu uzyskania szczegółowych informacji lub umówienia prezentacji nieruchomości. 0% prowizji od kupującego! Bez podatku PCC! Wszelkie informacje dotyczące oferty mieszkań przesyłamy Państwu na wskazany adres e-mail po zgłoszeniu telefonicznym lub e-mailowym. Otrzymacie Państwo: prospekt informacyjny, wzór umowy deweloperskiej, rzuty kondygnacji. Istnieje możliwość rezerwacji na 7 dni bezpłatnie w celu zapoznania się ze szczegółami inwestycji. Naszym klientom zapewniamy doradztwo kredytowe oraz zespół doświadczonych projektantów wnętrz. Informacje o nieruchomości zostały sporządzone na podstawie oświadczeń i nie są ofertą w rozumieniu przepisów prawa. Mają wyłącznie charakter informacyjny i mogą podlegać aktualizacji. Zalecamy ich osobistą weryfikację. Wszelkie prawa zastrzeżone. Teksty, rysunki, zdjęcia oraz inne informacje opublikowane na niniejszych stronach podlegają prawom autorskim WGN Nieruchomości w Lublinie. Wszelkie kopiowanie, dystrybucja, elektroniczne przetwarzanie oraz przesyłanie zawartości bez zezwolenia są zabronione. WGN zapewnia rynkowe ceny, bezpieczeństwo korzystnej transakcji, doradztwo kredytowe oraz pomoc notariusza. Wyróżniamy się pełnym zaangażowaniem, ekspercką wiedzą i najwyższym poziomem usług opartych na ponad 30-letnim doświadczeniu na rynku nieruchomości w Polsce. Stosujemy System Jakości ZJ WGN oraz Kodeks Etyki Zawodowej Polskiej Federacji Rynku Nieruchomości. Więcej ciekawych ofert znajdziesz na www.wgn.pl
Numer oferty: 2950088

Statystyki ogłoszenia:

oko

Podobne nieruchomości