Mieszkanie trzypokojowe na sprzedaż Gdańsk, Łostowice, Pastelowa - 59,05m2
663 500
zł
11 236,24 zł/m2
POWIERZCHNIA
59,05 m2
PIĘTRO
1
LICZBA POKOI
3
PARKING
-
Szczegóły oferty HEX554299 Data dodania: 3 dni temu
- Kategoria Mieszkania na sprzedaż
- Lokalizacja pomorskie, Gdańsk, Łostowice, Pastelowa
- Powierzchnia całkowita59,05 m2
-
Cena
663 500 zł
-
Czynsz administracyjny
600 zł
- Cena za m2 11 236,24 zł/m2
- Liczba pokoi 3
- Piętro 1
- Typ budynkublok
- Rok budowy 2027
- Materiał inny
- Informacje dodatkowe:
- balkon
Lokalizacja
Opis oferty
Na sprzedaż komfortowe mieszkanie 3-pokojowe o powierzchni 59,05 m², położone na 1. piętrze w nowoczesnym budynku na terenie inwestycji Osiedle Pastelowe w Gdańsku (Łostowice). To idealna propozycja dla osób, które szukają spokoju, bezpieczeństwa oraz bliskości natury, a jednocześnie chcą zachować szybki dojazd do centrum miasta.
Kupujący nie płaci podatku PCC ani prowizji.
Planowany odbiór: 1 kwartał 2027r.
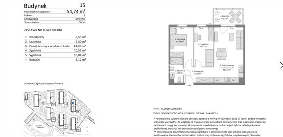
Rozkład pomieszczeń:
Wyjątkowe miejsce łączące niezależność, bezpieczeństwo i ciszę, idealne dla osób, które chcą odpoczywać blisko natury, bez rezygnowania z wygód miasta.
Wszystkie budynki zostały zaprojektowane z myślą o ograniczeniu kosztów eksploatacji:
Zapraszam do kontaktu - chętnie odpowiem na pytania i pomogę w całym procesie zakupu.
Numer oferty: HEX554299
Osoba odpowiedzialna zawodowo: Ewelina Wyremblewska
Kupujący nie płaci podatku PCC ani prowizji.
Planowany odbiór: 1 kwartał 2027r.
Rozkład pomieszczeń:
- Przedpokój - 6,70 m²
- Łazienka - 4,06 m²
- Pokój dzienny z aneksem kuchennym - 24,17 m²
- Sypialnia - 9,87 m²
- Sypialnia - 11,95 m²
- WC- 2,30 m²
- Balkon - 6,00 m²
Wyjątkowe miejsce łączące niezależność, bezpieczeństwo i ciszę, idealne dla osób, które chcą odpoczywać blisko natury, bez rezygnowania z wygód miasta.
Wszystkie budynki zostały zaprojektowane z myślą o ograniczeniu kosztów eksploatacji:
- instalacje paneli fotowoltaicznych na dachach (energia dla części wspólnych)
- oświetlenie LED w częściach wspólnych
- zachowane ponad 30-metrowe odległości między budynkami, co daje więcej przestrzeni i prywatności
- monitoring zewnętrzny
- wideodomofony
- drzwi antywłamaniowe w lokalach mieszkalnych
- Osiedle znajduje się w spokojnej części Gdańska - Łostowice
- Okolica sprzyja aktywnemu trybowi życia - spacery, jogging i wypoczynek na świeżym powietrzu są tu codziennością.
- Mimo kameralnego położenia, dobra komunikacja zapewnia szybki dostęp do centrum Gdańska i pozostałych dzielnic.
- Dodatkowym atutem będzie rozwijająca się część handlowo-usługowa na terenie osiedla, która jeszcze bardziej podniesie komfort życia mieszkańców.
Zapraszam do kontaktu - chętnie odpowiem na pytania i pomogę w całym procesie zakupu.
Numer oferty: HEX554299
Osoba odpowiedzialna zawodowo: Ewelina Wyremblewska
Statystyki ogłoszenia:
Podobne nieruchomości